Advertorial

Vytvorte si kúpeľňu snov: dizajnové riešenie od značky hansgrohe

Hansgrohe - prémiová značka kúpeľňových riešení, ponúka nadčasový dizajn, technickú precíznosť a udržateľné inovácie...

Okná Internorm za minuloročné ceny + hliníkový kryt zdarma!

Využite špeciálnu akciu Internorm: okná za minuloročné ceny a hliníkový kryt úplne zadarmo. Ponuka je časovo obmedzená!

Pozvánka na 2. ročník stavebného veľtrhu BigMarket na Slovensku

Na podujatí sa predstaví až 37 vystavovateľov - popredných dodávateľov stavebných materiálov a inovácií s prezentáciou...

Moderné plynové technológie: Efektivita a inovácie pre 21. storočie

Sumarizácia najdôležitejších inovácií, ktoré redefinujúcich využitie tohto energetického zdroja.

Utesňovanie spodných stavieb pomocou hydro-aktívnej fólie AMPHIBIA.

AMPHIBIA 3000 GRIP 1.3 od spoločnosti ATRO predstavuje modernú hydroizolačnú technológiu, ktorá spája vysokú odolnosť,...

Dekarbonizácia individuálneho vykurovania domácností – Green Deal evolučne a nie revolučne

Ambiciózne plány EK narazili na ekonomické možnosti domácností v jednotlivých členských štátoch –...

Minimalistické dvere IDEA – technická precíznosť a čistota prevedenia

IDEA DOOR od spoločnosti JAP prináša do interiéru čistý minimalistický vzhľad vďaka bezrámovému riešeniu a precíznej...

Dom s výhľadom na údolie, Dlouhý Most (ČR)

Kontinuita riešenia od vonkajšieho obkladu až po kovania a kľučky.

Schell Vitus – osvedčené riešenie pre sprchy a umývadlá vo verejnom sektore s viac ako desaťročnou tradíciou

Nástenné nadomietkové armatúry Vitus sú mimoriadne vhodné pre rýchlu a efektívnu...

Kompozitné okná predstavujú súčasnosť a budúcnosť

Okenné profily z kompozitného materiálu RAU-FIPRO X od spoločnosti Rehau sú v porovnaní s tradičnými plastovými profilmi mnohonásobne...

Myotis - stoly 2025

Najnovší sortiment stolov pre zariadenie interiérov...

Priemyselné sklenené priečky Dorsis Digero: svetelné rozhranie pre moderné interiéry

Spojenie moderného dizajnu, funkčnosti a svetla do harmonického architektonického prvku.

Význam prirodzeného svetla pre moderné a flexibilné pracovné prostredie

Kancelárska budova Baumit v slovinskom Trzine prešla premenou na moderné a udržateľné pracovisko. Architekti kládli dôraz...

Konferencia Xella Dialóg predstaví novinky a trendy v stavebníctve

Mottom šiesteho ročníku on-line konferencie odborníkov Xella Dialóg je Efektívny návrh budov 2025+: zmeny a riešenia

Murovací robot WLTR stavia svoj prvý dom na Slovensku

Robot WLTR predstavuje moderný prístup k murovaným konštrukciám. Vďaka automatizácii dokáže rýchlo, presne a bezpečne realizovať...

Dom so Stodolou, Kolín (ČR)

Drevostavba v stredočeskej krajine.
Diela
Red 305.01.2026
10271+18
Dom so Stodolou, Kolín (ČR)
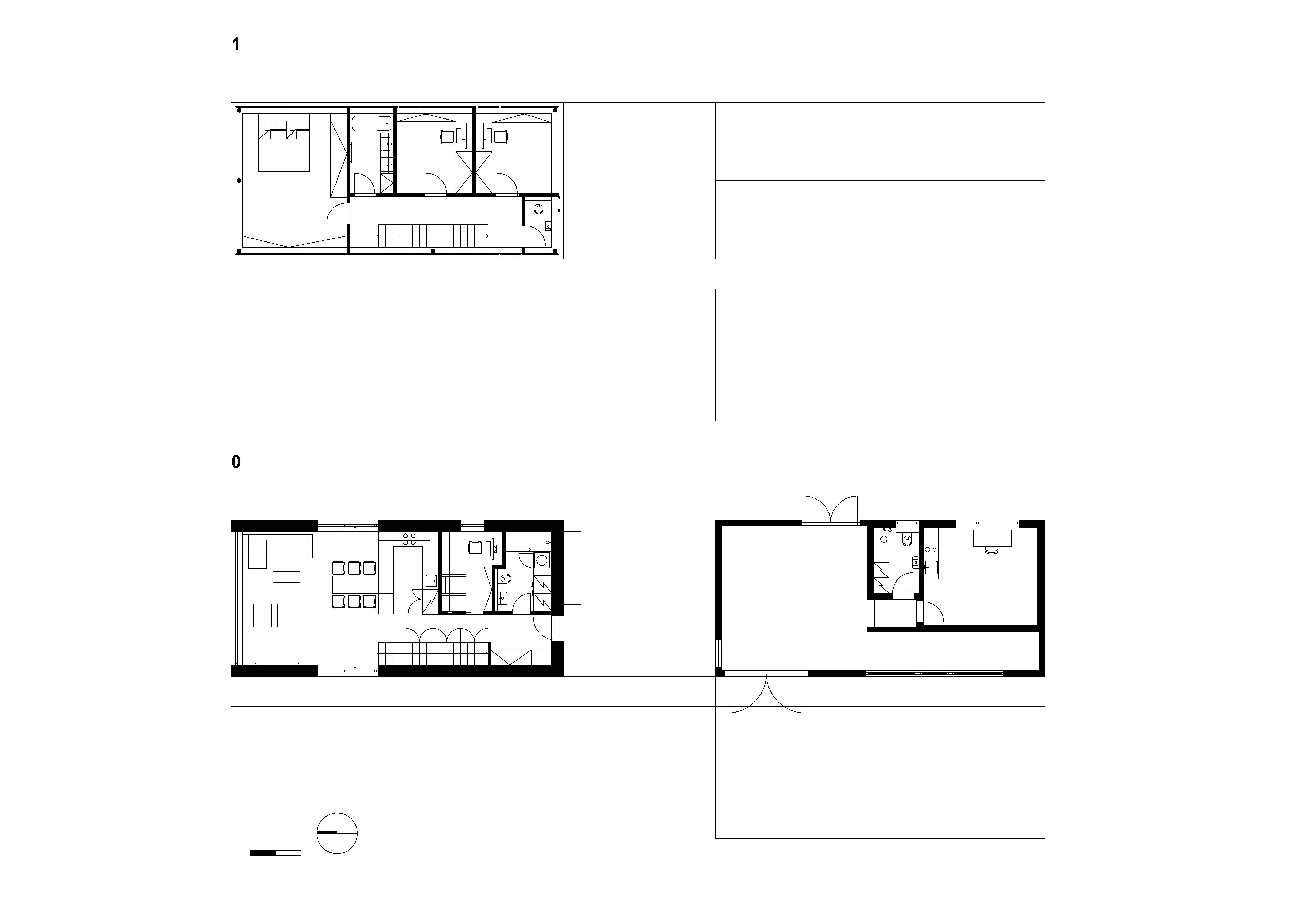
Autori: Mga. Vít Svoboda (0,5 Studio), Mga. Pavel Nový (0,5 studio)Spolupráca: Chytrý dům (projekt a realizácia)Podlažná plocha: 124 m² + 71 m² - stodolaNávrh: 2023 - 2023Realizácia: 2024 - 2025Adresa: Kolín, Česká republikaPublikované: 5. január 2026

Investori oslovili ateliér 0,5 Studio s požiadavkou navrhnúť rodinný dom, ktorý svojou jednoduchou formou zapadne do krajiny na rozhraní poľa a dubového lesa. 

Koncept podľa slov autorov čerpá z archetypu rodinného domu so stodolou, pracuje s výrazným hmotovým kontrastom a charakteristickým „odrezaným“ výhľadom – pásom panoramatických okien na hornom podlaží, ktoré otvárajú výhľady do krajiny.

Prízemie tvorí otvorený obytný priestor s kuchyňou, pracovňou a zázemím. Na hornom podlaží sa nachádzajú detské izby, spálňa, kúpeľňa a WC. Prístrešok poskytuje chránené vonkajšie sedenie a stodola slúži ako parkovanie aj pracovný priestor.

Exteriér je obložený čiernymi horizontálne kladenými doskami, ktoré vytvárajú kontrast k svetlému drevenému interiéru v jemných odtieňoch. Rozsiahle zasklenie a otvorený obytný priestor prepájajú interiér so záhradou a okolím. Horné podlažie funguje ako vyhliadka do krajiny, zatiaľ čo podlhovastý objem stodoly dopĺňa kompozíciu domu a odkazuje na tradičné hospodárske staviteľstvo. 

Energetický koncept stavby využíva tepelné čerpadlo zem–voda, podlahové vykurovanie a kvalitné trojsklá.

Foto: MgA. Peter Fabo
Foto: MgA. Peter Fabo
Foto: MgA. Peter Fabo
Foto: MgA. Peter Fabo
Foto: MgA. Peter Fabo
Foto: MgA. Peter Fabo
Foto: MgA. Peter Fabo
Foto: MgA. Peter Fabo
Foto: MgA. Peter Fabo
Foto: MgA. Peter Fabo
Foto: MgA. Peter Fabo
Foto: MgA. Peter Fabo
Foto: MgA. Peter Fabo
Foto: MgA. Peter Fabo
Foto: MgA. Peter Fabo
Foto: MgA. Peter Fabo
Foto: MgA. Peter Fabo
Foto: MgA. Peter Fabo
Foto: MgA. Peter Fabo
Foto: MgA. Peter Fabo
Foto: MgA. Peter Fabo
Foto: MgA. Peter Fabo
Pôdorysy
PôdorysyAutor: 0,5 Studio

Použité materiály a riešenia:

Strešná krytina od spoločnosti Ruukki: Systém Ruukki Classic C

Podklady: 0,5 Studio
Fotografie: MgA. Peter Fabo

Poloha diela

Mga. Vít Svoboda
Mga. Pavel Nový

Súvisiace články

Ruukki Slovakia s.r.oSKNAJLEPŠÍ PLÁŠŤ
Vložené
2. december 2025
1
1027
Hlavný obsahHlavný obsah
Čakajte prosím