Sumarizácia najdôležitejších inovácií, ktoré redefinujúcich využitie tohto energetického zdroja.
AMPHIBIA 3000 GRIP 1.3 od spoločnosti ATRO predstavuje modernú hydroizolačnú technológiu, ktorá spája vysokú odolnosť,...
Ambiciózne plány EK narazili na ekonomické možnosti domácností v jednotlivých členských štátoch –...
IDEA DOOR od spoločnosti JAP prináša do interiéru čistý minimalistický vzhľad vďaka bezrámovému riešeniu a precíznej...
Nástenné nadomietkové armatúry Vitus sú mimoriadne vhodné pre rýchlu a efektívnu...
Okenné profily z kompozitného materiálu RAU-FIPRO X od spoločnosti Rehau sú v porovnaní s tradičnými plastovými profilmi mnohonásobne...
Najnovší sortiment stolov pre zariadenie interiérov...
Spojenie moderného dizajnu, funkčnosti a svetla do harmonického architektonického prvku.
Kancelárska budova Baumit v slovinskom Trzine prešla premenou na moderné a udržateľné pracovisko. Architekti kládli dôraz...
Mottom šiesteho ročníku on-line konferencie odborníkov Xella Dialóg je Efektívny návrh budov 2025+: zmeny a riešenia
Robot WLTR predstavuje moderný prístup k murovaným konštrukciám. Vďaka automatizácii dokáže rýchlo, presne a bezpečne realizovať...
Okrem bezpečnosti majú okná aj elegantný vzhľad, pretože nie sú viditeľné žiadne uzamykacie časti kovania.
Dvere MASTER v skrytej zárubni AKTIVE je možné vyrobiť až do výšky 3 700 mm
Internorm stavia na energetickú efektívnosť a inteligentné tieniace riešenia.
Slovensko vo výbere zastupuje šesť realizácií.

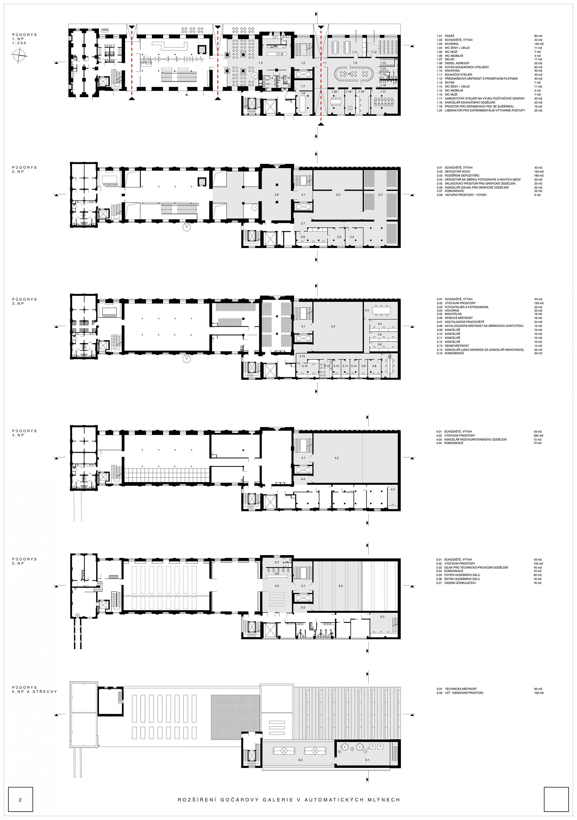
V architektonickej súťaži na rozšírenie Gočárovej galérie v areáli bývalých pardubických Automatických mlynov zvíťazil návrh ateliéru DOXA, ktorý tvorí kolektív architektov Tomáša Boroša, Ondreja Jurča, Maroša Mitra, Pavla Bakajsu a Kataríny Vysokej.
Gočárova galéria je zbierkotvornou inštitúciou pre výtvarné umenie, zriadenou Pardubickým krajom. Od roku 2023 sídli v zrekonštruovanej hlavnej budove bývalých Automatických mlynov bratov Winternitzovcov, postavenej podľa projektu Josefa Gočára (projekt sme podrobne predstavili tu).
Cieľom súťaže bolo získať najlepší architektonický návrh na rozšírenie galérie, ktoré umožní nielen realizáciu významných medzinárodných projektov, ale aj prezentáciu vlastných zbierok vo väčšom rozsahu. Novozískané priestory budú okrem výstavných priestorov zahŕňať aj vzdelávacie zázemie pre najmenších návštevníkov a, vzhľadom na dlhodobú akvizičnú činnosť, dôjde aj k navýšeniu plochy depozitárov. Na tieto účely bol určený objekt bývalého múčneho sila, teda severná prístavba Gočárovej historickej budovy, postavený v rokoch 1959 - 1961, ktorý nebol predmetom obnovy hlavnej budovy.
V porote súťaže zasadal námestník hejtmana Pardubického kraja Roman Línek, riaditeľka Gočárovej galérie Klára Zářecká, architekt Petr Všetečka - autor prvej etapy obnovy hlavnej budovy Automatických mlynov a viacero rešpektovaných nezávislých odborníkov. Predsedom poroty bol architekt Josef Pleskot, k ďalším nezávislým členom patrili profesor Ladislav Lábus (emeritný dekan Fakulty architektúry ČVUT v Prahe), architektka Janica Šipulová (partnerka kancelárie Consequence forma), a architekt Antonín Novák (partner kancelárie DRNH). Odborný pohľad poskytol aj riaditeľ mestskej galérie PLATO v Ostrave, Marek Pokorný. Do celého priebehu súťaže bol zapojený aj zástupca Národného pamiatkového ústavu.
Na hodnotiacom zasadnutí, ktoré prebehlo 12. augusta, sa porota jednomyseľne zhodla, že víťazný návrh predstavuje najlepšiu odpoveď na zadanie súťaže a prináša množstvo podnetov pre budúci rozvoj Gočárovej galérie. Návrh sa na prvý pohľad môže javiť ako výrazné autonómne gesto, ale v skutočnosti predstavuje mimoriadne citlivú reakciu na daný kontext. Kľúčovým momentom je odkrytie severnej fasády Gočárovej budovy a jej opätovné vystavenie pohľadom zvonku. Nová prístavba ustupuje za hranicu pôvodného objektu, čím akcentuje hodnoty Gočárovej architektúry, ktorú je teraz možné vnímať v jej pôvodnej celistvosti. Autori víťazného návrhu tiež správne pochopili význam prístavby z 50. rokov 20. storočia, ktorú tvoria betónové silá na múku. Tie odhalili odstránením pôvodnej fasády a vložili do nich nové výstavné priestory. Porota ocenila aj spôsob, akým návrh prepája verejný priestor a nábrežie s interiérom budovy, kde sa na prízemí budú nachádzať vzdelávacie priestory. Pre prevádzku krajskej galérie ide o dôležité rozhodnutie.
Súťaž prebiehala ako jednofázová, otvorená pre ľubovoľný počet účastníkov. Porota vyberala z 13 návrhov. Okrem českých a slovenských ateliérov sa do súťaže zapojili aj kolektívy z Maďarska a Veľkej Británie. Na druhom mieste sa umiestnil návrh architektov Martina Prokša a Marka Přikryla, ktorí sú autormi adaptácie sila pre Nadáciu AM. Tretie miesto obsadilo Studio Perspektiv.
Pardubický kraj na príprave súťaže spolupracoval s Českou komorou architektov a spoločnosťou CBArchitektura.
Výsledky súťaže:
1. miesto (800 000 Kč): Doxa s.r.o.
Autori: Ing. arch. Tomáš Boroš, Art.D., Ondrej Jurčo, Maroš Mitro, Pavel Bakajsa, Katarína Vysoká
Hodnotenie poroty:
Porota se jednomyslně shodla, že návrh přináší nejlepší odpověď na zadání soutěže a zároveň představuje suverénní tvůrčí akt. Prostřednictvím odhalujícího uchování památkové substance původního objektu vytváří nejen novou prostorovou situaci pro vlastní funkce budovy, ale také nový veřejný prostor. Zachovává a zároveň nemimeticky rozvíjí historický a architektonický kontext. Nejlepším způsobem zprostředkovává vazbu veřejného prostoru nábřeží s vnitřkem domu. U veřejné budovy daného typologického druhu jde o důležité rozhodnutí a jeho přínos je nezpochybnitelný.
Paradoxně, vážně, výrazně a významně pracuje s odkazem historické materie a přináší překvapivá funkční řešení, která mohou působit inspirativně pro budoucího uživatele. Odhalení severní Gočárovy fasády a její opětovné vystavení pohledu zvenčí přináší žádoucí autonomii a celistvost původního Gočárova domu. Také ustoupením za hraniční čáru původního objektu automatických mlýnů akcentuje projekt hodnotu originální Gočárovy architektury a návrhem nové platformy propojuje budovu s bezprostředním okolím včetně vazby na řeku. Zvednutí nábřeží po celé délce stavby na úroveň záplavové zídky je rozhodně zajímavým podnětem, ale bude potřeba jej detailně prověřit.
Vnitřní členění vhodně řeší potřeby nových výstavních ploch, depozitářů a provozního zázemí galerie a zároveň vnitřní vazby umožňují jejich přehledné a variabilní využívání díky racionalitě komunikačního skeletu. Práce s betonovou strukturou obilných sil je pro výstavní účely využitelná, ale může být ve fázi dopracovávání studie upravena. Hladká fasáda průčelí může sloužit jako médium pro zprostředkování různých vizuálních projektů. Celkově jde o návrh, který přináší nejvíce podnětů pro rozvoj Gočárovy galerie. Tím, že se architektonicky odlišuje, dává vyznít autenticitě původní Gočárovy stavby. Přestože projekt působí na první pohled jako silné autonomní gesto, ve skutečnosti je návrh mimořádně citlivou reakcí na daný kontext a nesnaží se strhnout pozornost výhradně na sebe.
Súťažné panely:
Vizualizácie:
2. miesto (600 000 Kč): Ing. arch. Martin Prokš, Ing. arch. MgA. Marek Přikryl
Hodnotenie poroty:
Porota oceňuje kvalitu a komplexnost návrhu v posuzovaných kritériích - architektonického, technického i konstrukčního řešení, zejména s ohledem na sledování potřeby vytvoření nového univerzálního výstavního prostoru.
Projekt odstraňuje celou technologickou část objektu moučných sil. Nová dostavba galerie vychází z daného prostředí svojí hmotou, výškovým členěním i materiálem, včetně trojdělení fasády v kontextu historické části objektu. Projekt se rovněž vyznačuje dobře řešenými funkčními a provozními vazbami mezi stávající galerii a její novou částí. Nová přístavba přináší pozitivní řešení parteru jeho otevřeností a návazností na venkovní terasu i vazbou pasáží na upravené části břehů řeky, kde však lze doporučit ještě velkorysejší vazbu a celkové pojetí řešení veřejného prostoru před galerií a využití potenciálu řeky. Nová fasáda svou formou volně navazuje na původní vertikální členění budovy mlýnů i přístavby ze 60. let. Prolamovaný parter svým tvarováním připomínající funkci sila i výrazně tvarovaná atika jsou možná trochu prvoplánovou inspirací, která se svým výrazným a drobným tvarováním až příliš váže na novodobé stavby v druhém plánu parcely a tím ovlivňuje relaci významu památkově chráněné historické části objektu.
Súťažné panely:
Vizualizácie:
3. miesto (400 000 Kč): Studio Perspektiv s.r.o.
Autori: Ing. arch. Ján Antal, Ing. arch. Martin Stára, Ing. arch. Ondřej Jezbera, Martin Křivánek
Spolupráca: Ing. arch. Lukáš Pitoňák, Matyáš Kytka, Silvia Snopková
Hodnotenie poroty:
Návrh volí kontrast měřítka a materiálu ke Gočárově budově i ostatním novostavbám v areálu Automatických mlýnů. Volí radikální hmotu i siluetu novostavby v pohledu od soutoku Labe a Chrudimky. Částečně přitom zachovává kompozici východního traktu architekta Řepy. Snaží se o lehkost a světlost výrazu (copilit). Vstupní foyer s edukační zónou jsou logicky umístěny do rytmu stávajících pasáží a vstupních prostor, málo artikulovaná je ale otevřenost západního parteru k řece. Ve vyšších podlažích novostavba doplňuje převážně výstavní prostory. Silným motivem i přínosem návrhu je navázání na podélnou osu Gočárovy stavby a její posílení a téma cesty domem, na kterém je vystavěno i dispoziční řešení nové výstavní části. Stoupání domem je zde chápáno jako součást zážitku z prostoru galerie, současně vtahuje do hry Gočárovu severní fasádu. Tento přístup vyvolává zmnožení schodišť, které však není jednoznačným řešením samostatného přístupu do společenského sálu. Celkový esprit i formální uvolněnost návrhu jsou porotou vnímány v kontextu Automatických mlýnů jako přínosné, konkrétní zpracování ale vzbuzuje několik otázek, například: tvarosloví výrazné pultové střechy nemá žádnou odezvu ve střešní krajině areálu; skleněné fasády nemusejí být funkčně opodstatněné atd.
Súťažné panely:
Vizualizácie:
Odmena (50 000 Kč): Marek Chalupa architekti s.r.o.
Autori: Ing. arch. Marek Chalupa, Štěpán Chalupa, Vojtěch Jeřábek, Jan Ptáček
Spolupráca: Alexandr Havlíček
Hodnotenie poroty:
Soutěžní návrh získal odměnu za snahu o reminiscenci stávající budovy moučných sil a otevřený parter.
Odmena (50 000 Kč): Rusina Frei, s. r. o.
Autori: Ing. arch. MgA. Martin Rusina, Ing. arch. Martin Frei, Jessica Kleistnerová, Susan Al-Hussein, Kristina Horváthová
Spolupráca: Hana Novotná, Veronika Květovská
Hodnotenie poroty:
Soutěžní návrh získal odměnu za přesunutí akustického sálu a ideu scelení výstavních prostor v 5.NP.
Odmena (50 000 Kč): ACME Space LTD
Autori: Friedrich Ludewig, Stefano Dal Piva, Vojtech Nemec, Jan Macbean, Emily Chan
Spolupráca: Martin Ocampo, Valentin Loeffler
Hodnotenie poroty:
Soutěžní návrh získal odměnu za podnět přesunutí depozitářů do přístavby a sjednocení výstavních prostor.
Odmena (50 000 Kč): Fránek Architects s.r.o.
Autori: Ing. arch. Zdeněk Fránek
Spolupráca: Jan Žahour, Michal Škoda, Olivia Dimitrishina, Tereza Kalábková, Libor Šenekel, Pavel Lauš, Adam Schwarz, Jakub Jurásek
Hodnotenie poroty:
Soutěžní návrh získal odměnu za podnět, jak lze výtvarně naložit s reliktem betonových sil.
Ostatné súťažné návrhy:
Katalóg:
Za podklady ďakujeme CBArchitektura.