Rad interiérových dverí DIVA DOOR od spoločnosti J.A.P. ponúka čistý dizajn a variabilné riešenia pre súčasné interiéry.
REHAU Window Solutions na veľtrhu Fensterbau Frontale 2026
Sortiment Slim Line zahŕňa pestrý výber dekorov a textúr.
Európska značka okien oslavuje jubileum: za 95 rokov sa vyvinula na najväčšiu medzinárodne pôsobiacu okennú značku a inovačného...
Na podujatí sa predstaví až 37 vystavovateľov - popredných dodávateľov stavebných materiálov a inovácií s prezentáciou...
Novotvar v prostredí alpskej obce.
Hansgrohe - prémiová značka kúpeľňových riešení, ponúka nadčasový dizajn, technickú precíznosť a udržateľné inovácie...
Využite špeciálnu akciu Internorm: okná za minuloročné ceny a hliníkový kryt úplne zadarmo. Ponuka je časovo obmedzená!
Sumarizácia najdôležitejších inovácií, ktoré redefinujúcich využitie tohto energetického zdroja.
AMPHIBIA 3000 GRIP 1.3 od spoločnosti ATRO predstavuje modernú hydroizolačnú technológiu, ktorá spája vysokú odolnosť,...
Ambiciózne plány EK narazili na ekonomické možnosti domácností v jednotlivých členských štátoch –...
IDEA DOOR od spoločnosti JAP prináša do interiéru čistý minimalistický vzhľad vďaka bezrámovému riešeniu a precíznej...
Kontinuita riešenia od vonkajšieho obkladu až po kovania a kľučky.
Nástenné nadomietkové armatúry Vitus sú mimoriadne vhodné pre rýchlu a efektívnu...
Okenné profily z kompozitného materiálu RAU-FIPRO X od spoločnosti Rehau sú v porovnaní s tradičnými plastovými profilmi mnohonásobne...

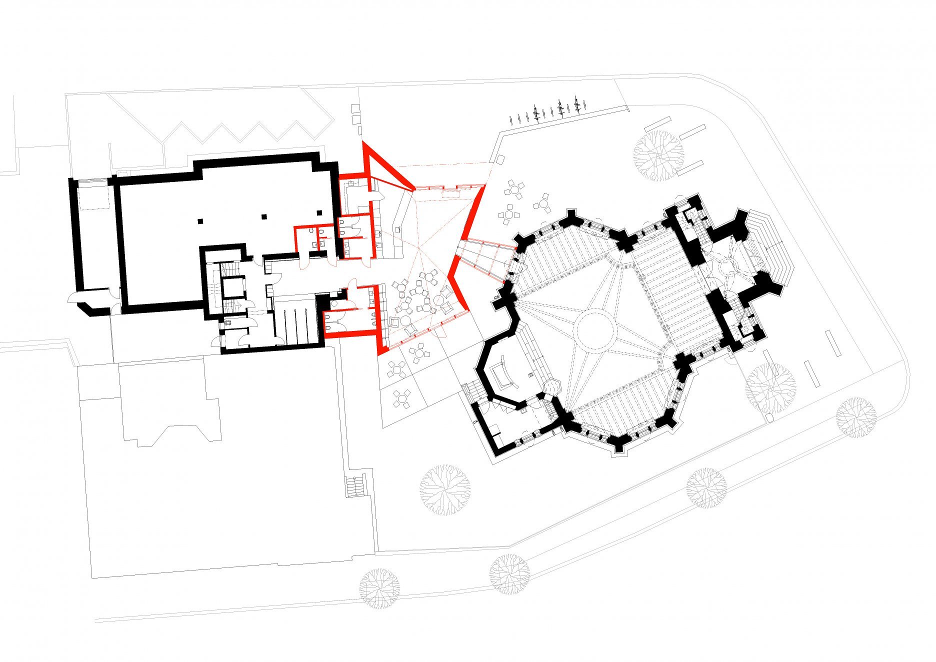
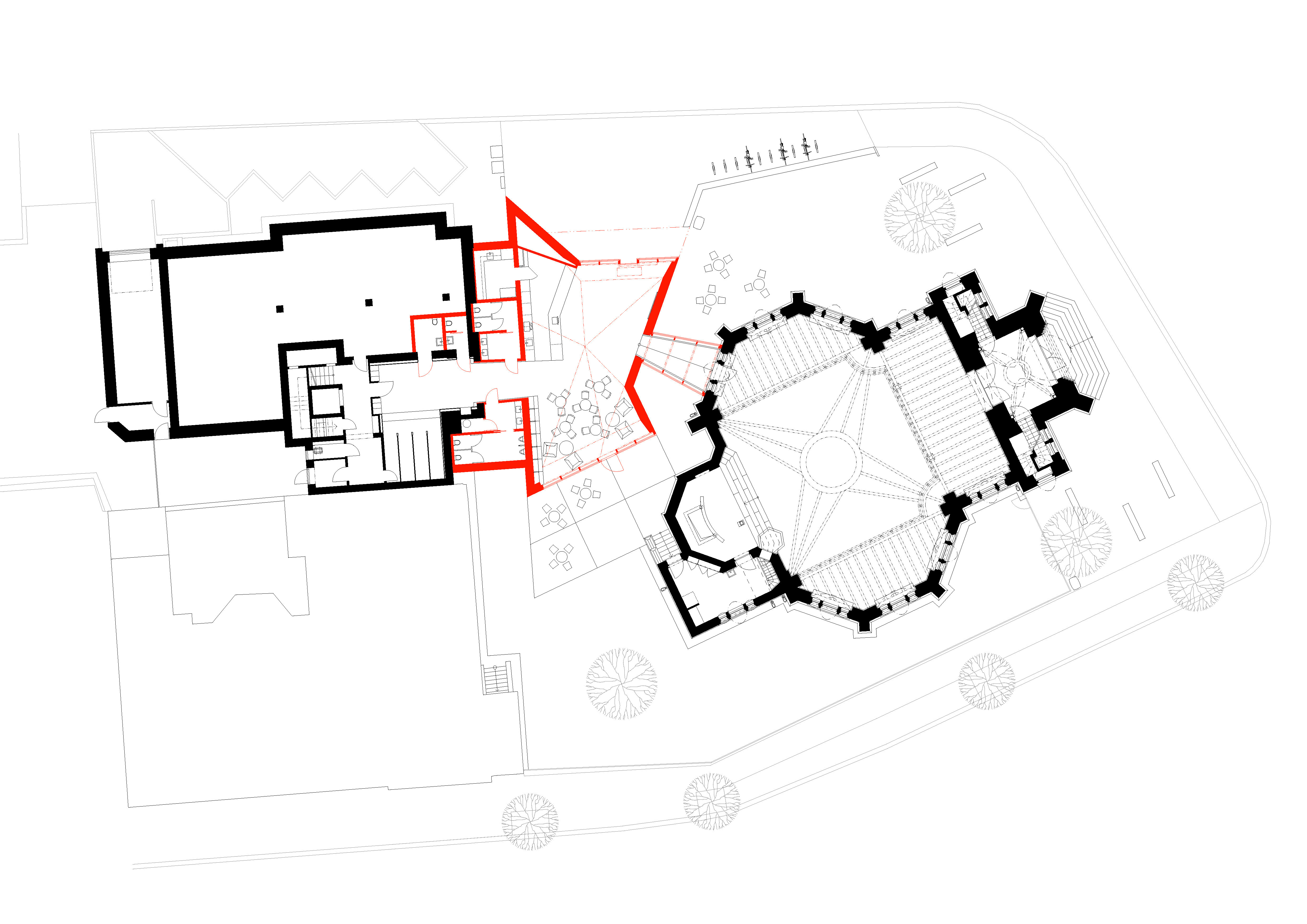
Pôvodný luteránsky Červený kostol v Olomouci bol od roku 1959 uzavretý a využívaný ako depozit kníh olomouckej Vedeckej knižnice. Olomoucký kraj sa ako vlastník pamiatkovo chránenej stavby rozhodol vybudovať na uskladnenie knižného fondu nový objekt. Tento krok umožnil zmenu využitia priestorov kostola. Tie po novom slúžia Vedeckej knižnici, ktorá budovu využíva ako centrum pre kultúrne aktivity a podujatia. Kostol slúži tiež ako komorná koncertná a divadelná sála, priestor pre verejné čítanie, prednášky a výstavy… Nachádza sa tu aj informačné centrum kraja a Vedeckej knižnice.
Úlohou architektov bolo skĺbiť rekonštrukciu pôvodnej stavby s novou kultúrno-spoločenskou funkciou. Objekt kostola bol pred rekonštrukciou vo veľmi zlom technickom stave. Bolo nutné spevniť jeho základy, vykonať sanáciu vlhkého a zasoleného muriva, opraviť zničené omietky a štuky, alebo vyčistiť a doplniť fasádny obklad. Boli realizované nové podlahy a všetky podkladové vrstvy, až na úroveň terénu. Medzi najväčšie zásahy patrila oprava strechy. Zatekanie poškodilo pôvodný krov, ktorý hrozil zrútením. Preto došlo k jeho výmene s maximálnou snahou o využitie pôvodných, nepoškodených prvkov. Novodobá krytina z falcovaných plechov bola nahradená štvorcovými medenými šablónami vo formáte pôvodnej krytiny. Na miesta pôvodných dekoratívnych prvkov strechy, ktoré sa nezachovali, boli doplnené súdobé artefakty z dielne olomouckého sochára Jana Dostála.
Nové využitie kostola vyžadovalo nutné prevádzkové zázemie, čo nebolo možné riešiť v pôvodných priestoroch stavby. Aby sa architekti vyhli nevhodným zásahom do pamiatkovo chráneného objektu, rozhodli sa pre jeho doplnenie o novú hmotu. Tá na seba prevzala funkcie prevádzkového a hygienického zázemia. Prístavba je umiestnená medzi hlavnou loďou kostola a objektom riaditeľstva knižnice. Vytvára tak ich spojnicu aj spoločný vstupný priestor s recepciou a kaviarňou. Prístavba rešpektuje uličnú čiaru ulice Bezručova a udržuje si dostatočný odstup od oboch stavieb.
Kryštalická hmota nového objektu reaguje na neogotickú formu Červeného kostola. Rovnako ako pôdorysná stopa novej časti, ktorá vychádza z jeho členenia. Pôdorys je výrezom časti podlahy kostola a je vysunutý mimo pôvodnej platformy.
Medzi podstatné zmeny, ktoré projekt priniesol, patrí uvoľnenie významnej časti okolitého priestoru kostola. Odstránenie oplotenia umožnilo vytvoriť verejne prístupnú piazzettu, ktorá je doplnená o mobiliár a novú kultivovanú zeleň.
Interiér
Atelier-r prizval k detailnému riešeniu interiéru (osvetlenie, nábytok na mieru) architektku Denisu Strmiskovú. Spoločne sa venovali špecifikácii všetkých materiálov a povrchov.
Pre Interiér prístavby s recepciou a menšou kaviarňou je charakteristický jemný ružový odtieň. Farba akcentuje betónové povrchy podláh, nábytku, alebo stien. Na pozadí pohľadového betónu a skla vyniká dekorácia v podobe steny vyplnenej starými knihami.
Fotografie - východiskový stav:
Fotografie zo stavby:
Použité materiály a riešenia::
Vonkajšiu vrstvu prevetrávanej dvojplášťovej fasády prístavby tvoria kompozitné hliníkové panely PREFA PREFABOND (hr. 4 mm, farba RAL 7022). Fasádu tvorí kombinácia štandardného formátu 4010 x 1535 x 4 mm a atypických prvkov s rozmermi 4010 x 5500 x 4 m. Rovnaké panely sú použité aj na streche nového krídla. Fasádne prvky sú k lineárnej oceľovej podkonštrukcii lepené, strešné panely sú kotvené skrutkami. Povlaková hydroizolácia, ukrytá pod kompozitnými panelmi odvádza vodu cez vnútorné zvody.
Autor: atelier-r
Podklady: Linka
Fotografie: BoysPlayNice