Advertorial

Pozvánka na 2. ročník stavebného veľtrhu BigMarket na Slovensku

Na podujatí sa predstaví až 37 vystavovateľov - popredných dodávateľov stavebných materiálov a inovácií s prezentáciou...

Hotel Hirschen Spa House, Rakúsko

Novotvar v prostredí alpskej obce.

Vytvorte si kúpeľňu snov: dizajnové riešenie od značky hansgrohe

Hansgrohe - prémiová značka kúpeľňových riešení, ponúka nadčasový dizajn, technickú precíznosť a udržateľné inovácie...

Okná Internorm za minuloročné ceny + hliníkový kryt zdarma!

Využite špeciálnu akciu Internorm: okná za minuloročné ceny a hliníkový kryt úplne zadarmo. Ponuka je časovo obmedzená!

Moderné plynové technológie: Efektivita a inovácie pre 21. storočie

Sumarizácia najdôležitejších inovácií, ktoré redefinujúcich využitie tohto energetického zdroja.

Utesňovanie spodných stavieb pomocou hydro-aktívnej fólie AMPHIBIA.

AMPHIBIA 3000 GRIP 1.3 od spoločnosti ATRO predstavuje modernú hydroizolačnú technológiu, ktorá spája vysokú odolnosť,...

Dekarbonizácia individuálneho vykurovania domácností – Green Deal evolučne a nie revolučne

Ambiciózne plány EK narazili na ekonomické možnosti domácností v jednotlivých členských štátoch –...

Minimalistické dvere IDEA – technická precíznosť a čistota prevedenia

IDEA DOOR od spoločnosti JAP prináša do interiéru čistý minimalistický vzhľad vďaka bezrámovému riešeniu a precíznej...

Dom s výhľadom na údolie, Dlouhý Most (ČR)

Kontinuita riešenia od vonkajšieho obkladu až po kovania a kľučky.

Schell Vitus – osvedčené riešenie pre sprchy a umývadlá vo verejnom sektore s viac ako desaťročnou tradíciou

Nástenné nadomietkové armatúry Vitus sú mimoriadne vhodné pre rýchlu a efektívnu...

Kompozitné okná predstavujú súčasnosť a budúcnosť

Okenné profily z kompozitného materiálu RAU-FIPRO X od spoločnosti Rehau sú v porovnaní s tradičnými plastovými profilmi mnohonásobne...

Myotis - stoly 2025

Najnovší sortiment stolov pre zariadenie interiérov...

Priemyselné sklenené priečky Dorsis Digero: svetelné rozhranie pre moderné interiéry

Spojenie moderného dizajnu, funkčnosti a svetla do harmonického architektonického prvku.

Význam prirodzeného svetla pre moderné a flexibilné pracovné prostredie

Kancelárska budova Baumit v slovinskom Trzine prešla premenou na moderné a udržateľné pracovisko. Architekti kládli dôraz...

Konferencia Xella Dialóg predstaví novinky a trendy v stavebníctve

Mottom šiesteho ročníku on-line konferencie odborníkov Xella Dialóg je Efektívny návrh budov 2025+: zmeny a riešenia

Bio Nails, Bratislava

Aj ružová môže byť dobrá. Aj jednoduchosť môže byť zaujímavá.
Diela
Red 420.11.2019
17510+30
Bio Nails, Bratislava
Autori: Mgr. art. Richard Kilo, Ing. arch. Matej HončInvestor: Bio NailsPodlažná plocha: 42,5 m2Návrh: 2018 - 2018Realizácia: 2018 - 2018Adresa: Pribinova 25, Bratislava, SlovenskoPublikované: 20. november 2019

Po “byte s obytným schodiskom” predstavujeme ďalší zaujímavý priestorový koncept ateliéru KILO/HONČ. Striedme a zároveň klientsky atraktívne dispozičné riešenie prevádzky v štandardnom obchodnom parteri. Priečky v interiéri nahrádza flexibilná “textilná stena”, ktorá diagonálne prebieha otvoreným priestorom. Vymedzuje funkčné zóny, zároveň však nie je pevnou fyzickou ani optickou bariérou.

Nekomplikovaný, a funkčný interiér pôsobí nenútene. Táto jednoduchosť a “ľahkosť” však skrýva viacero náročných detailov.

Realizáciu bližšie predstavia Richard Kilo a Matej Honč:

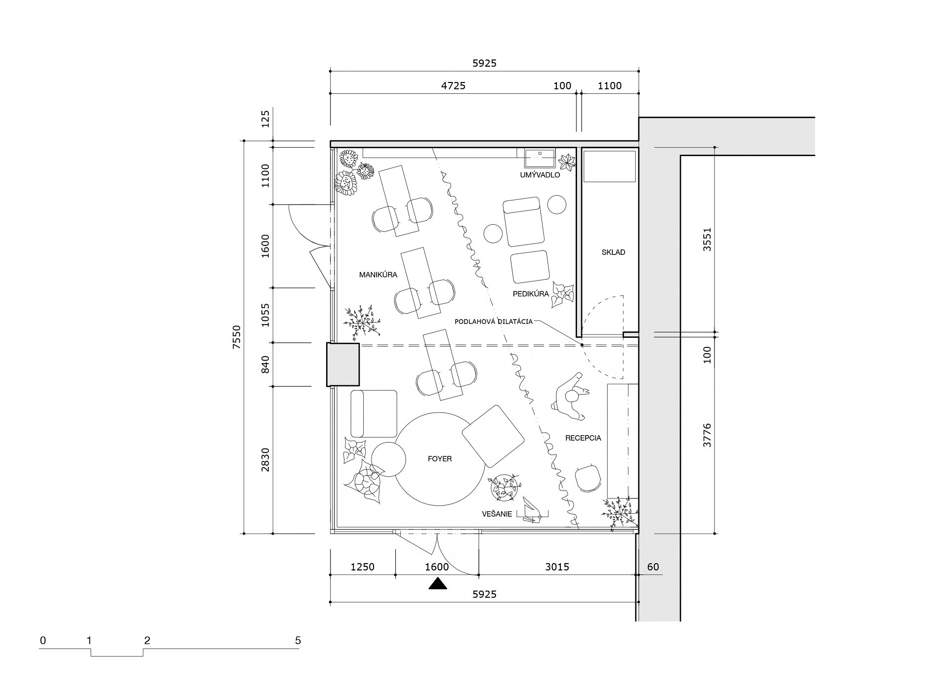
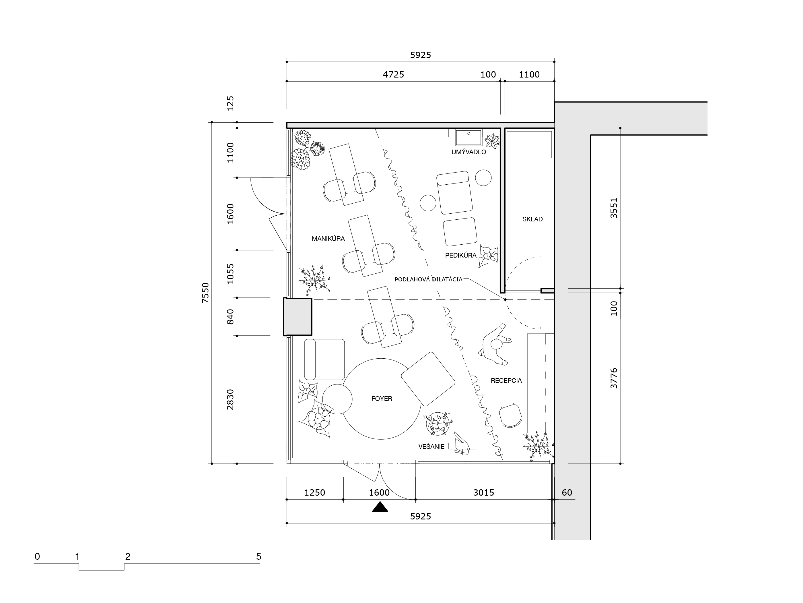
Základný koncept riešenia priestoru vychádza z potreby rozdeliť prevádzku na viac celkov - foyer, časť pre manikúru, intímnejšiu časť pre pedikúru, pokladňu a skladové priestory so zázemím pre zamestnancov. Máme radi, keď je architektúra, alebo interiér vo všeobecnosti málo zarovnávaný a je nepresný, nie sú jasne vymedzené hranice a začína existovať akási nedokonalosť. Výsledný dojem nie je potom taký sterilný. V našom prípade nechtového salónu Bionails, ktorý sa nachádza v obchodnom parteri Tower 115, sme novú dispozíciu predefinovali jemnou, mäkkou flexibilnou textilnou stenou.

Svojim diagonálnym umiestnením a transparenciou deformuje skutočné pôdorysné rozmery prevádzky, ale zároveň zachováva jej jednotu. Umožňuje transformáciu podľa aktuálnych potrieb. Páči sa nám, že vďaka tejto stene nevieme prečítať jej skutočnú hĺbku, vytvára neurčité obrazy a pohyby a v prípade potreby ponúka dostatočnú intimitu pre zákazníkov, ktorí prišli na pedikúru a usadia sa do pohodlného kresla. Tento priestor je jednoduchý, nemá jasne definované svoje prevádzkové hranice, má len jasne definovaný mobiliár. Samotná farebnosť vychádza z dizajnmanuálu spoločnosti. Výška zafarbenia stien a podlahy nám zjednocuje a upravuje proporciu samotného priestoru a vymedzuje ho. Ešte pred vstupom do vnútra, keď salón vnímate len zo strany koridoru obchodných priestorov, máte pocit jemného neskoordinovaného vybavenia tohto interiéru. Sú to skôr symbolické kulisy. Pýtate sa, "či ešte vybaľujete?". Takto nám to opísali niektorí jednotlivci.

Foto: Richard Kilo, Matej Honč
Foto: Richard Kilo, Matej Honč
Foto: Richard Kilo, Matej Honč
Foto: Richard Kilo, Matej Honč
Foto: Richard Kilo, Matej Honč
Foto: Richard Kilo, Matej Honč
Foto: Richard Kilo, Matej Honč
Foto: Richard Kilo, Matej Honč
Foto: Richard Kilo, Matej Honč
Foto: Richard Kilo, Matej Honč
Foto: Richard Kilo, Matej Honč
Foto: Richard Kilo, Matej Honč
Foto: Richard Kilo, Matej Honč
Foto: Richard Kilo, Matej Honč
Priestorová schéma
Priestorová schémaAutor: KILO / HONČ
Pôdorys
PôdorysAutor: KILO / HONČ

Autori: KILO / HONČ

Poloha diela

Mgr. art. Richard Kilo
Ing. arch. Matej Honč

Súvisiace články

Vložené
20. november 2019
0
1751
Hlavný obsahHlavný obsah
Čakajte prosím