Hansgrohe - prémiová značka kúpeľňových riešení, ponúka nadčasový dizajn, technickú precíznosť a udržateľné inovácie...
Využite špeciálnu akciu Internorm: okná za minuloročné ceny a hliníkový kryt úplne zadarmo. Ponuka je časovo obmedzená!
Na podujatí sa predstaví až 37 vystavovateľov - popredných dodávateľov stavebných materiálov a inovácií s prezentáciou...
Sumarizácia najdôležitejších inovácií, ktoré redefinujúcich využitie tohto energetického zdroja.
AMPHIBIA 3000 GRIP 1.3 od spoločnosti ATRO predstavuje modernú hydroizolačnú technológiu, ktorá spája vysokú odolnosť,...
Ambiciózne plány EK narazili na ekonomické možnosti domácností v jednotlivých členských štátoch –...
IDEA DOOR od spoločnosti JAP prináša do interiéru čistý minimalistický vzhľad vďaka bezrámovému riešeniu a precíznej...
Kontinuita riešenia od vonkajšieho obkladu až po kovania a kľučky.
Nástenné nadomietkové armatúry Vitus sú mimoriadne vhodné pre rýchlu a efektívnu...
Okenné profily z kompozitného materiálu RAU-FIPRO X od spoločnosti Rehau sú v porovnaní s tradičnými plastovými profilmi mnohonásobne...
Najnovší sortiment stolov pre zariadenie interiérov...
Spojenie moderného dizajnu, funkčnosti a svetla do harmonického architektonického prvku.
Kancelárska budova Baumit v slovinskom Trzine prešla premenou na moderné a udržateľné pracovisko. Architekti kládli dôraz...
Mottom šiesteho ročníku on-line konferencie odborníkov Xella Dialóg je Efektívny návrh budov 2025+: zmeny a riešenia
Robot WLTR predstavuje moderný prístup k murovaným konštrukciám. Vďaka automatizácii dokáže rýchlo, presne a bezpečne realizovať...

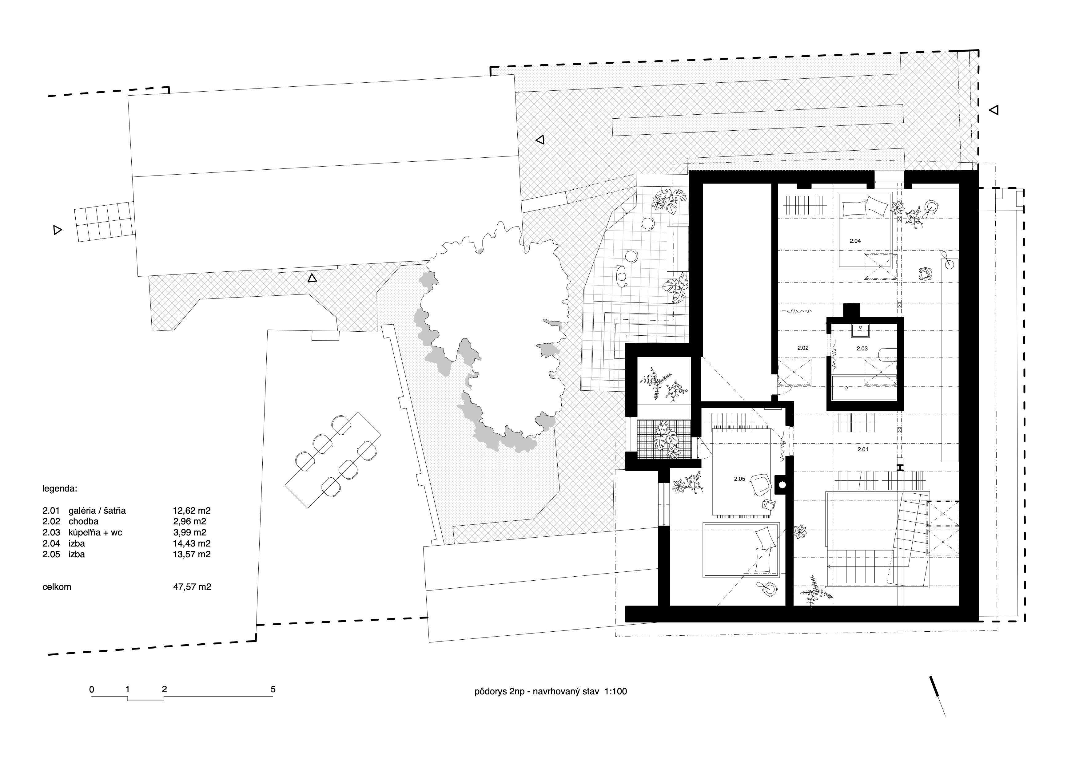
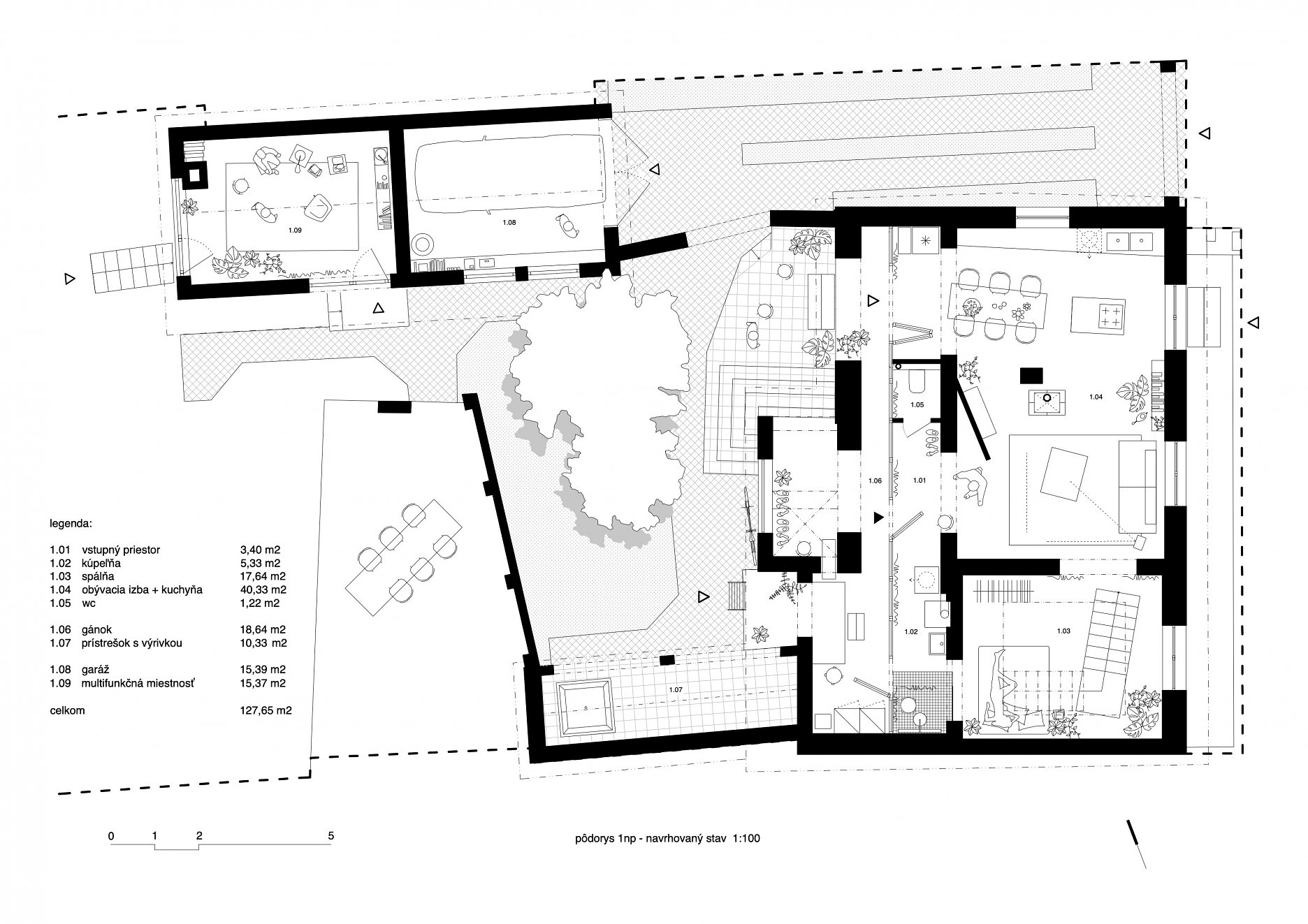
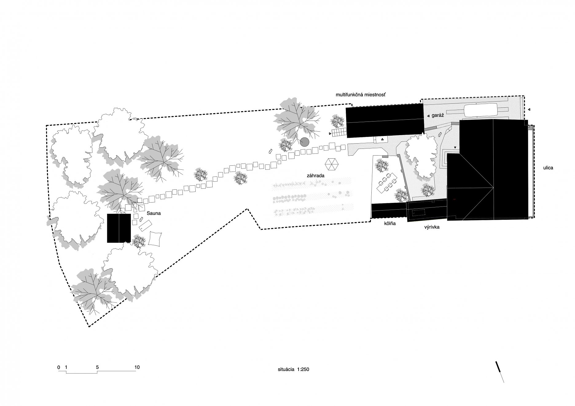
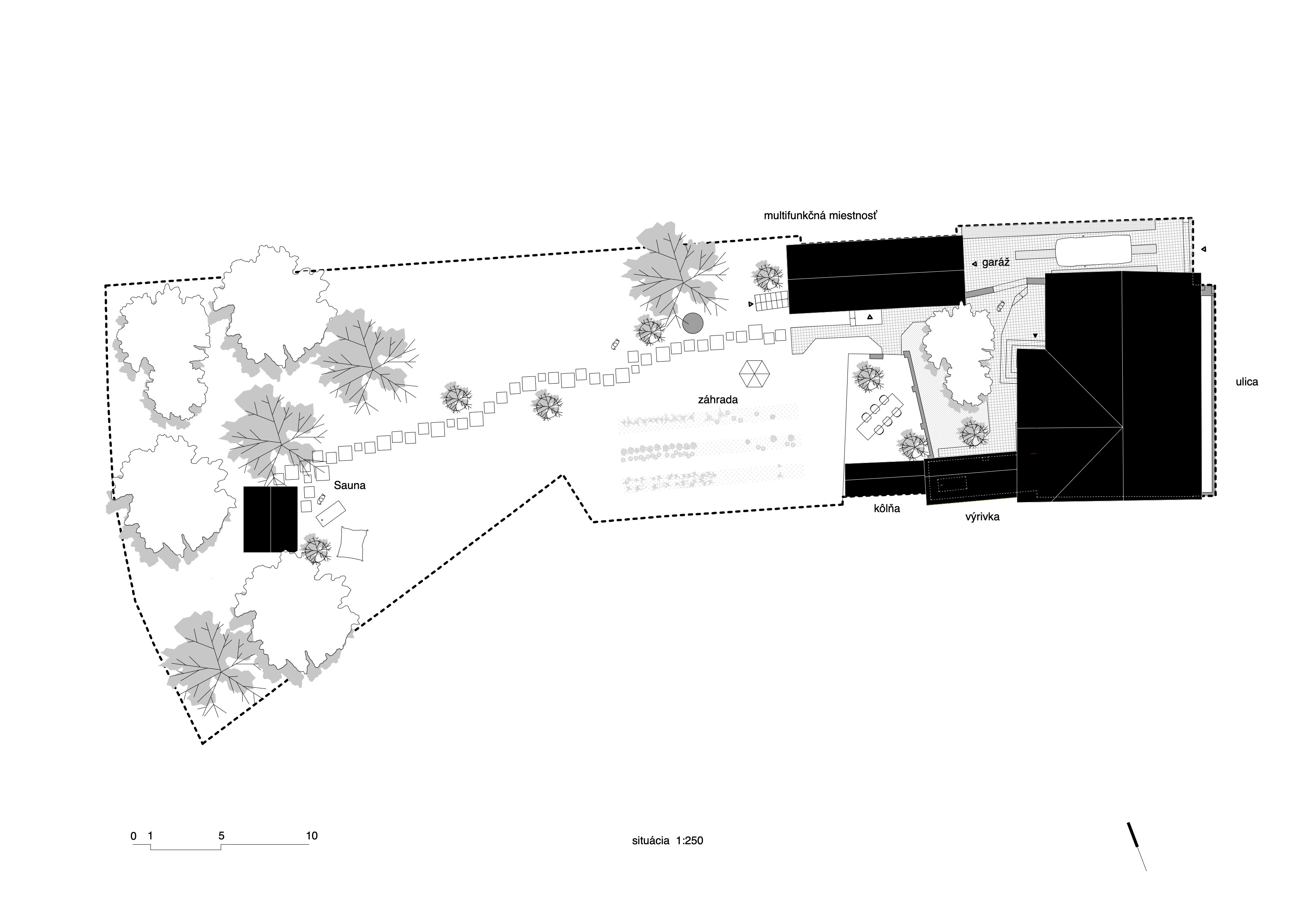
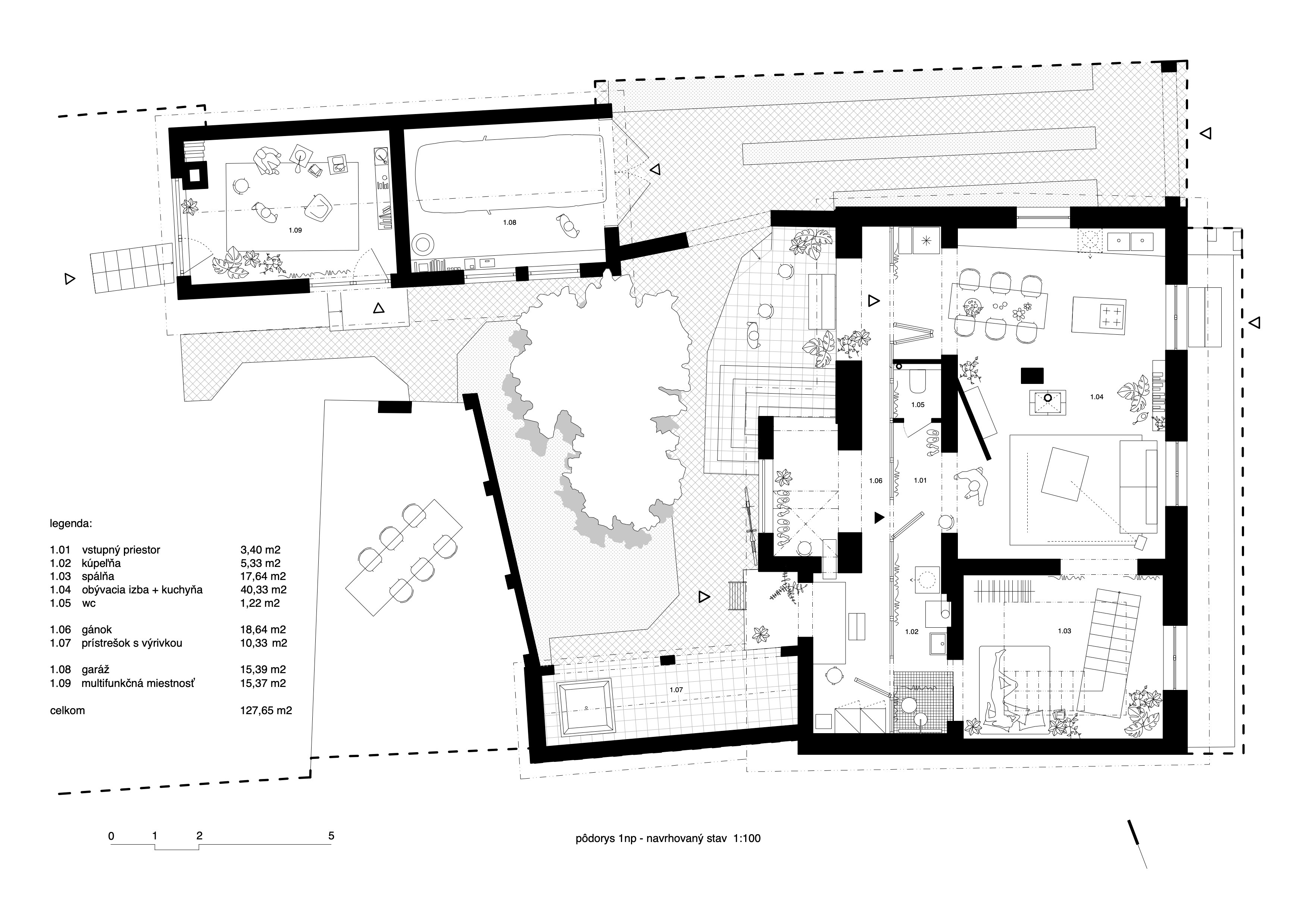
Rekonštrukcia domu v Plaveckom Štvrtku z dielne ateliéru KILO / HONČ, nominovaná v kategórii Rodinné domy v rámci aktuálneho ročníka CE ZA AR. "Prestavba staršieho domu je dôkazom toho, že aj problematické nehnuteľnosti možno premeniť na hodnotné obytné prostredie. Architekti prostredníctvom invenčných intervencií obrátili naruby pôvodnú uzavretú dispozíciu a vytvorili niekoľko pozoruhodných sekvencií polootvorených priestorov prepojených medzi sebou aj s exteriérom." stojí v sprievodnom texte poroty k nominácii.
Realizáciu bližšie predstaví sprievodný text architektov z ateliéru KILO / HONČ:
Rekonštrukcia rekonštruovaného domu. Architektúra bez architektúry. Rešpekt a práca s kontextom, nový program. Toto nám stačí. Naozaj.
Klasický vidiecky dom postavený v roku 1926, rekonštruovaný zhruba pred 25timi rokmi. Nie veľmi štastne. Naproti tomu nádherná záhrada končiaca lesom. V záhrade akési “námestie” a v strede námestia nádherný, starý orech. Boli sme očarení. Hľadáme esenciu, priestor, program, architektúru. Zároveň dom otáčame do záhrady. Otvárame ho a prepájame. Chceme žiť na záhrade, chceme žiť pod starým stromom, to je ono, cítite to? Pod lesom, kde si spravíme niekedy saunu. Áno až tam, aby sme museli prejsť celú záhradu. Okolo zeleninovej záhradky, okolo našej zašivárne, ktorú sme si spravili z bývalého skladu. Aby sme nemali všetko komfortne pod nosom. Dáme si tam aj vaňu alebo kaďu, aby sme sa mohli otužovať. A tak celkovo žiť trochu obyčajnejšie. Ostatne, aj preto sme išli na vidiek. Tiež posúvame hranicu interiéru. Vložením novej zapustenej presklennej steny. Lebo nechceme mať len interiér a exteriér. Chceme mať aj niečo medzi tým. Kde je v lete tieň, kde nám príjemne pofukuje vietor, dom sa neprehrieva, kde sa môžme motať, mať kvety, niečo majstrovať alebo len tak sedieť a nerobiť nič. Rozmazať trošku hranicu medzi dnu a vonku. Jednoducho byť len tak, my, vzduch, svetlo a náš život.
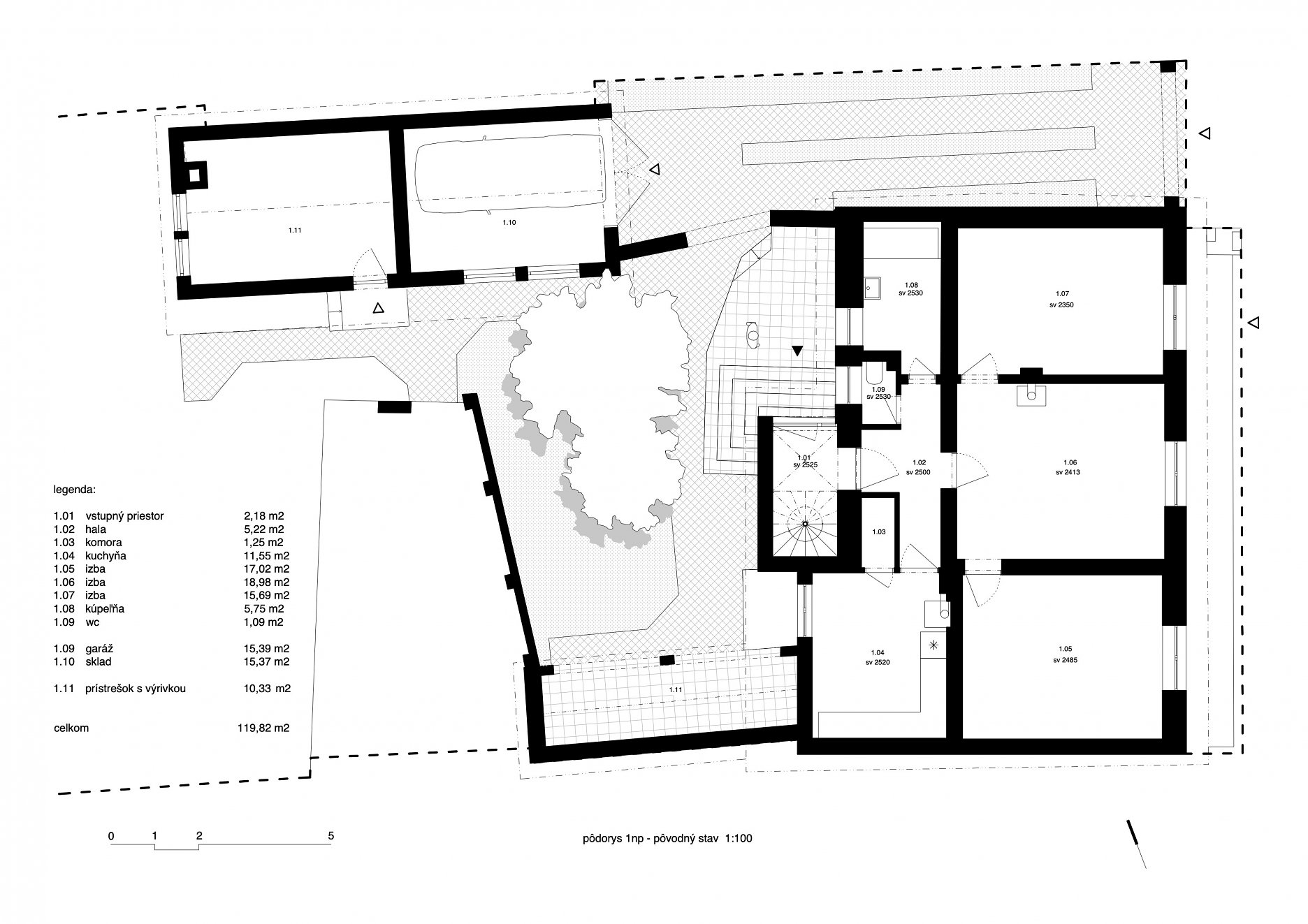
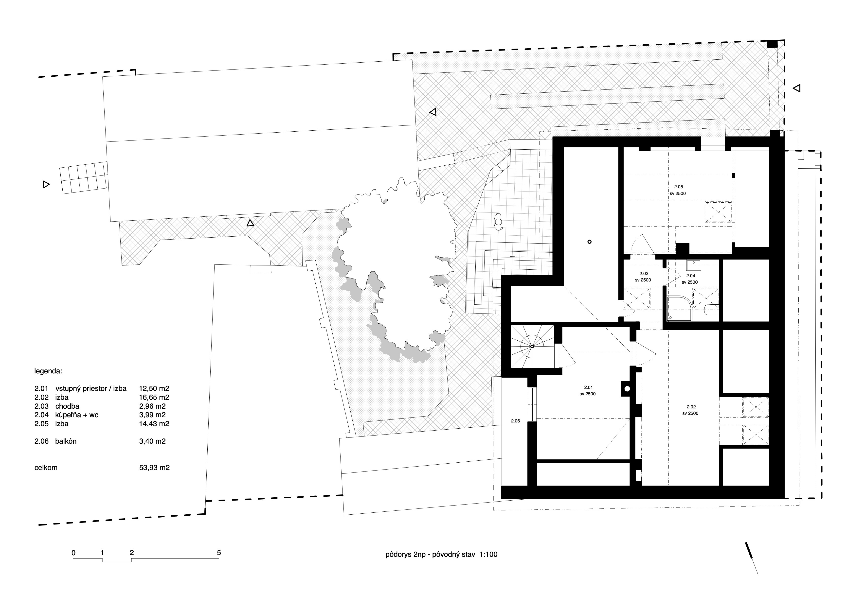
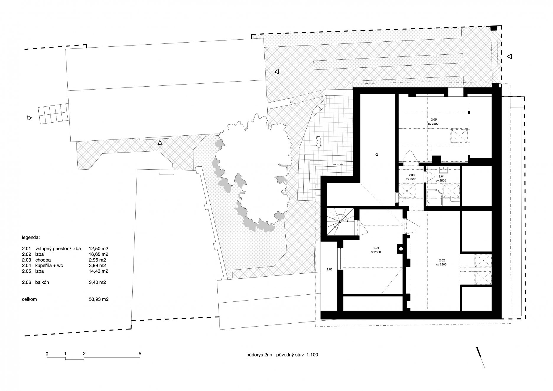
Fotografie pôvodného stavu:
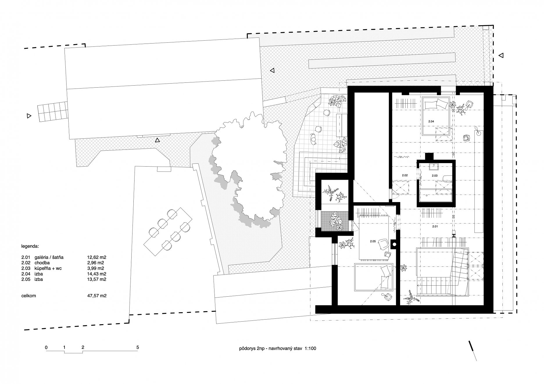
Fotografie zo stavby:
Autori: KILO / HONČ
Foto: Matej Hakár