Na podujatí sa predstaví až 37 vystavovateľov - popredných dodávateľov stavebných materiálov a inovácií s prezentáciou...
Novotvar v prostredí alpskej obce.
Hansgrohe - prémiová značka kúpeľňových riešení, ponúka nadčasový dizajn, technickú precíznosť a udržateľné inovácie...
Využite špeciálnu akciu Internorm: okná za minuloročné ceny a hliníkový kryt úplne zadarmo. Ponuka je časovo obmedzená!
Sumarizácia najdôležitejších inovácií, ktoré redefinujúcich využitie tohto energetického zdroja.
AMPHIBIA 3000 GRIP 1.3 od spoločnosti ATRO predstavuje modernú hydroizolačnú technológiu, ktorá spája vysokú odolnosť,...
Ambiciózne plány EK narazili na ekonomické možnosti domácností v jednotlivých členských štátoch –...
IDEA DOOR od spoločnosti JAP prináša do interiéru čistý minimalistický vzhľad vďaka bezrámovému riešeniu a precíznej...
Kontinuita riešenia od vonkajšieho obkladu až po kovania a kľučky.
Nástenné nadomietkové armatúry Vitus sú mimoriadne vhodné pre rýchlu a efektívnu...
Okenné profily z kompozitného materiálu RAU-FIPRO X od spoločnosti Rehau sú v porovnaní s tradičnými plastovými profilmi mnohonásobne...
Najnovší sortiment stolov pre zariadenie interiérov...
Spojenie moderného dizajnu, funkčnosti a svetla do harmonického architektonického prvku.
Kancelárska budova Baumit v slovinskom Trzine prešla premenou na moderné a udržateľné pracovisko. Architekti kládli dôraz...
Mottom šiesteho ročníku on-line konferencie odborníkov Xella Dialóg je Efektívny návrh budov 2025+: zmeny a riešenia

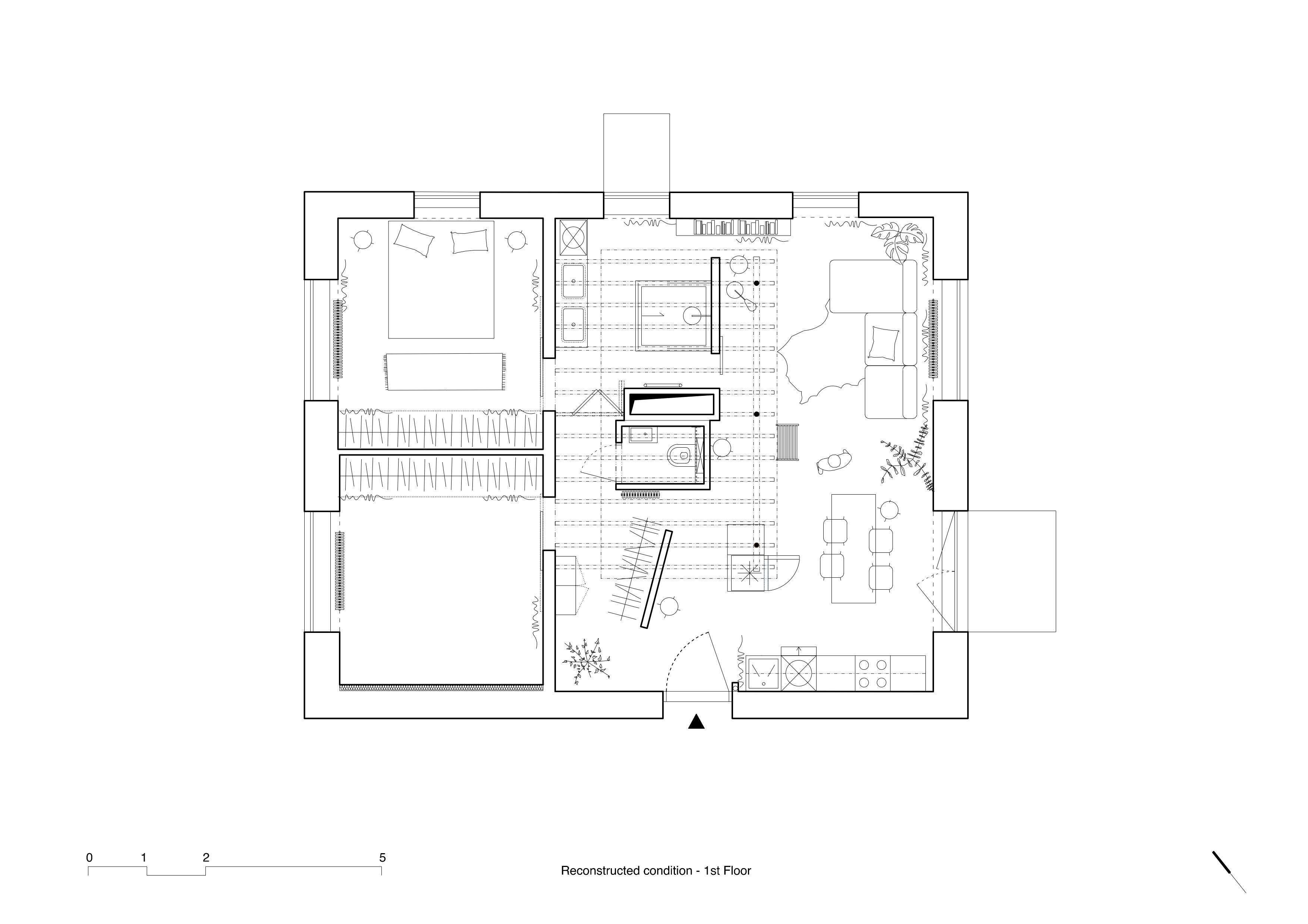
Loft z dielne bratislavského ateliéru KILO / HONČ stavia na kvalitách neobvyklého priestorového rámca, ktorý vznikol konverziou industriálneho objektu v širšom centre Piešťan. Bývanie v projekte Ružový Mlyn charakterizuje snaha autorov o vytvorenie trojrozmernej skladačky, s efemérnymi hranicami v rámci otvoreného bývania.
Realizáciu bližšie predstavia architekti Richard Kilo a Matej Honč:
Stropy vysoké takmer 3,5 metra, orientácia bytu do troch strán, no napriek tomu štandardná developerská dispozičná schéma v inak unikátnom projekte. Návrh “debariérizuje” priestor a zbavuje ho tmavých, dlhých chodieb vo vnútri dispozície.
Vytvárame krajinu priestorov a medzipriestorov. Pracujeme s výškou - pridávame druhú úroveň - plato. Zväčšujeme byt o vyše 16m2 pobytového priestoru. Bavia nás hry intimity a otvorenosti, svetla a tieňa, momenty prekvapenia. Keď nevieme čo nás čaká za rohom, alebo pri odsunutí dverí, či odtiahnutí závesu. Práca s proporciou - čo stačí a čo už je veľa, alebo málo. Čo sa stane keď sa prešuchnem tadiaľto...
Máme radi, keď nemožno priestory presne definovať, keď sa hranice stierajú a funkcia priestoru je do istej miery premenlivá. Keď si čítame knižku vo výške hojdajúc nohami vo vzduchu a pozeráme ako sa sťahuje plátno na projektor. Bude filmový večer.
Fotografie východiskového stavu:
Autori: KILO / HONČ
Foto: Matej Hakár