Advertorial

Vytvorte si kúpeľňu snov: dizajnové riešenie od značky hansgrohe

Hansgrohe - prémiová značka kúpeľňových riešení, ponúka nadčasový dizajn, technickú precíznosť a udržateľné inovácie...

Okná Internorm za minuloročné ceny + hliníkový kryt zdarma!

Využite špeciálnu akciu Internorm: okná za minuloročné ceny a hliníkový kryt úplne zadarmo. Ponuka je časovo obmedzená!

Pozvánka na 2. ročník stavebného veľtrhu BigMarket na Slovensku

Na podujatí sa predstaví až 37 vystavovateľov - popredných dodávateľov stavebných materiálov a inovácií s prezentáciou...

Moderné plynové technológie: Efektivita a inovácie pre 21. storočie

Sumarizácia najdôležitejších inovácií, ktoré redefinujúcich využitie tohto energetického zdroja.

Utesňovanie spodných stavieb pomocou hydro-aktívnej fólie AMPHIBIA.

AMPHIBIA 3000 GRIP 1.3 od spoločnosti ATRO predstavuje modernú hydroizolačnú technológiu, ktorá spája vysokú odolnosť,...

Dekarbonizácia individuálneho vykurovania domácností – Green Deal evolučne a nie revolučne

Ambiciózne plány EK narazili na ekonomické možnosti domácností v jednotlivých členských štátoch –...

Minimalistické dvere IDEA – technická precíznosť a čistota prevedenia

IDEA DOOR od spoločnosti JAP prináša do interiéru čistý minimalistický vzhľad vďaka bezrámovému riešeniu a precíznej...

Dom s výhľadom na údolie, Dlouhý Most (ČR)

Kontinuita riešenia od vonkajšieho obkladu až po kovania a kľučky.

Schell Vitus – osvedčené riešenie pre sprchy a umývadlá vo verejnom sektore s viac ako desaťročnou tradíciou

Nástenné nadomietkové armatúry Vitus sú mimoriadne vhodné pre rýchlu a efektívnu...

Kompozitné okná predstavujú súčasnosť a budúcnosť

Okenné profily z kompozitného materiálu RAU-FIPRO X od spoločnosti Rehau sú v porovnaní s tradičnými plastovými profilmi mnohonásobne...

Myotis - stoly 2025

Najnovší sortiment stolov pre zariadenie interiérov...

Priemyselné sklenené priečky Dorsis Digero: svetelné rozhranie pre moderné interiéry

Spojenie moderného dizajnu, funkčnosti a svetla do harmonického architektonického prvku.

Význam prirodzeného svetla pre moderné a flexibilné pracovné prostredie

Kancelárska budova Baumit v slovinskom Trzine prešla premenou na moderné a udržateľné pracovisko. Architekti kládli dôraz...

Konferencia Xella Dialóg predstaví novinky a trendy v stavebníctve

Mottom šiesteho ročníku on-line konferencie odborníkov Xella Dialóg je Efektívny návrh budov 2025+: zmeny a riešenia

Murovací robot WLTR stavia svoj prvý dom na Slovensku

Robot WLTR predstavuje moderný prístup k murovaným konštrukciám. Vďaka automatizácii dokáže rýchlo, presne a bezpečne realizovať...

Byt 1903, Trnava

Ostrý rez stodvadsaťročným bytom.
Diela
Red 324.06.2021
74840+116
Byt 1903, Trnava
Autori: Mgr. art. Richard Kilo, Ing. arch. Matej HončPodlažná plocha: 119,5 m2Návrh: 2020 - 2020Realizácia: 2020 - 2021Adresa: Trnava, SlovenskoPublikované: 24. jún 2021

Pre realizácie autorskej dvojice Kilo / Honč sú charakteristické neobvyklé priestorové riešenia, ktoré otvárajú potenciál pôvodných interiérov. Príkladom môže byť bývanie so vstupom na na úrovni podesty, kde výstupné rameno schodiska tvorí súčasť využiteľnej plochy bytu, alebo otvorené bývanie pre mladú rodinu na bratislavskej Svätoplukovej ulici.

Výnimkou nie je ani takmer stodvadsaťročný prízemný byt v Trnave, ktorý navrhli pre mladú rodinu. “Povedali sme si, že necháme vyniknúť priestor a budeme pracovať len s ním,” vysvetľujú architekti.

Foto: Matej Hakár
Foto: Matej Hakár
Foto: Matej Hakár

Je to o priehľadoch naprieč bytom. O pocite otvorenosti a jednoduchosti. O hľadaní miesta pre individuality...

 

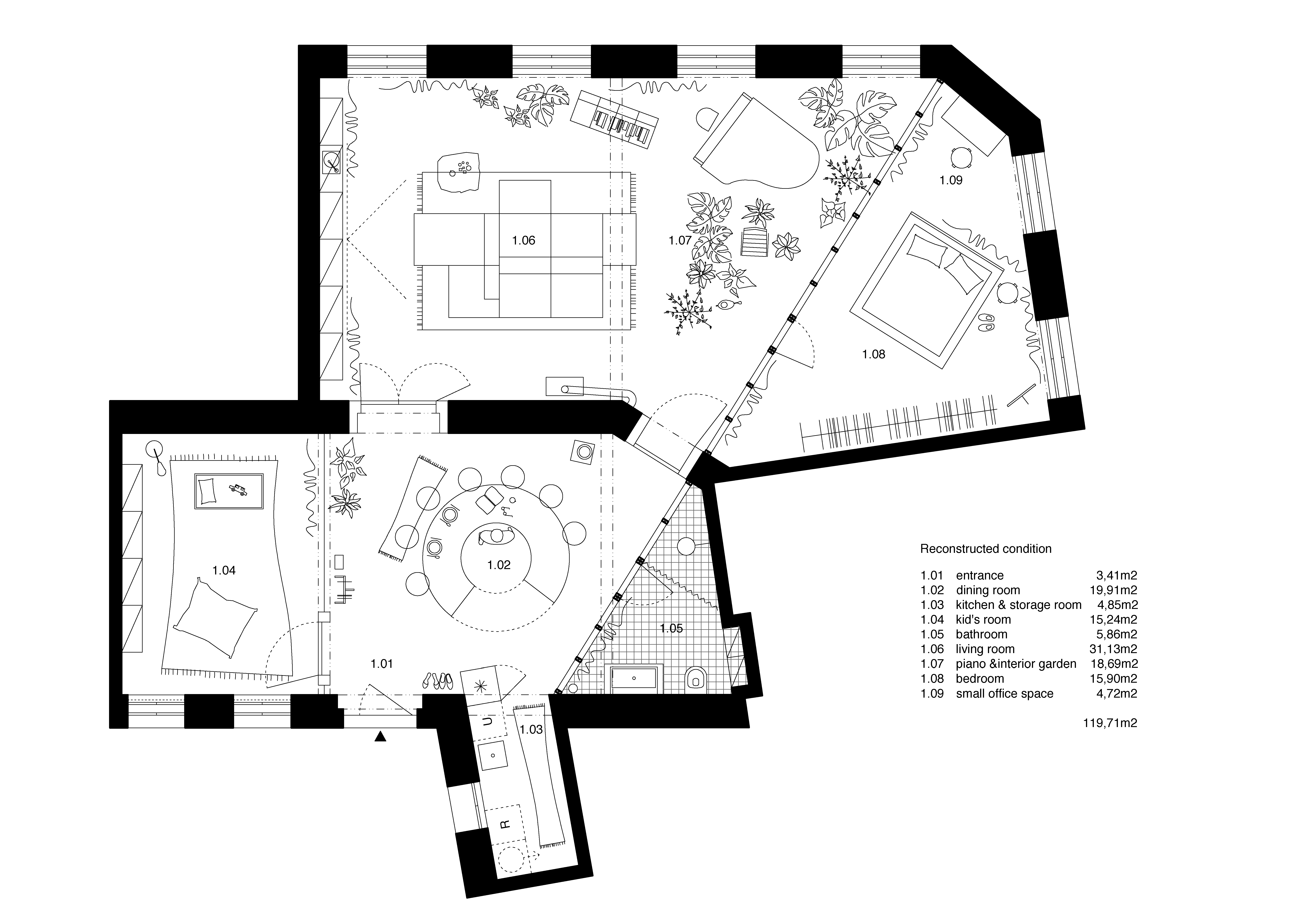
Pôdorys - pôvodný stav
Pôdorys - pôvodný stavAutor: KILO / HONČ

 

Richard Kilo s Matejom Hončom radikálne otvorili pôvodný pôdorys. Funkčné zóny nanovo definujú priehľadné priečky so závesmi, ktoré umožňujú vnímať hĺbku priestoru, no zároveň v prípade potreby poskytujú dostatok intimity. Dominantný prvok v priestore tvorí výrazná diagonála zo zasklených konštrukčných profilov. Vymedzuje kúpeľňu, následne prechádza do druhého krídla bytu, kde oddeľuje spálňu od otvorenej obývačky s prístupom do vnútornej záhrady. K otvoreniu a presvetleniu interiéru prispelo tiež odkrytie pôvodného dreveného trámového stropu, cez ktorý navyše prechádzajú oceľové výstuže. 

Nábytok definuje to najnutnejšie a najpotrebnejšie: “Našim zámerom bolo vytvoriť skôr atmosféry, ako prísne preddefinované priestory...” zdôrazňujú autori. 

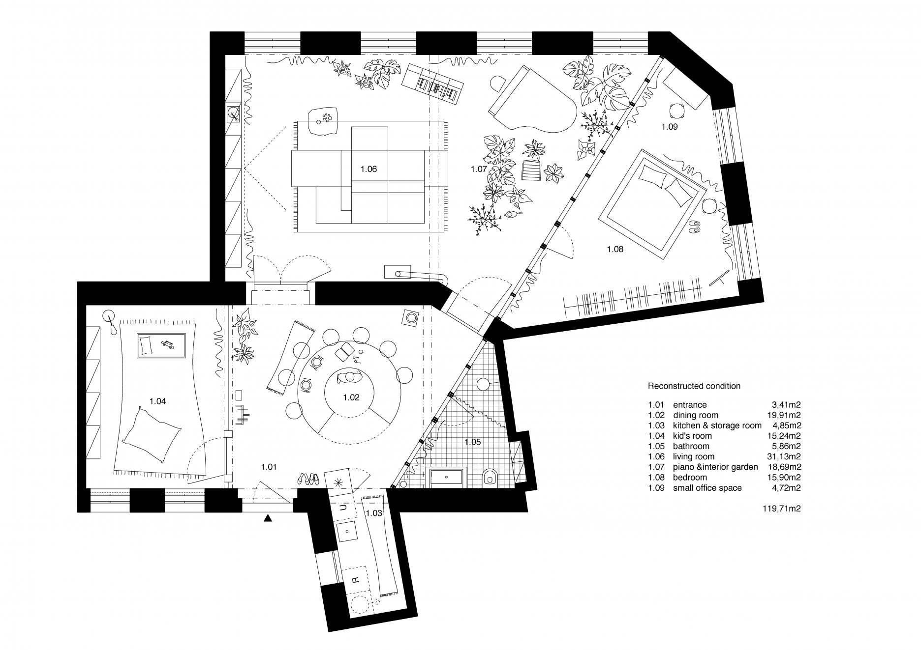
Pôdorys - nový stav
Pôdorys - nový stavAutor: KILO / HONČ

Do bytu sa vstupuje zo súkromného nádvoria slúžiaceho obyvateľom domu. Privíta vás priestranná jedáleň, prepojená s kuchyňou, na mieste bývalej komory. Staré dvere, vložené do priehľadnej priečky sprístupňujú detskú izbu po ľavej ruke. Vpravo prebieha spomínaná priehľadná diagonála, ktorá oddeľuje nočnú časť a hygienu od obývačky s krbom a klavírom, obojstranne orientovaným sedením, a knižnicou / úložnými priestormi, ktoré je možné prekonvertovať na filmové plátno.  

Axonometria - nový stav
Axonometria - nový stavAutor: KILO / HONČ

Stavebné konštrukcie sú zjednotené bielym náterom, ktorý necháva vyniknúť pôvodné parkety a nábytkové solitéry. Frekventované zóny vstupu, kuchyne s jedálňou a detskej izby spája odolná liata podlaha. 

Projekt charakterizuje priestorová hĺbka, umožňujúca súčasné vnímanie viacerých vrstiev interiéru. “Musíme si premyslieť, čo presne vo svojom živote potrebujeme. Možno len o niečo viac ako nič. O tom je rekonštrukcia v Trnave. O jednoduchosti, geometrii, zážitku z priestoru, kde je nábytok skôr scénou a symbolickým rozprávaním. Je to o samotnom byte, ľuďoch, láske, dlhých večeroch, diskusiách, o jedle, deťoch, pocitoch...” dopĺňajú na záver architekti Richard Kilo a Matej Honč.

Foto: Matej Hakár
Foto: Matej Hakár
Foto: Matej Hakár
Foto: Matej Hakár
Foto: Matej Hakár
Foto: Matej Hakár
Foto: Matej Hakár
Foto: Matej Hakár
Foto: Matej Hakár
Foto: Matej Hakár
Foto: Matej Hakár
Foto: Matej Hakár
Foto: Matej Hakár
Foto: Matej Hakár
Foto: Matej Hakár

Poloha diela

Mgr. art. Richard Kilo
Ing. arch. Matej Honč

Súvisiace články

Matej HakárSKBratislava
Vložené
21. jún 2021
0
7484
Hlavný obsahHlavný obsah
Čakajte prosím