Advertorial

Pozvánka na 2. ročník stavebného veľtrhu BigMarket na Slovensku

Na podujatí sa predstaví až 37 vystavovateľov - popredných dodávateľov stavebných materiálov a inovácií s prezentáciou...

Hotel Hirschen Spa House, Rakúsko

Novotvar v prostredí alpskej obce.

Vytvorte si kúpeľňu snov: dizajnové riešenie od značky hansgrohe

Hansgrohe - prémiová značka kúpeľňových riešení, ponúka nadčasový dizajn, technickú precíznosť a udržateľné inovácie...

Okná Internorm za minuloročné ceny + hliníkový kryt zdarma!

Využite špeciálnu akciu Internorm: okná za minuloročné ceny a hliníkový kryt úplne zadarmo. Ponuka je časovo obmedzená!

Moderné plynové technológie: Efektivita a inovácie pre 21. storočie

Sumarizácia najdôležitejších inovácií, ktoré redefinujúcich využitie tohto energetického zdroja.

Utesňovanie spodných stavieb pomocou hydro-aktívnej fólie AMPHIBIA.

AMPHIBIA 3000 GRIP 1.3 od spoločnosti ATRO predstavuje modernú hydroizolačnú technológiu, ktorá spája vysokú odolnosť,...

Dekarbonizácia individuálneho vykurovania domácností – Green Deal evolučne a nie revolučne

Ambiciózne plány EK narazili na ekonomické možnosti domácností v jednotlivých členských štátoch –...

Minimalistické dvere IDEA – technická precíznosť a čistota prevedenia

IDEA DOOR od spoločnosti JAP prináša do interiéru čistý minimalistický vzhľad vďaka bezrámovému riešeniu a precíznej...

Dom s výhľadom na údolie, Dlouhý Most (ČR)

Kontinuita riešenia od vonkajšieho obkladu až po kovania a kľučky.

Schell Vitus – osvedčené riešenie pre sprchy a umývadlá vo verejnom sektore s viac ako desaťročnou tradíciou

Nástenné nadomietkové armatúry Vitus sú mimoriadne vhodné pre rýchlu a efektívnu...

Kompozitné okná predstavujú súčasnosť a budúcnosť

Okenné profily z kompozitného materiálu RAU-FIPRO X od spoločnosti Rehau sú v porovnaní s tradičnými plastovými profilmi mnohonásobne...

Myotis - stoly 2025

Najnovší sortiment stolov pre zariadenie interiérov...

Priemyselné sklenené priečky Dorsis Digero: svetelné rozhranie pre moderné interiéry

Spojenie moderného dizajnu, funkčnosti a svetla do harmonického architektonického prvku.

Význam prirodzeného svetla pre moderné a flexibilné pracovné prostredie

Kancelárska budova Baumit v slovinskom Trzine prešla premenou na moderné a udržateľné pracovisko. Architekti kládli dôraz...

Konferencia Xella Dialóg predstaví novinky a trendy v stavebníctve

Mottom šiesteho ročníku on-line konferencie odborníkov Xella Dialóg je Efektívny návrh budov 2025+: zmeny a riešenia

Loft, Bratislava

Jeden človek, jedno zviera a “pokoj v duši”...
Diela
Red 313.11.2022
44510+138
Loft, Bratislava
Autori: Mgr. art. Richard Kilo, Ing. arch. Matej Honč, MgA. Bára AntošováPodlažná plocha: 52,1 m2Návrh: 2020 - 2020Realizácia: 2021 - 2022Adresa: Bratislava, SlovenskoPublikované: 13. november 2022

Adaptácia, ktorá ukazuje jeden z možných prístupov k tvorbe interiéru. Hra s priestorom. Hľadanie prevádzkovej schémy otvorenej zmenám a flexibilnému využitiu. Experiment. Nečakané momenty. Riešenia, ktoré fungujú iba v danom priestore a pre konkrétneho klienta. Jasný rukopis ateliéru Kilo / Honč (viď. tiež súviasiace články v závere textu).

Foto: Matej Hakár

Projekt bližšie predstavia architekti Richard Kilo a Matej Honč:

Jeden človek, jedno zviera a “pokoj v duši”...

Pôvodná schéma bytu nám pre toto zadanie nesadla. Chceli sme mu preto dať vo svojom riešení ľahkosť a éterickosť. Definovať ho, ale zároveň zostať otvorený. Niečo čo je veľké, niečo naopak malé. Tam je toho veľa, na druhej strane naopak málo. 

Ako sa v ňom má človek hýbať, čo kam umiestňovať a ako ho používať? Riešenie bytu hovorí o tom, že je to jedno, sústredí pozornosť na pocit a jednotlivca. Niektoré časti bytu majú pochopiteľne svoje pevné miesto, ale to je všetko.

O  téme priestor a jeho možnosti dlhodobo diskutujeme. Sme preto radi, že aj táto schéma vo svojej podstate definuje iba veľmi málo. Práve len to, čo tam nie je. Byt je vďaka svojej hĺbke intimity tým pádom otvorený pre akékoľvek zmeny vo vedomom používaní.

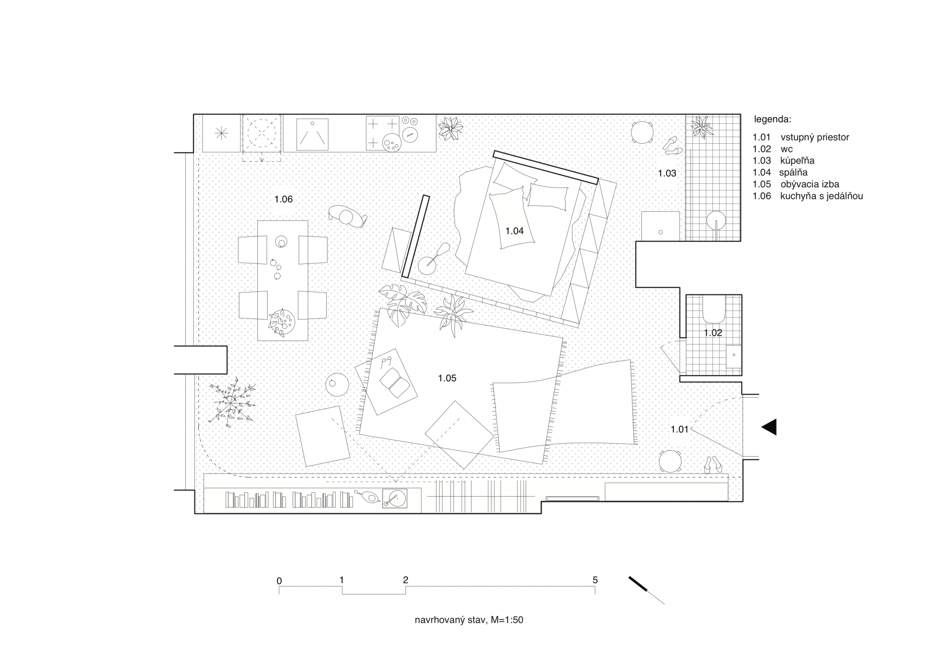
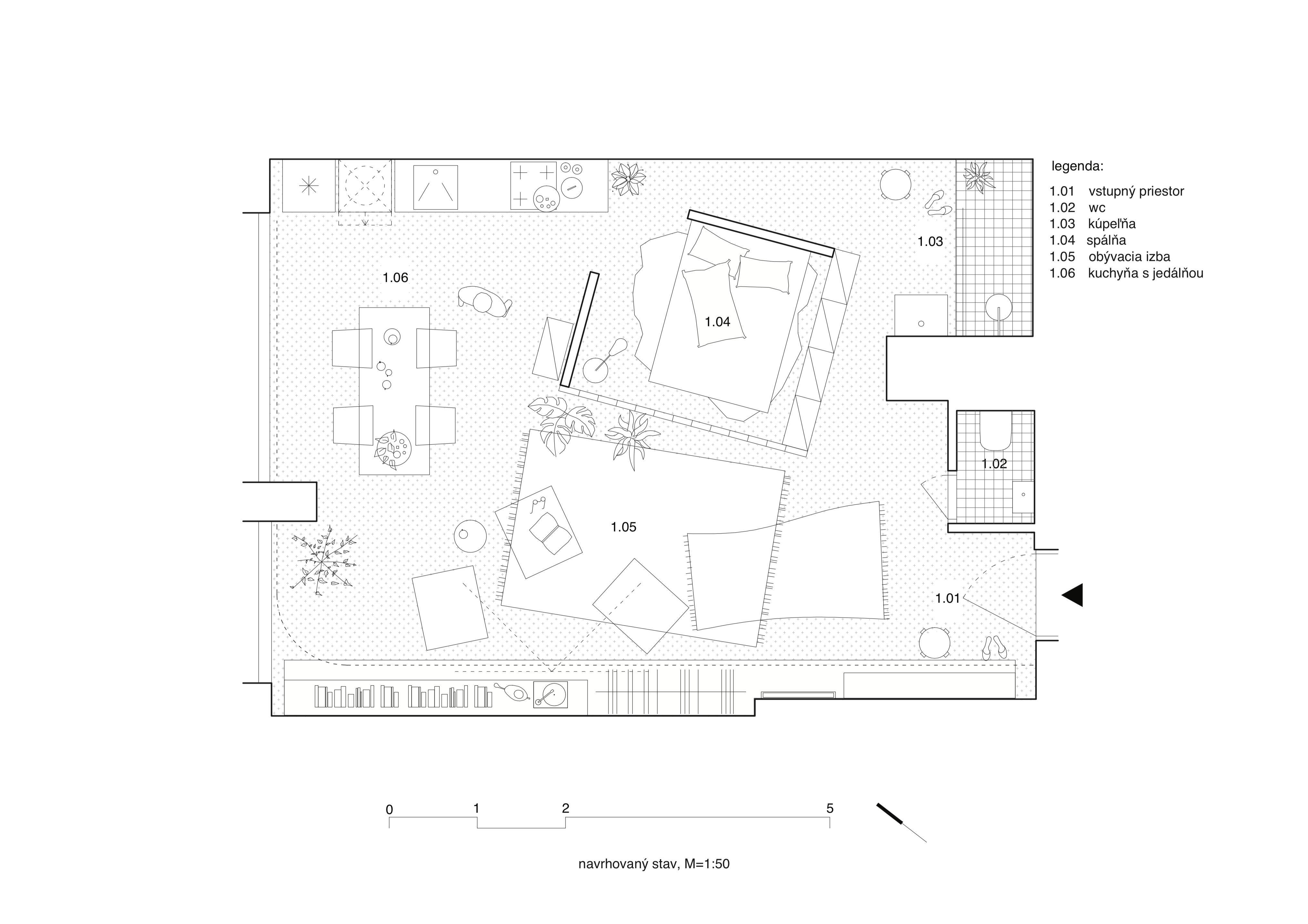
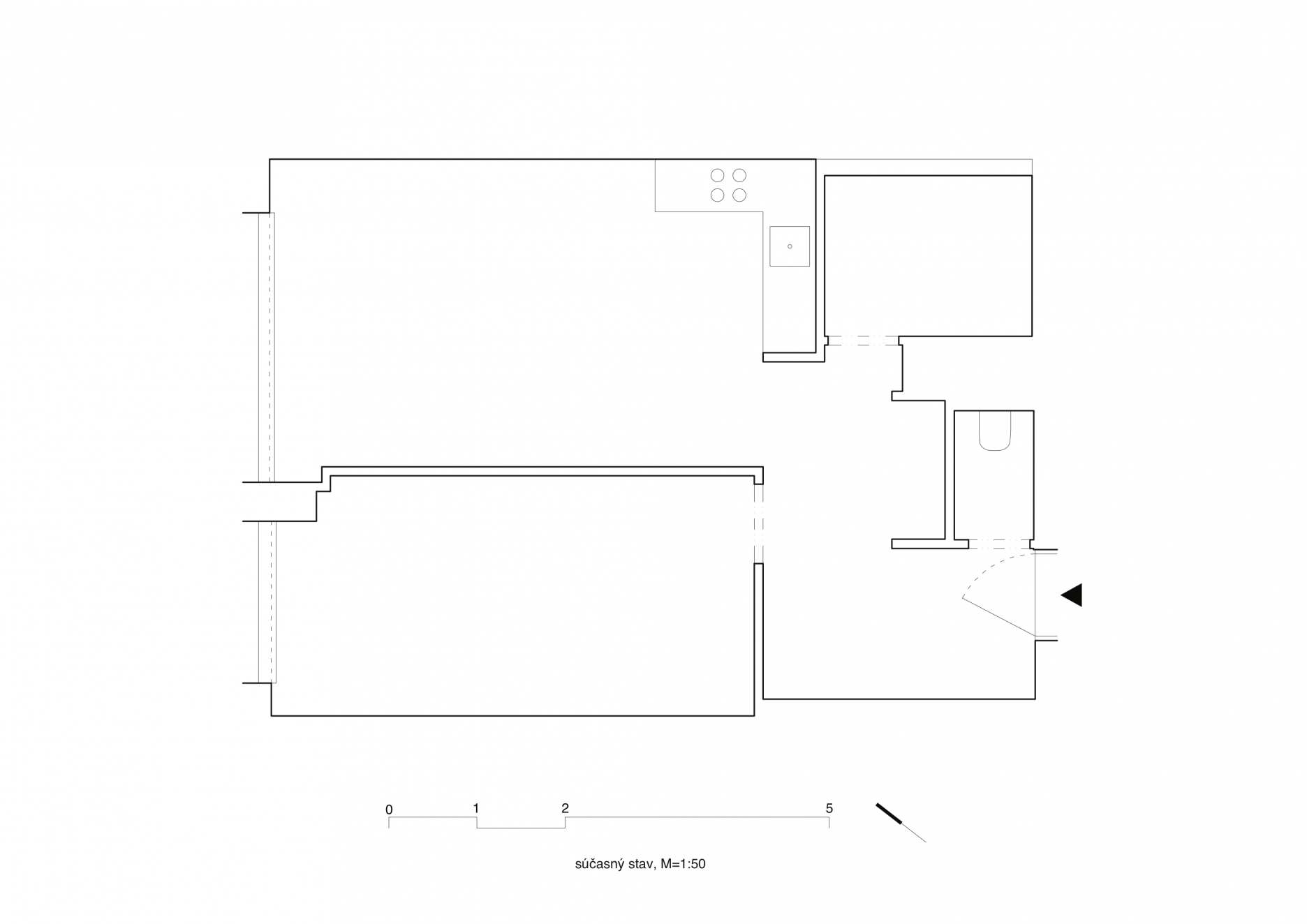
Pôdorys - východiskový stav
Pôdorys - východiskový stavAutor: KILO / HONČ
Pôdorys - nový stav
Pôdorys - nový stavAutor: KILO / HONČ
Foto: Matej Hakár
Foto: Matej Hakár
Foto: Matej Hakár
Foto: Matej Hakár
Foto: Matej Hakár
Foto: Matej Hakár
Foto: Matej Hakár
Foto: Matej Hakár
Foto: Matej Hakár
Foto: Matej Hakár
Foto: Matej Hakár
Foto: Matej Hakár
Foto: Matej Hakár
Foto: Matej Hakár
Foto: Matej Hakár

Vizualizácie:

Vizualizácia: KILO / HONČ
Vizualizácia: KILO / HONČ
Vizualizácia: KILO / HONČ
Vizualizácia: KILO / HONČ

Poloha diela

Mgr. art. Richard Kilo
Ing. arch. Matej Honč
MgA. Bára Antošová

Súvisiace články

Matej HakárSKBratislava
Vložené
9. november 2022
0
4451
Hlavný obsahHlavný obsah
Čakajte prosím