Advertorial

Pozvánka na 2. ročník stavebného veľtrhu BigMarket na Slovensku

Na podujatí sa predstaví až 37 vystavovateľov - popredných dodávateľov stavebných materiálov a inovácií s prezentáciou...

Hotel Hirschen Spa House, Rakúsko

Novotvar v prostredí alpskej obce.

Vytvorte si kúpeľňu snov: dizajnové riešenie od značky hansgrohe

Hansgrohe - prémiová značka kúpeľňových riešení, ponúka nadčasový dizajn, technickú precíznosť a udržateľné inovácie...

Okná Internorm za minuloročné ceny + hliníkový kryt zdarma!

Využite špeciálnu akciu Internorm: okná za minuloročné ceny a hliníkový kryt úplne zadarmo. Ponuka je časovo obmedzená!

Moderné plynové technológie: Efektivita a inovácie pre 21. storočie

Sumarizácia najdôležitejších inovácií, ktoré redefinujúcich využitie tohto energetického zdroja.

Utesňovanie spodných stavieb pomocou hydro-aktívnej fólie AMPHIBIA.

AMPHIBIA 3000 GRIP 1.3 od spoločnosti ATRO predstavuje modernú hydroizolačnú technológiu, ktorá spája vysokú odolnosť,...

Dekarbonizácia individuálneho vykurovania domácností – Green Deal evolučne a nie revolučne

Ambiciózne plány EK narazili na ekonomické možnosti domácností v jednotlivých členských štátoch –...

Minimalistické dvere IDEA – technická precíznosť a čistota prevedenia

IDEA DOOR od spoločnosti JAP prináša do interiéru čistý minimalistický vzhľad vďaka bezrámovému riešeniu a precíznej...

Dom s výhľadom na údolie, Dlouhý Most (ČR)

Kontinuita riešenia od vonkajšieho obkladu až po kovania a kľučky.

Schell Vitus – osvedčené riešenie pre sprchy a umývadlá vo verejnom sektore s viac ako desaťročnou tradíciou

Nástenné nadomietkové armatúry Vitus sú mimoriadne vhodné pre rýchlu a efektívnu...

Kompozitné okná predstavujú súčasnosť a budúcnosť

Okenné profily z kompozitného materiálu RAU-FIPRO X od spoločnosti Rehau sú v porovnaní s tradičnými plastovými profilmi mnohonásobne...

Myotis - stoly 2025

Najnovší sortiment stolov pre zariadenie interiérov...

Priemyselné sklenené priečky Dorsis Digero: svetelné rozhranie pre moderné interiéry

Spojenie moderného dizajnu, funkčnosti a svetla do harmonického architektonického prvku.

Význam prirodzeného svetla pre moderné a flexibilné pracovné prostredie

Kancelárska budova Baumit v slovinskom Trzine prešla premenou na moderné a udržateľné pracovisko. Architekti kládli dôraz...

Konferencia Xella Dialóg predstaví novinky a trendy v stavebníctve

Mottom šiesteho ročníku on-line konferencie odborníkov Xella Dialóg je Efektívny návrh budov 2025+: zmeny a riešenia

Átriový dom pri Olštýne, Poľsko

Sivá fasáda obložená cemento-kompozitnými panelmi, rozsiahle presklené plochy a zelené strechy, pomáhajú objektu s 580 m2 obytnej plochy splynúť s okolitou krajinou.
Diela
Red 406.05.2020
53000+47
Átriový dom pri Olštýne, Poľsko
Autori: Przemek Olczyk (Mobius Architekci)Podlažná plocha: 580 m²Návrh: 2016 - 2017Realizácia: 2017 - 2019Adresa: Varmsko-mazurské vojvodstvo, PoľskoPublikované: 6. máj 2020

Realizácia ateliéru Mobius Architekci, ktorý vedie oceňovaný architekt Przemek Olczyk. Rovesník Roberta Konieczneho patrí medzi generáciu poľských architektov, ktorí sa pravidelne objavujú na stránkach zahraničných publikácií. Dnes predstavíme jednu z jeho posledných realizácií.

Pozemok na samote je súčasťou rovinatej krajiny Varmsko-mazurského vojvodstva na severe Poľska. Veterné prostredie a prirodzený terénny zlom v severnej časti parcely do značnej miery určili výsledný architektonický koncept. Ústredným prvkom návrhu je obostavané átrium, chránené zo všetkých strán pred nepriazňou počasia. 

Foto: Paweł Ulatowski

Kontext a architektúra

Dom s úžitkovou plochou 580 m2 využíva prevýšenie terénu. Stropná doska prízemnej časti nadväzuje na hornú hranu svahu, zelená strecha je bezprostredným pokračovaním prírodnej krajiny. Svah, spadajúci do átria z východnej strany, je využitý ako amfiteátrové sedenie. Transparentná fasáda dennej časti, ktorá vypĺňa severné krídlo pôdorysu, umožňuje nerušené výhľady smerom na jazero. Pri pohľade z átria sú tak zachované dôležité pohľadové osi. 

Foto: Paweł Ulatowski
Foto: Paweł Ulatowski
Situácia
SituáciaAutor: Mobius Architekci
Schémy
SchémyAutor: Mobius Architekci
Foto: Paweł Ulatowski

Protikladom transparentného ortogonálneho prízemia je nočná časť domu, situovaná pod zatrávnenou sedlovou strechou. Zo západnej strany pôsobí poschodie opäť ako prirodzené pokračovanie krajiny. Spojitá zelená plocha je prerušená líniou schodiska, ktorá zároveň prepája úroveň átria so zvyškom záhrady. Vertikálna komunikácia je presvetlená svetlíkom, ktorý “pretína” hrebeň strechy. Presklené štítové steny s predsadenými lamelami odkazujú podľa slov architekta na štíty varmsko-mazurských ľudových stavieb, ktoré sú často zdobené latovaním usporiadanými do rôznych vzorov. 

Foto: Paweł Ulatowski
Foto: Paweł Ulatowski
Foto: Paweł Ulatowski
Foto: Paweł Ulatowski
Foto: Paweł Ulatowski
Foto: Paweł Ulatowski
Foto: Paweł Ulatowski
Foto: Paweł Ulatowski

Konštrukčné riešenie

Železobetónová stropná doska, prestrešujúca prízemie, je vynesená na oceľových stĺpoch s kruhovým prierezom. Nosnú funkciu preberajú v kontakte s terénom monolitické steny (časť južného krídla). Väčšinu obvodového plášťa na úrovni prízemia tvoria presklené plochy. Hliníkové rámy, vrátane rozmerných posuvných segmentov sú zasklené izolačným trojsklom. Konštrukciu krovu nočnej časti, so sklonom 45 stupňov, pokrýva pôdny substrát extenzívnej zelenej strechy.

Foto: Paweł Ulatowski
Foto: Paweł Ulatowski
Foto: Paweł Ulatowski

Materiálové riešenie

Prevládajúcim materiálom, ktorý definuje stavbu zo strany exteriéru sú cemento-kompozitné fasádne panely Swisspearl Largo Carat Black Opal 7020 R hrúbky 8 mm. Jemná sivá textúra korešponduje s betónovými povrchmi  terás, exteriérového schodiska, alebo žulovou dlažbou. Spomínané fasádne panely dopĺňa na viacerých plochách obklad z hliníkového plechu, upravený práškovou farbou.

Foto: Paweł Ulatowski
Foto: Paweł Ulatowski
Autor: Mobius Architekci
Autor: Mobius Architekci
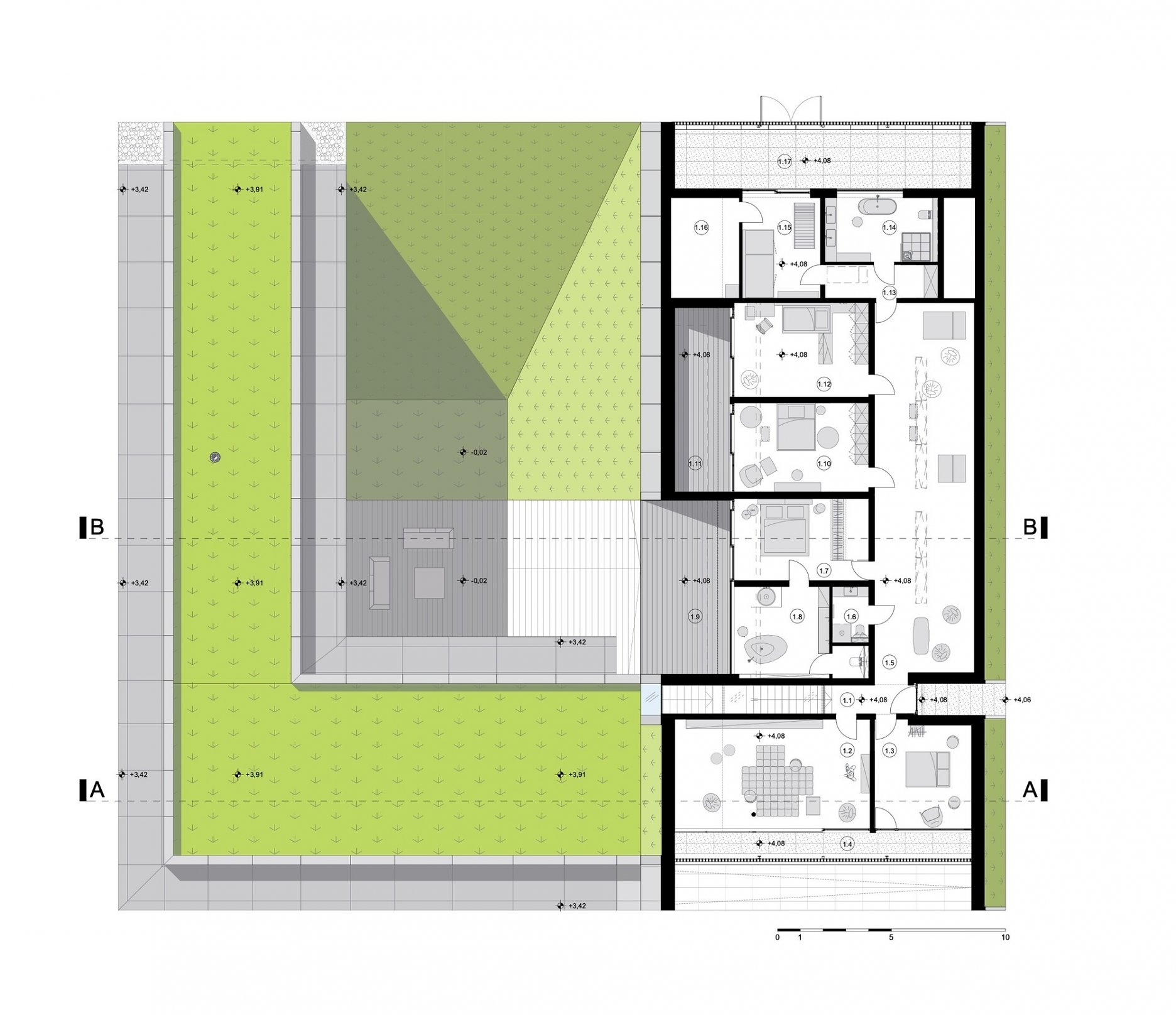
Pôdorys prízemia
Pôdorys prízemiaAutor: Mobius Architekci
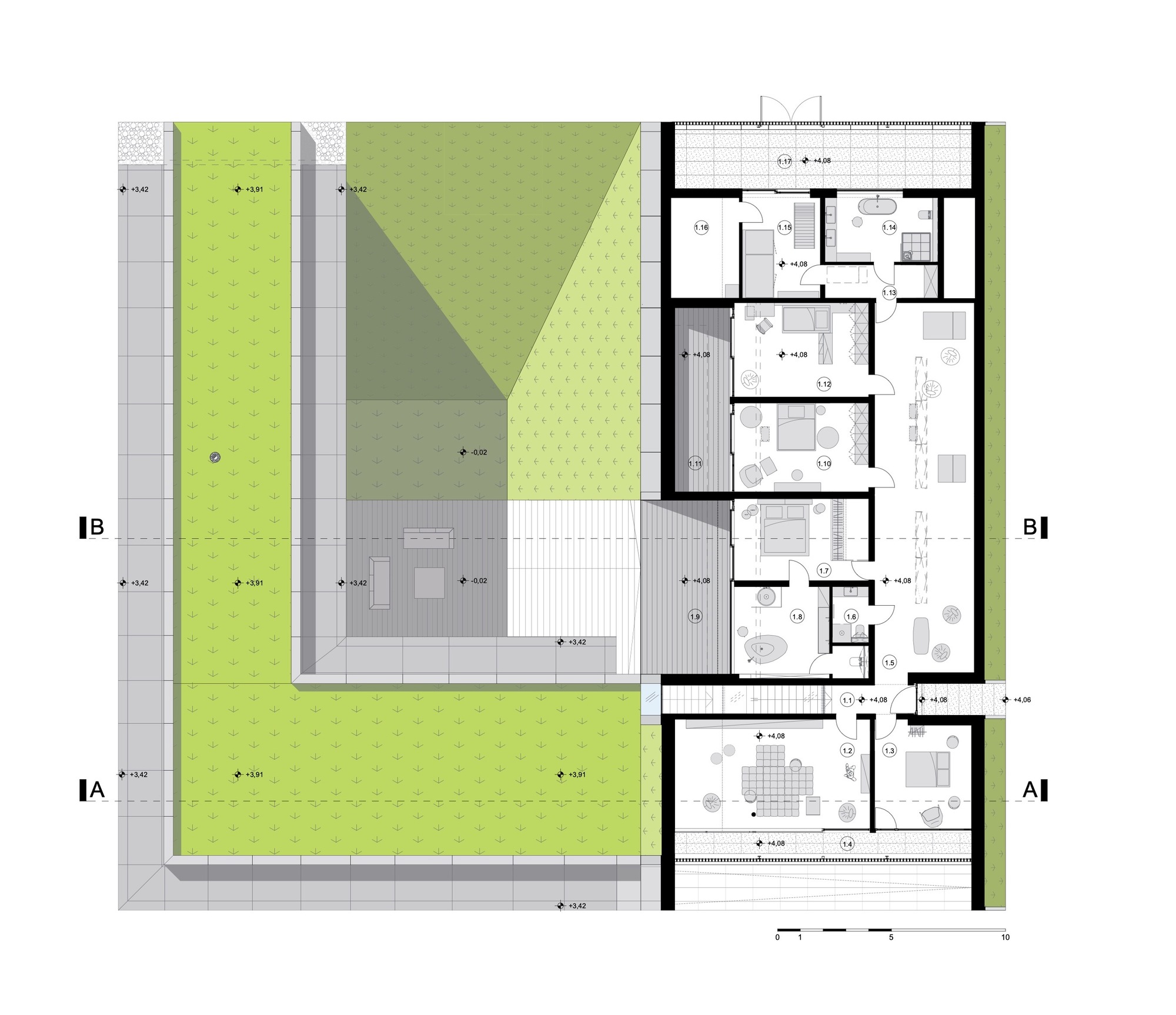
Pôdorys poschodia
Pôdorys poschodiaAutor: Mobius Architekci
Pôdorys strechy
Pôdorys strechyAutor: Mobius Architekci
Rezy
RezyAutor: Mobius Architekci

Podklady: SwisspearlMobius Architekci
Použité materiály: cemento-kompozitné fasádne panely Swisspearl Largo Carat Black Opal 7020 R

Poloha diela

Przemek Olczyk

Súvisiace články

Vložené
5. máj 2020
0
5300
Hlavný obsahHlavný obsah
Čakajte prosím