Novotvar v prostredí alpskej obce.
Hansgrohe - prémiová značka kúpeľňových riešení, ponúka nadčasový dizajn, technickú precíznosť a udržateľné inovácie...
Využite špeciálnu akciu Internorm: okná za minuloročné ceny a hliníkový kryt úplne zadarmo. Ponuka je časovo obmedzená!
Na podujatí sa predstaví až 37 vystavovateľov - popredných dodávateľov stavebných materiálov a inovácií s prezentáciou...
Sumarizácia najdôležitejších inovácií, ktoré redefinujúcich využitie tohto energetického zdroja.
AMPHIBIA 3000 GRIP 1.3 od spoločnosti ATRO predstavuje modernú hydroizolačnú technológiu, ktorá spája vysokú odolnosť,...
Ambiciózne plány EK narazili na ekonomické možnosti domácností v jednotlivých členských štátoch –...
IDEA DOOR od spoločnosti JAP prináša do interiéru čistý minimalistický vzhľad vďaka bezrámovému riešeniu a precíznej...
Kontinuita riešenia od vonkajšieho obkladu až po kovania a kľučky.
Nástenné nadomietkové armatúry Vitus sú mimoriadne vhodné pre rýchlu a efektívnu...
Okenné profily z kompozitného materiálu RAU-FIPRO X od spoločnosti Rehau sú v porovnaní s tradičnými plastovými profilmi mnohonásobne...
Najnovší sortiment stolov pre zariadenie interiérov...
Spojenie moderného dizajnu, funkčnosti a svetla do harmonického architektonického prvku.
Kancelárska budova Baumit v slovinskom Trzine prešla premenou na moderné a udržateľné pracovisko. Architekti kládli dôraz...
Mottom šiesteho ročníku on-line konferencie odborníkov Xella Dialóg je Efektívny návrh budov 2025+: zmeny a riešenia

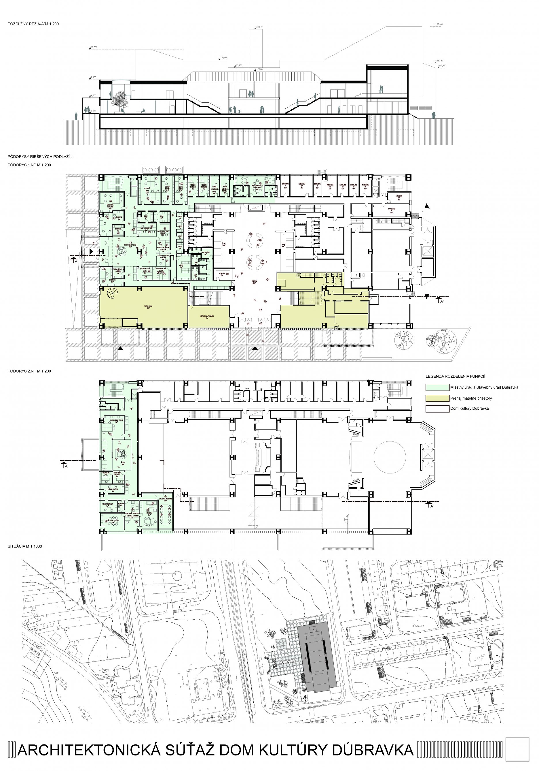
Mestská časť Bratislava - Dúbravka vyhlásila ku dňu 8.3.2017 verejnú anonymnú architektonickú súťaž návrhov “Rekonštrukcia a dostavba objektu Domu kultúry Dúbravka”. Účelom súťaže bolo vyhľadať optimálne riešenie verejných priestorov v kontexte stavby v centrálnom území mestskej časti Bratislava - Dúbravka, vytvorenie plnohodnotného mestského prostredia s námestím a s doplnením jeho funkcií a vznik verejných a poloverejných priestorov a zelených plôch v rozvojovej osi Dúbravky ako podklad pre rokovanie s víťazným uchádzačom o zadaní zákazky.
Z dôvodu technického a funkčného zostarnutia budovy, zámeru premiestnenia sídla Miestneho úradu mestská časť Bratislava – Dúbravka do objektu domu kultúry a architektonickej rekultivácie a aktivizácie potenciálu verejných mestských priestorov v bezprostrednom okolí domu kultúry a integrácie s cyklodopravou, bolo predmetom súťaže architektonický návrh rekonštrukcie a dostavby objektu Domu kultúry Dúbravka.
O výsledkoch rozhodovala porota v zložení:
Ing. arch. Pavel Gašparovič – predseda poroty
Ing. arch. Martin Stohl
Ing. arch. Milan Beláček
Nezávislí na vyhlasovateľovi:
Ing. arch. Jela Plencnerová
Ing. arch. Pavol Zibrin
Ing. arch. Andrej Drgoňa
Ing. arch. Vladimír Torda
Náhradník: Ing. Peter Cibulka
Expert poroty: Ing. arch. Imrich Ehrenberger
O súťaži sa s expertom poroty a autorom pôvodnej budovy Ing. arch. Imrichom Ehrenbergerom rozprával Štefan Moravčík:
Š.M.: Nestáva sa tak často, aby autor diela bol prizvaný ako expert do poroty súťaže na rekonštrukciu a dostavbu vlastného objektu (objektu, ktorý navrhol).
I.E.: Keď som roku 2014 svoj príspevok do publikácie "Dúbravka moja, Tvoja, naša, Vaša" zakončil želaním, že..."Domu kultúry treba priať, aby do potrebnej, či už záchrannej, alebo funkčnej inovácie, jeho osvietený správca raz zapojil renomovaného, ohľaduplného mladšieho kolegu, architekta, ktorý popri tom, že porozumie novým potrebám a požiadavkám, porozumie i kultúre kontinuity a v princípe mu ponechá jeho pôvodnú architektonickú tvár - veď ona k Dúbravke hádam už i patrí."..., netušil som, že po 25-ročnom chátraní a architektonickom živorení začne azda Domu kultúry v dohľadnej dobe svitať na lepšie časy. (Ten príspevok bol pripojený k súťažným podmienkam ako "Životopis DK")
Š.M.: Mohli Ste ovplyvniť aj zadanie súťaže a súťažné podmienky?
I.E.: To, že som sa po po rokoch "nezvestnosti" vynoril ako "žijúci autor" a vďaka náhode som sa dostal do pozornosti pána PhDr. Michala Krišku, zostavovateľa a editora vyššie uvedenej publikácie, bol dôvod aj príležitosť k tomu, že ma starosta Dúbravky, pán RnDr. Martin Zaťovič, prizval na konzultácie o "budúcom osude" Domu kultúry. Tým som dostal príležitosť, do určitej miery prispieť i k formulovaniu zadania. S potešením som privítal rozhodnutie dúbravskej samosprávy Dom kultúry rekonštruovať a presídliť doňho aj Miestny úrad Bratislava-Dúbravka. To mu prinesie celodenný život a dúfam, že i starostlivejšiu, "lokálpatriotickú" hospodársku správu. Ocenil som, že riešenie sa rozhodli vyhľadať prostredníctvom architektonickej súťaže.
Š.M.: Aký Ste mali dojem z predložených návrhov? Čo sa vám páčilo a čo sa Vám páčilo menej?
I.E.: Pre súťaž bola, žiaľ, vymedzená mimoriadne krátka lehota, v čom je treba hľadať i jednu z príčin skromnej účasti súťažiacich. Aj napriek tomu však 5 návrhov prinieslo alternatívne pohľady na možnosti riešenia a poskytlo vyhlasovateľovi súťaže príležitosť, vybrať si prostredníctvom poroty to, čo je najbližšie jeho predstave i budúcim potrebám.
Š.M.: Ako Ste spokojný s verdiktom poroty? Zhodoval sa s vašim osobným názorom, alebo sa Vaše názory rozchádzali?
I.E.: K hodnoteniu návrhov som bol pozvaný ako expert, nebol som členom poroty. S názorom poroty sa plne zhodujem vo výbere dvoch najlepších návrhov. Pri ich vzájomnom porovnaní však nie som celkom presvedčený o reálnosti (a možno i potrebe ) tzv. 2. fázy pri víťaznom návrhu i napriek tomu, že z môjho autorského hľadiska nemám nič proti pokusu o "futuristický" posun architektonického výrazu "hlbšie" do 21: storočia. Pragmatické hľadisko ma v momentálnej situácii nabáda k opatrnosti.Ten dom potrebuje toho k modernizácii veľa reálneho.! Zatiaľ budú vraj k dispozícii 2 milióny... A okrem toho, o tzv. druhých etapách viem svoje. Málokedy na ne príde a zostávajú torzá. Pre príklad nemusíme ísť ďaleko - aj tento DK je 1. etapou . Z tej druhej mu zostala len slepá dilatačná stena ako severozápadná fasáda!
Š.M.: Budete sa zúčastňovať aj ďalšieho procesu prípravy rekonštrukcie a dostavby?
I.E.: Takou formou ako doteraz, vraj pravdepodobne áno.
Š.M.: Aký máte názor na architektonické súťaže. Sledujete proces súťaženia dnes? Čo sa Vám páči a čo nie. Aké rozdiely vidíte pri architektonických súťažiach dnes a za Vašich mladých čias?
I.E.: Architektonické súťaže sú, zdá sa mi, že hlavne u nás téma večná, stále otvorená, deformovaná stavom spoločnosti. Mohli by prinášať oveľa viac osohu investorom i úrovni našej architektúry. Mám dojem, že všelikde okolo nás to tak je. "My" to akosi nechceme. Roky sa s tým nedá pohnúť. Sem-tam sa niečo podarí, ale to je ako tá výnimka, čo potvrdzuje pravidlo. A tie nezmysly s "obchodnými" súťažami! A "verejné obstarávania"! Keď sa to zákonne nevyčistí, asi sa nepohneme. A do vlastných radov: ako je to s objektivitou? a korupčným správaním? a, a, a...?
Pravdou je, že so súťažami to u nás nikdy nebolo až také "ružové" (dlhé roky som bol člen komisie bývalého ZSA pre súťaže, i člen viacerých porôt a súťaže na novostavbu SND som sa napríklad zúčastnil ako jeden z päťdesiatichšiestich... ). Súťaže v tamtom systéme mali celkom iné hospodárske súvislosti a - zdá sa mi - boli ako keby architektonicky čistejšie, odbremenené od terajšej "existenčnej záťaže". Keď už boli, súťažilo sa s elánom, možno i viac z prestížnych dôvodov ( ?? )
Š.M.: Čo by Ste chceli odkázať dnešným mladým architektom?
I.E.: Že im fandím a nech sa im darí! Je to dnes tvrdá rehola. Nech si nedajú svoju invenciu deformovať drzými amatérskymi zásahmi chamtivých okolostojacich, či "okololoviacich" a sebavedome, ale i sebakriticky, bojujú o svoju pravdu! I v záujme klienta. V tej pestrej spoločnosti (ne)zúčastnených majú na to plné právo!
Výsledky súťaže návrhov sú nasledujúce:
1. cena vo výške 5 000,- € a odmena 400,- € návrh „4“
autor: Mgr. Arch. Miroslav Vrábel
Hodnotenie poroty:
Pozitívne je prepojenie komerčných priestorov s námestím. Vybudovanie – usporiadanie námestia pre účely konania trhov. Urbanistické riešenie stavby zohľadňuje okolitú zástavbu. Ako jediný invenčne rieši perspektívne využitie plochy strechy. Pozitívom je využitie spoločného priestoru s presvetlením a umiestnením výťahu, jednoduchá prevádzková štruktúra objektu. Komplexný prístup a prezentácia projektu je kultivovaná.
2. cena vo výške 3 000,- € a odmena 400,- € návrh „3“
autori: Ing. arch Marián ŠULÍK, Ing. arch. Barbora Svatíková
Hodnotenie poroty:
Pozitívom je kreatívne riešený vstupný priestor. Prepojenie exteriéru s interiérom. Návrh je preexponovaný, nevhodne umiestnené detské ihrisko pri hlavnej ceste.
Odmena 400,- € návrh „1“
Eckhardt s.r.o.
autori: Ing. arch. Martin Eckhardt, March. Marek Lüley, Ing. arch. Katarína Hrvolová
Hodnotenie poroty:
Návrh nesplnil všetky požiadavky zadávateľa, dispozičné riešenie je jednoduché a prehľadné. Časť miestneho úradu – priorita je potlačená. Dispozične vstupný priestor nie je riešený. Prezentácia a vonkajší výraz budovy sú kultivované. Návrh kladie menší dôraz na riešenie vonkajšieho priestoru. V návrhu je zrušená oranžová zasadačka na úkor vybudovania nového samostatného vstupu miestneho úradu. Nie je zabezpečená bezbariérovosť. Absencia riešenia suterénu.
Odmena 400,- € návrh „2“
autori: Ing. arch. Pavol Hanzalík, Ing. arch. Marko Valach, Ing. arch. Milan Zelina
Hodnotenie poroty:
Návrh nevyužíva centrálny - pôvodný vstup ako vstup do miestneho úradu. Duplicitne umiestnený ďalší vstupný priestor. Amfiteáter s obchodným priestorom nie je vhodne umiestnený na verejnom priestranstve. Absentuje vonkajší priestor pre potreby konania výročných trhov a podujatí.
Odmena 400,- € návrh „5“
PM Group Slovakia, s.r.o.
autori: Mgr. Arch. Michal Mikuš, Ing. Ľubomír Sádecký, Ing. arch. Paulína Brichtová
Hodnotenie poroty:
Chaotické dispozičné riešenie s nejasnou prevádzkovou štruktúrou. Funkcia miestneho úradu nie je kompaktná a kancelárie úradu nie sú logicky usporiadané. Pozitívne vnímané riešenie presvetlenia vstupnej haly.
Za podklady ďakujeme vypisovateľovi súťaže.