Advertorial

Moderné plynové technológie: Efektivita a inovácie pre 21. storočie

Sumarizácia najdôležitejších inovácií, ktoré redefinujúcich využitie tohto energetického zdroja.

Utesňovanie spodných stavieb pomocou hydro-aktívnej fólie AMPHIBIA.

AMPHIBIA 3000 GRIP 1.3 od spoločnosti ATRO predstavuje modernú hydroizolačnú technológiu, ktorá spája vysokú odolnosť,...

Dekarbonizácia individuálneho vykurovania domácností – Green Deal evolučne a nie revolučne

Ambiciózne plány EK narazili na ekonomické možnosti domácností v jednotlivých členských štátoch –...

Minimalistické dvere IDEA – technická precíznosť a čistota prevedenia

IDEA DOOR od spoločnosti JAP prináša do interiéru čistý minimalistický vzhľad vďaka bezrámovému riešeniu a precíznej...

Schell Vitus – osvedčené riešenie pre sprchy a umývadlá vo verejnom sektore s viac ako desaťročnou tradíciou

Nástenné nadomietkové armatúry Vitus sú mimoriadne vhodné pre rýchlu a efektívnu...

Kompozitné okná predstavujú súčasnosť a budúcnosť

Okenné profily z kompozitného materiálu RAU-FIPRO X od spoločnosti Rehau sú v porovnaní s tradičnými plastovými profilmi mnohonásobne...

Myotis - stoly 2025

Najnovší sortiment stolov pre zariadenie interiérov...

Priemyselné sklenené priečky Dorsis Digero: svetelné rozhranie pre moderné interiéry

Spojenie moderného dizajnu, funkčnosti a svetla do harmonického architektonického prvku.

Význam prirodzeného svetla pre moderné a flexibilné pracovné prostredie

Kancelárska budova Baumit v slovinskom Trzine prešla premenou na moderné a udržateľné pracovisko. Architekti kládli dôraz...

Konferencia Xella Dialóg predstaví novinky a trendy v stavebníctve

Mottom šiesteho ročníku on-line konferencie odborníkov Xella Dialóg je Efektívny návrh budov 2025+: zmeny a riešenia

Murovací robot WLTR stavia svoj prvý dom na Slovensku

Robot WLTR predstavuje moderný prístup k murovaným konštrukciám. Vďaka automatizácii dokáže rýchlo, presne a bezpečne realizovať...

Nová éra bezpečnosti s I-tec Secure od Internorm

Okrem bezpečnosti majú okná aj elegantný vzhľad, pretože nie sú viditeľné žiadne uzamykacie časti kovania.

Skryté zárubne JAP – intenzívny zážitok z bývania

Dvere MASTER v skrytej zárubni AKTIVE je možné vyrobiť až do výšky 3 700 mm

Tienenie namiesto klimatizácie

Internorm stavia na energetickú efektívnosť a inteligentné tieniace riešenia.

BigMat International Architecture Award 2025 - vybrané diela

Slovensko vo výbere zastupuje šesť realizácií.

Revitalizácia objektu Merkuria, Praha - Holešovice: diplomová práca nominovaná na Cenu profesora Jozefa Lacka

Ako prispôsobiť dielo z druhej polovice 20. storočia aktuálnym požiadavkám a nevyhnutnej zmene funkcie?
Diela
Red 311.09.2023
12590+17
Revitalizácia objektu Merkuria, Praha - Holešovice: diplomová práca nominovaná na Cenu profesora Jozefa Lacka
Autori: Ing. arch. Zora PolákováSpolupráca: Ing. arch. Pavol PaňákNávrh: 2023 - 2023Adresa: SlovenskoPublikované: 11. september 2023

Tak ako každý rok, aj tentokrát  počas septembra a októbra predstavíme najlepšie projekty, nominované v rámci celoštátnej súťaže o najlepšiu diplomovú prácu absolventov architektonických škôl na Slovensku - Ceny profesora Jozefa Lacka.

Jednotlivé školy (Katedry architektúry) nominovali tohto roku do súťaže spolu 14 absolventských projektov:

Fakulta architektúry a dizajnu STU v Bratislave - 6
Katedra architektúry SvF STU v Bratislave - 1
Fakulta záhradníctva a krajinného inžinierstva v Nitre - 2
Fakulta umení TU v Košiciach - 3
Katedra architektúry VŠVU v Bratislave - 2

Dnes predstavíme prácu, ktorá vznikla na pôde Fakulty architektúry a dizajnu STU v Bratislave. Diplomová práca Zory Polákovej, sa zaoberá v našom kontexte mimoriadne aktuálnou témou "recyklácie brutalizmu" (viď súvisiace články v závere textu).

"Diplomantka sa rozhodla pre zdanlivo akademickú tému - pokúsiť sa zachrániť neomodernistický objekt Merkuria zo 70. rokov v Prahe. V kontexte súčasnosti rieši pálčivý problém miznúcich pamiatok socialistickej éry. Aj budova Merkuria sa aktuálne demoluje a objekt nahradí nový. 

V úvode riešenia diplomantka správne vyhodnotila, že dominantnou kvalitou objektu je jeho veľmi zaujímavá hmatová skladba a výrazne vertikálne členená fasáda, ostatne tá bola v čase vzniku budovy veľmi obľúbená, a preto aj široko v našom priestore rozšírená. 

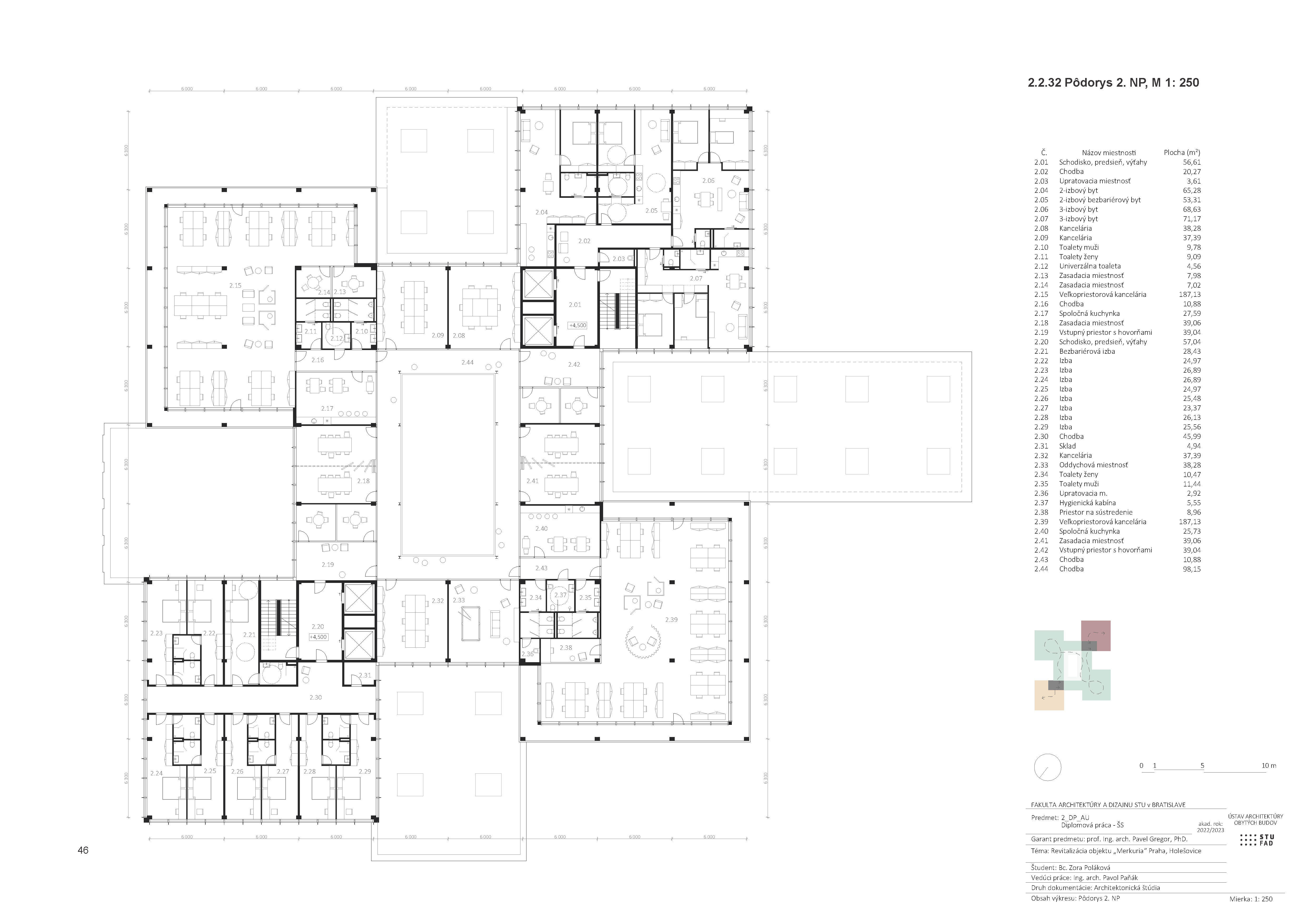
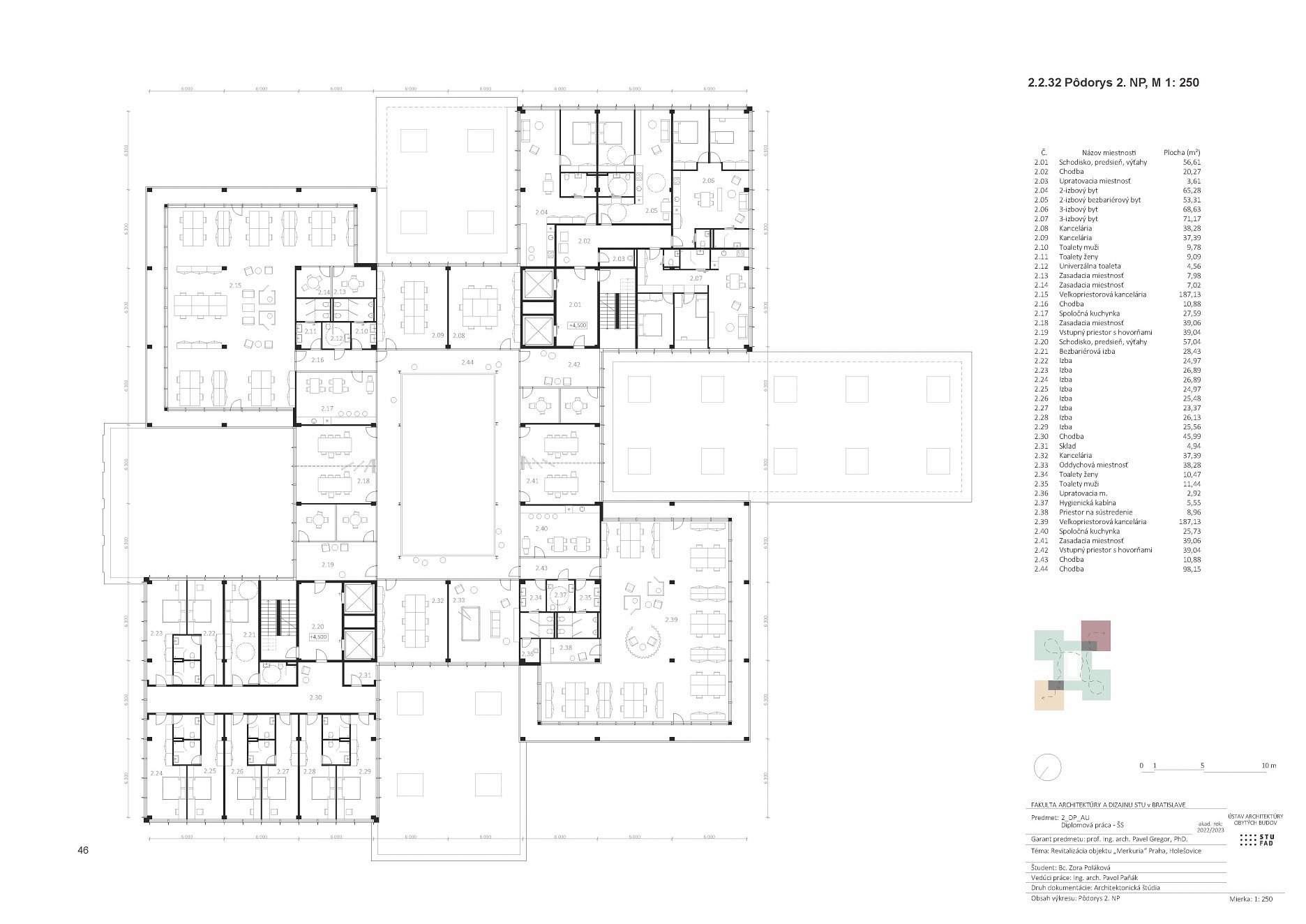
Chcela by som vyzdvihnúť ako sa jej podarilo jemnými (až akupunktúrnymi) zásahmi výrazne zvýšiť kvalitu fungovania objektu a adaptovať ho na súčasné nároky - po stránke funkčnej, priestorovej a energetickej. To docielila predovšetkým nenápadným pridaním dvoch potrebných vertikálnych komunikačných jadier a átriom, čo umožnilo komplex funkčne preriešiť a navrhnúť nové funkcie - stáleho a prechodného ubytovania, čo je dnes v Prahe vyhľadávané a žiadané. 

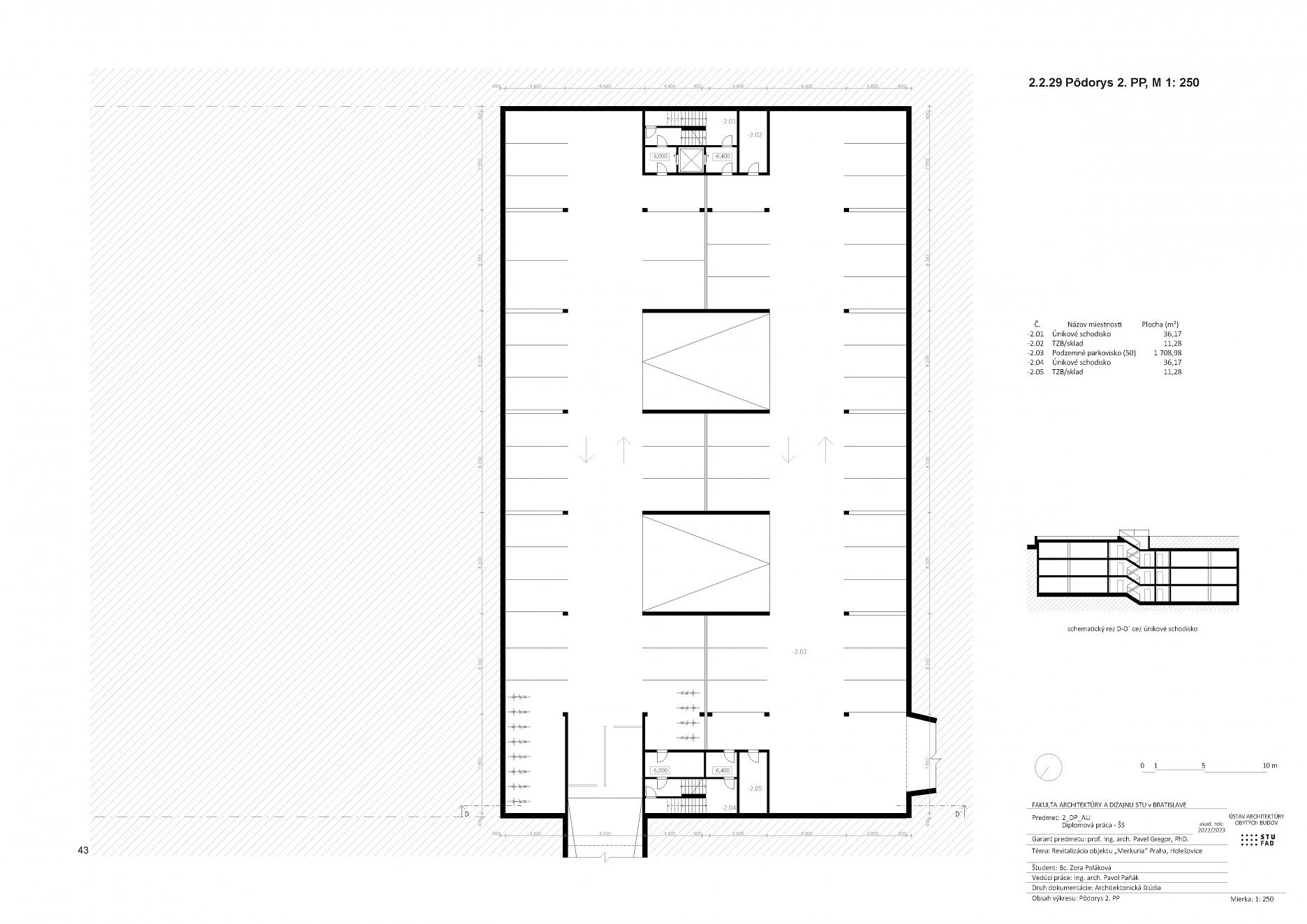
Takáto funkcia si dnes vyžaduje aj istý komunitný rozmer, čo bolo v komplikovanej mestskej situácii, medzi dvoma frekventovanými cestami bez okolitého voľného pozemku ťažko docieliť, preto navrhla odobrať jednopodlažnú hmotu, a tak sa jej podarilo získať v súčasnosti tak oceňovaný voľný priestor v partri na rôzne exteriérové akcie/atrakcie a interakcie. 

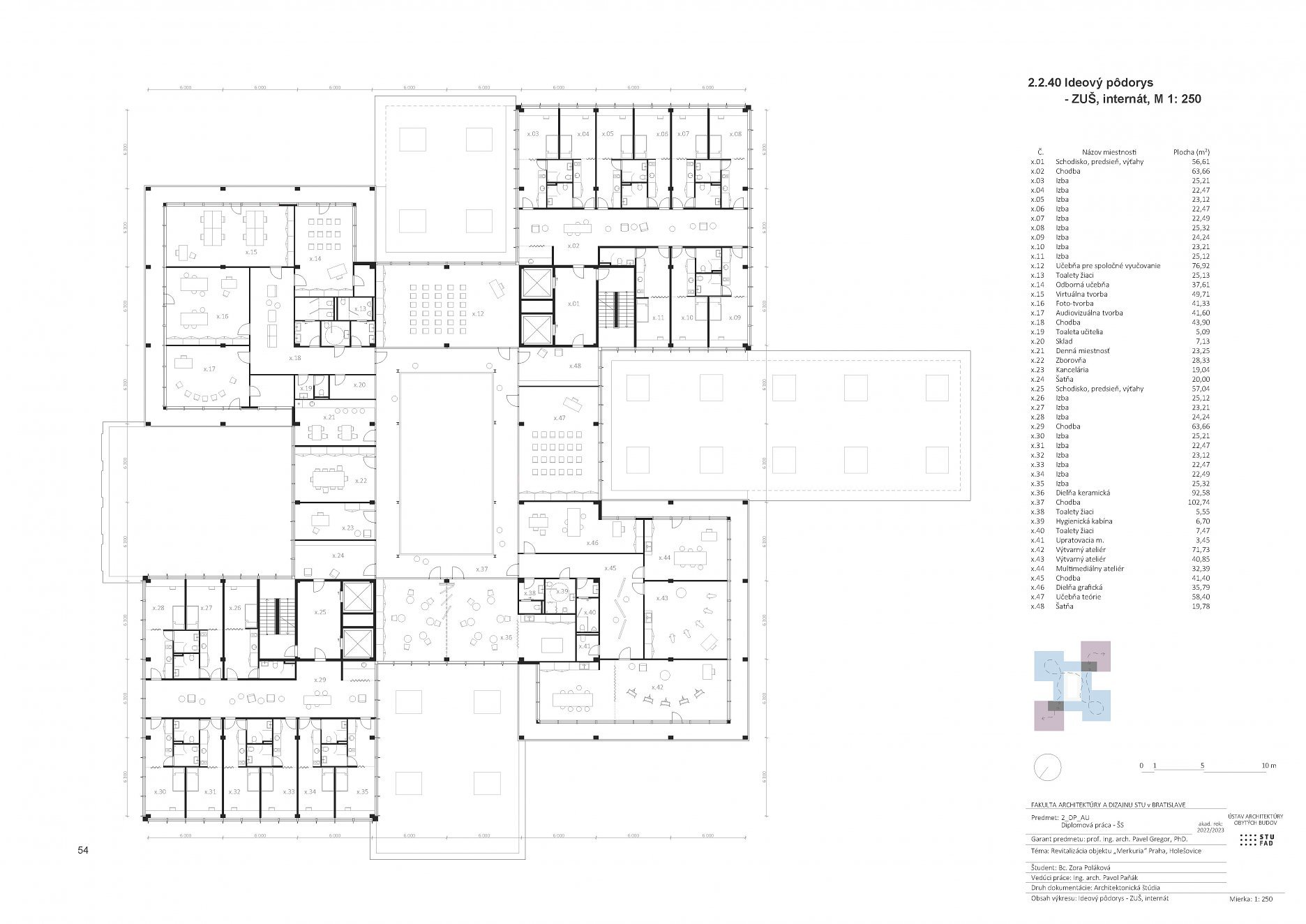
Navrhnuté dispozičné riešenie potom prispôsobila novým komunikačným jadrám a zelenému átriu. Nové funkcie sú vhodne rozmiestnené do jednotlivých blokov a podlaží tak, aby každá funkcia vyťažila z daného miesta to najlepšie. 

Diplomantka sa nebála okrem z energeticky vhodnejšieho riešenia fasády aj ukázať aká funkcia sa za otvorom nachádza, čo budovu voči okoliu oživuje a zbavuje fádnosti spájanej s dobou jej vzniku. 

Výsledné riešenie je navrhnuté s citom tak, že oživuje veľký komplex, priznáva dobu vzniku budovy, ukazuje súčasnú vrstvu a zachováva základ pôvodného, čo referuje aj k stále viac vyzývanej udržateľnosti stavebníctva. Vzhľadom na miesto - teda zväčšujúcu sa metropolu by som sa na mieste diplomantky nebála zväčšeniu objektu/komplexu o navrhované 3 podlažia s priznanou cezúrou," píše v posudku oponentka práce Mária Michalič Kusá.

 

Anotácia:

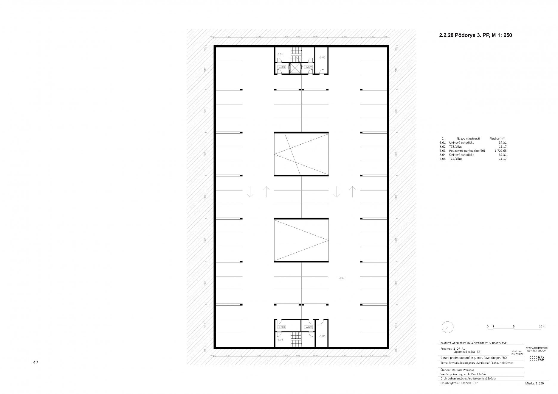
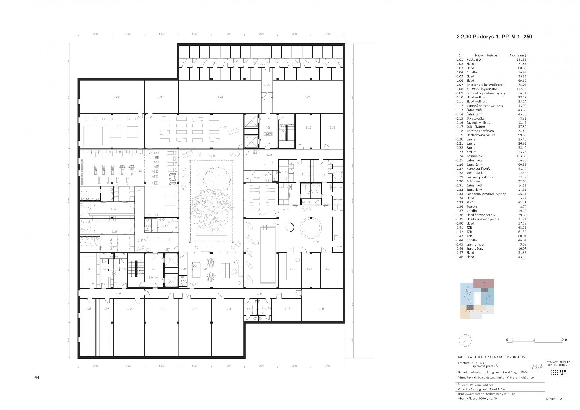
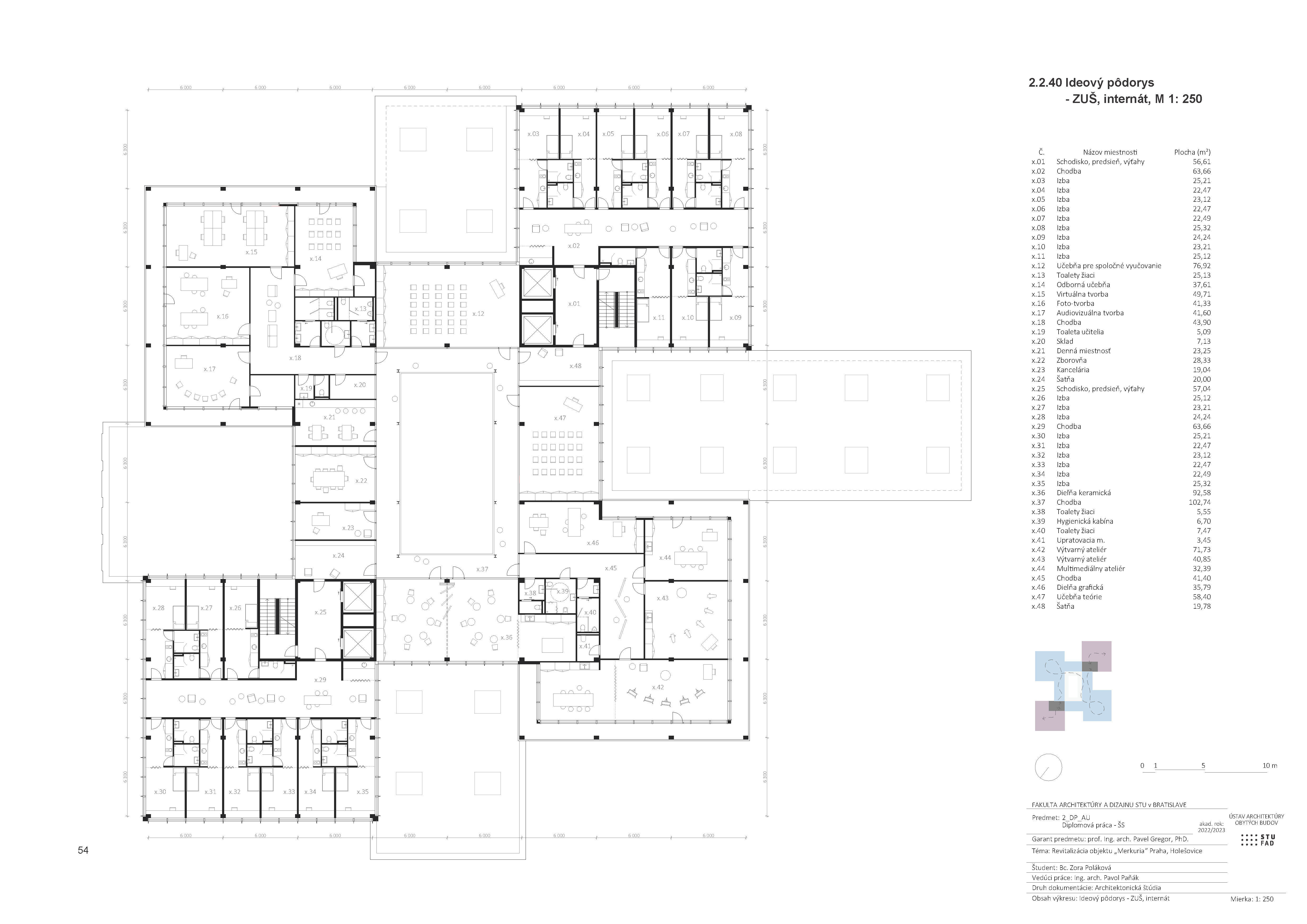
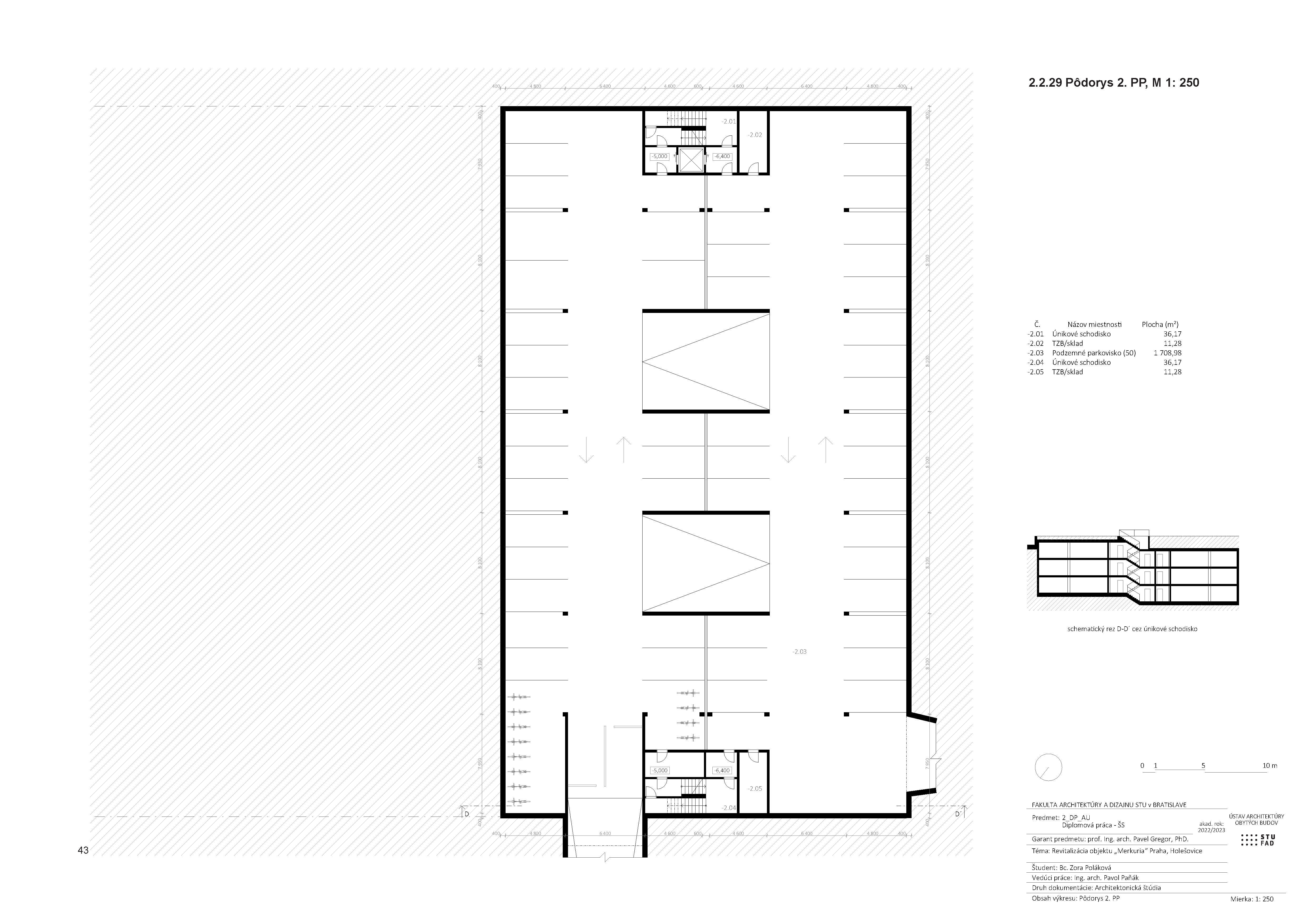
Cieľom práce je preukázať potenciál významnej neskoromodernej československej architektúry, objektu Merkuria. Koncept revitalizácie je určený pomenovanými architektonickými hodnotami. Primárnou architektonickou hodnotou, a teda predmetom zachovania, je jedinečná plastická figúra pozostávajúca zo zhluku piatich hmôt. Nevyhnutnou súčasťou bolo pridanie nových komunikačných jadier, pretože existujúce centrálne umiestnené nevyhovovalo súčasným požiadavkám požiarnej bezpečnosti. Pridané objemy sa nesnažia upútať pozornosť, avšak má byť čitateľné, čo je pôvodné a čo nové. Architektonické riešenie vychádza z princípov pôvodnej významnej architektúry. Cieľom bolo tiež vytvoriť kvalitnejší priestor pre obyvateľov, preto návrh pracuje s vytvorením nových verejných a poloverejných priestorov. Poloverejný priestor je vytvorený formou nového átria a verejný priestor asanáciou jednopodlažnej hmoty. Funkčnú náplň a samotné dispozičné riešenie predurčili nové diagonálne umiestnené komunikačné jadrá. Práca sa zaoberá testovaním krátkodobého a dlhodobého bývania, administratívy a vybavenosti, čím sa snaží preukázať vnútorný potenciál objektu. Základnými materiálmi pridávaných hmôt sú oceľ, hliník, transparentné a matné sklo, pretože svojimi vlastnosťami umožňujú vytvárať čo najsubtílnejšie konštrukcie, zároveň nie sú cudzie pôvodnému jazyku architektúry.

 

Portfólio:

 

Výkresová časť práce:

Plagát

Ing. arch. Zora Poláková

Súvisiace články

Vložené
5. september 2023
0
1259
Hlavný obsahHlavný obsah
Čakajte prosím