Novotvar v prostredí alpskej obce.
Hansgrohe - prémiová značka kúpeľňových riešení, ponúka nadčasový dizajn, technickú precíznosť a udržateľné inovácie...
Využite špeciálnu akciu Internorm: okná za minuloročné ceny a hliníkový kryt úplne zadarmo. Ponuka je časovo obmedzená!
Na podujatí sa predstaví až 37 vystavovateľov - popredných dodávateľov stavebných materiálov a inovácií s prezentáciou...
Sumarizácia najdôležitejších inovácií, ktoré redefinujúcich využitie tohto energetického zdroja.
AMPHIBIA 3000 GRIP 1.3 od spoločnosti ATRO predstavuje modernú hydroizolačnú technológiu, ktorá spája vysokú odolnosť,...
Ambiciózne plány EK narazili na ekonomické možnosti domácností v jednotlivých členských štátoch –...
IDEA DOOR od spoločnosti JAP prináša do interiéru čistý minimalistický vzhľad vďaka bezrámovému riešeniu a precíznej...
Kontinuita riešenia od vonkajšieho obkladu až po kovania a kľučky.
Nástenné nadomietkové armatúry Vitus sú mimoriadne vhodné pre rýchlu a efektívnu...
Okenné profily z kompozitného materiálu RAU-FIPRO X od spoločnosti Rehau sú v porovnaní s tradičnými plastovými profilmi mnohonásobne...
Najnovší sortiment stolov pre zariadenie interiérov...
Spojenie moderného dizajnu, funkčnosti a svetla do harmonického architektonického prvku.
Kancelárska budova Baumit v slovinskom Trzine prešla premenou na moderné a udržateľné pracovisko. Architekti kládli dôraz...
Mottom šiesteho ročníku on-line konferencie odborníkov Xella Dialóg je Efektívny návrh budov 2025+: zmeny a riešenia

Oceľová lávka s typickými „véčkovými“ stĺpmi z dielne ateliéru Suchánek Architektonická Kancelária bezpečne premosťuje Galvaniho ulicu a bezbariérovo spája GBC Campus s Avion Shopping Parkom. Elegantný štvorpoľový nosník, vedený nad spleťou inžinierskych sietí, vytvára pohodlný prechod, integruje LED osvetlenie aj informačné prvky, a to pri minimálnych nárokoch na údržbu.
Pešie premostenie môže pôsobiť ako zreteľný znak či signál, že sa prostredie zlepšuje a prekážky sa prekonávajú.
Lávky sú svojím spôsobom jedinečnou inžinierskou stavbou – konštrukciou, ktorú človek využíva výlučne a ktorá mu umožňuje pohyb v nezvyčajnom prostredí: nad terénom, mimo premávky, o čosi bližšie k oblohe, v priamom kontakte so vzduchom i samotnou konštrukciou. Len zriedka sa človek dostane do tak tesného kontaktu s inžinierskou stavbou ako práve na lávke pre peších.
Základnú geometriu mostovky tvorí lichobežníkový prierez, na ktorý nadväzuje zábradlie – mierne odklonené od kolmice. Tento detail zosilňuje dojem otvorenosti.
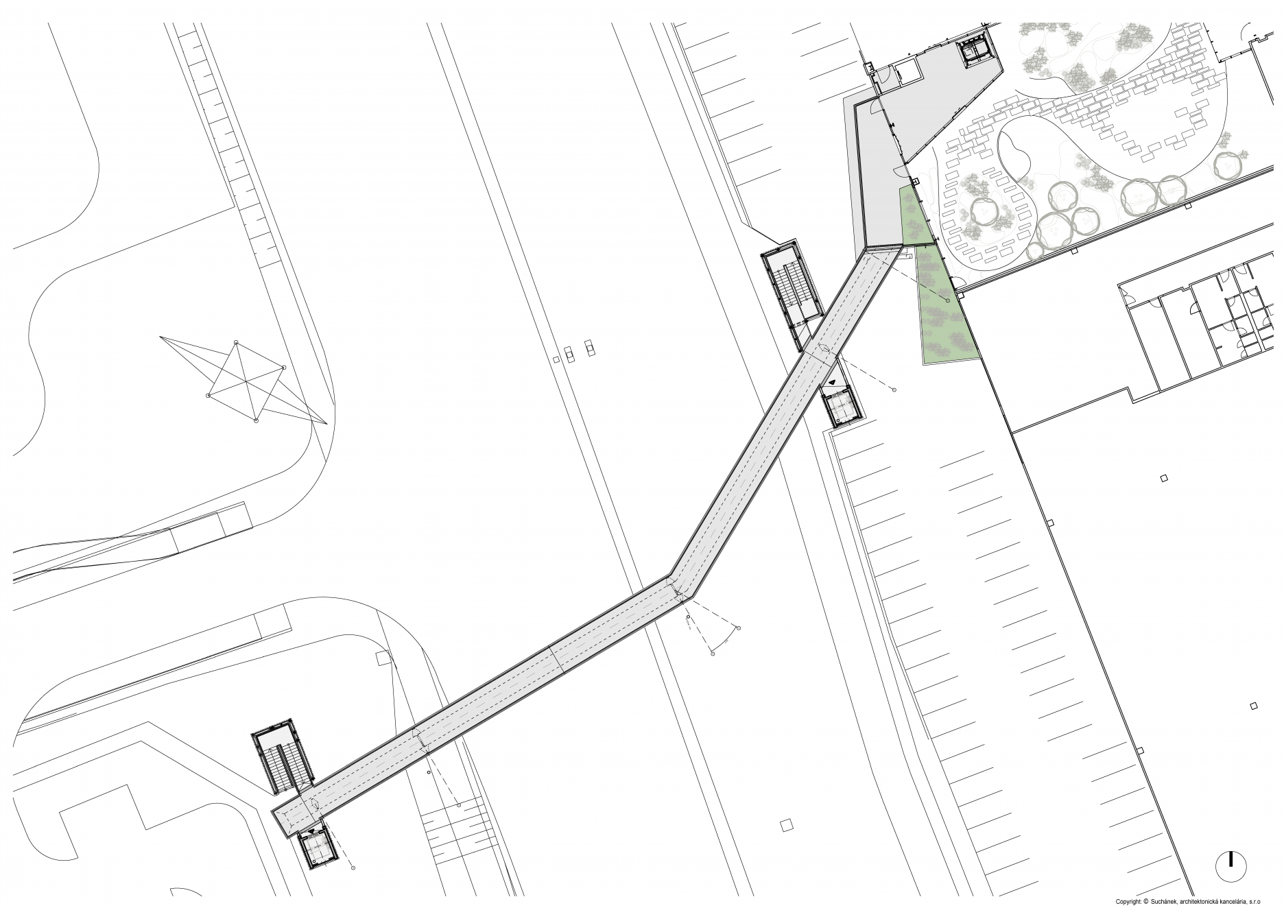
Pôdorys mostovky je zalomený: reaguje na ochranné pásmo vysokého napätia a zmenou smeru vytvára moment prekvapenia, či až objavovania.
Nákupné centrá IKEA a Avion uvažovali o preklenutí Galvaniho ulice dlhodobo a strategicky – v podstate už od svojho vzniku na začiatku milénia. Otvorenie gastropasáže, dokončenie viacerých administratívnych objektov na juhozápadnej strane ulice, plánovaná bytová výstavba a nový dopravný uzol TIOP dodali týmto úvahám reálny praktický rozmer.
Vzhľadom na súčasnú frekvenciu pešej dopravy medzi oboma stranami Galvaniho ulice je premostenie lávkou pre peších vhodné a žiaduce. Výrazne sa tak zníži počet návštevníkov, ktorí by inak použili individuálnu automobilovú dopravu len na veľmi krátku vzdialenosť, najmä z komplexu GBC 1 – 5 (dĺžka automobilového spojenia > 1 km; dĺžka premostenia < 100 m) počas obeda.
Riešenie pešej lávky významne obmedzujú existujúce pomery – Galvaniho ulica, ktorá slúži ako privádzač diaľnice D1, vykazuje mimoriadnu intenzitu nákladnej aj osobnej dopravy, takže je prakticky nemožné ju odstaviť alebo dlhodobo obmedziť. V území sa navyše nachádzajú inžinierske siete regionálneho významu so širokými ochrannými pásmami: vysokotlakový plynovod, vodovody Ø 1200 mm a Ø 800 mm, vzdušné vedenie VN 110 kV, podzemné káble VN 220 kV a pod. Tieto skutočnosti zásadne determinujú výsledný návrh.
Osobitnou úlohou projektu bolo napojenie lávky na existujúcu budovu nákupného centra. Optimalizácia vstupnej sekvencie si vyžiadala značné stavebné úpravy.
Dispozičné riešenie
Pešia lávka prepája priestranstvo pred administratívnou budovou GBC 5 na západnej strane Galvaniho ulice s parkom pred zásobovacím dvorom Avionu a zároveň priamo ústi do vstupného zádveria pred Gastropasážou na druhom nadzemnom podlaží Avion Shopping Parku. V rámci projektu sa pôvodné zádverie rozšírilo.
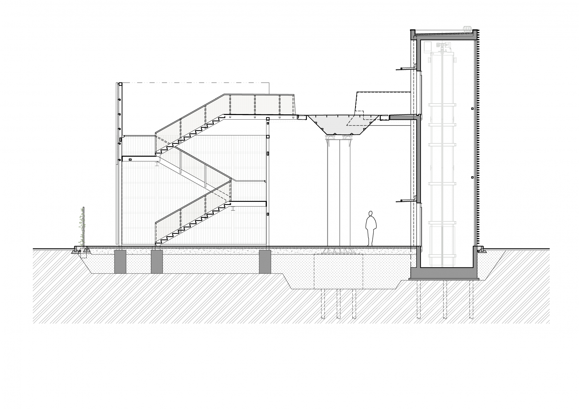
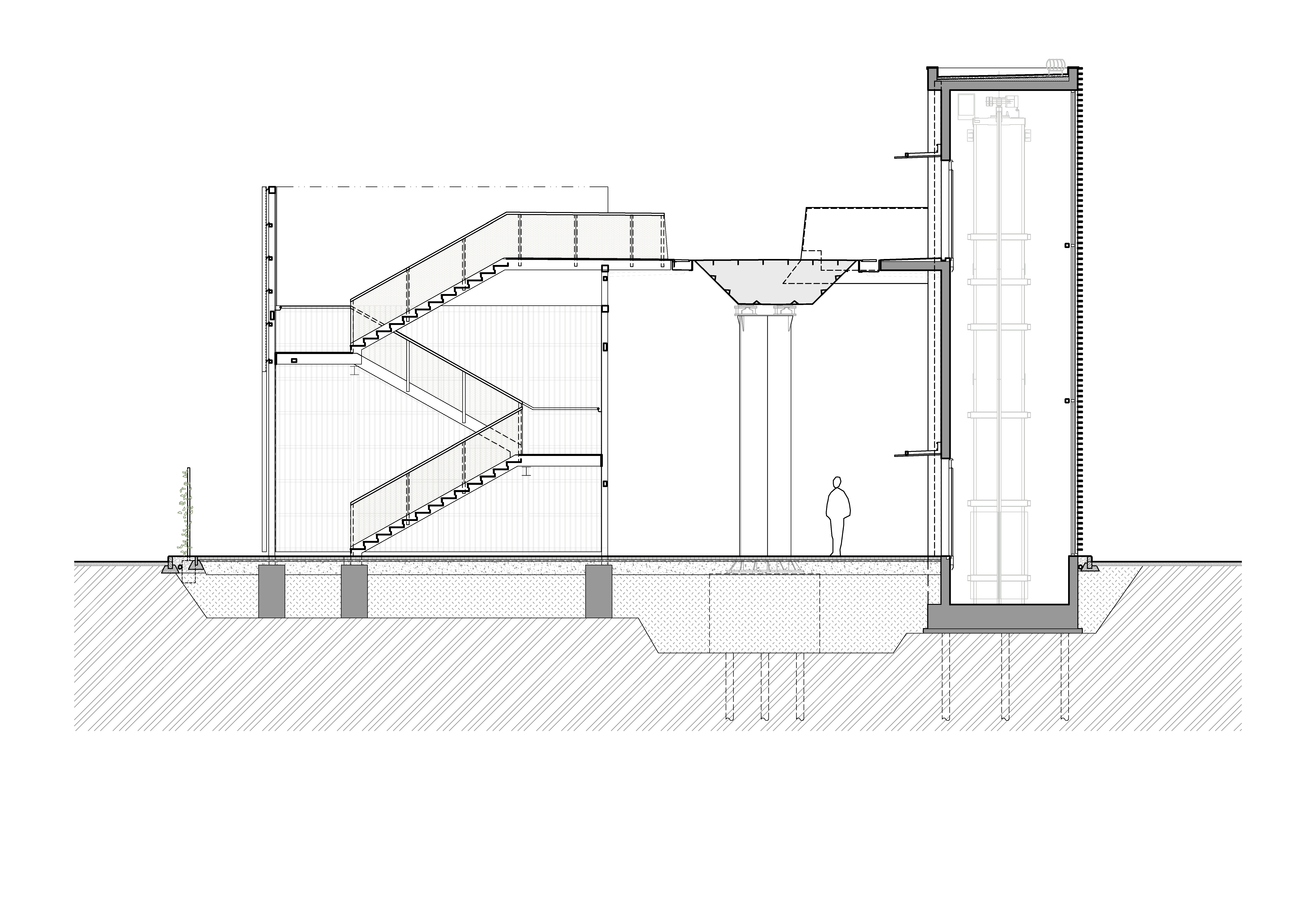
Na oboch stranách Galvaniho ulice vznikli schodiská a veľkokapacitné výťahy vhodné na prepravu imobilných návštevníkov, bicyklov i malých strojov (čistiace mechanizmy, malé snežné frézy a pod.). Pešia lávka je vedená v úrovni prvého poschodia Avionu, takže vstup do Gastropasáže je bezbariérový.
Lávka prekračuje Galvaniho ulicu šikmo (v uhle 81° k jej osi) a smeruje do atraktívnej časti Avionu – na existujúcu terasu a do Gastropasáže; zároveň vedie návštevníkov k zastávke MHD pri McDonald’s. Konštrukcia je vedená rovnobežne so vzdušným vedením VN 110 kV, ktoré je významným technickým a vizuálnym prvkom územia. Ak by most viedol kolmo na Galvaniho ulicu, jeho celková dĺžka by sa predĺžila približne o 5 m a smeroval by na menej atraktívnu fasádu skladov Avionu.
Konštrukčné riešenie
Lávka je navrhnutá ako oceľový, uzavretý, trámový spojitý nosník so štyrmi poľami na piatich podporách. Nosné stĺpy sú oceľové, zvárané z hrubých plechov, základy železobetónové na vŕtaných mikropilótach. Navrhli sa mimo ochranného pásma vodovodu Ø 800 mm a v bezpečnostnom (nie v ochrannom) pásme VTL plynovodu – základové konštrukcie sú posunuté na minimálnu vzdialenosť 5 m od osi potrubia.
Most pôsobí ako štíhly horizontálny prút nad Galvaniho ulicou. Zábradlie je čiastočne plné (nad vozovkou) a čiastočne tvorené perforovaným plechom. Plná časť zábradlia spolu s komorovým nosníkom vytvára celistvý architektonický výraz tak, aby lávka pôsobila ľahko a elegantne. Plné zábradlie v strednej časti zároveň pocitovo zvyšuje bezpečnosť chodcov; tvorené je hliníkovými voštinovými doskami.
Most spočíva na oceľových stĺpoch, kotvených do betónových pätiek postavených na mikropilótach. Najexponovanejšie stĺpy pri ceste sú výtvarne artikulované do tvaru písmena V, čím odkazujú na rovnaký motív v gastropasáži Avionu. Tieto dva stĺpy chránia oceľové zvodidlá osadené 1 m pred nimi. Pochôdznu plochu ukončuje polyuretánovo-epoxidová stierka s protišmykovou úpravou; všetky povrchy sú zvolené s dôrazom na minimálnu údržbu a maximálnu životnosť.
Osvetlenie zabezpečuje LED svetelná línia zabudovaná v madle zábradlia.
Konštrukcia oboch schodísk je oceľová. Okrem komunikačnej funkcie slúžia aj ako nosič informácií – na čiastočne perforovaných plochách sú umiestnené lightboxy „Avion“ a „Galvaniho Campus“, ktoré zlepšujú orientáciu verejnosti i vodičov na Galvaniho ulici. Výťahové šachty sú monolitické železobetónové s jednou presklenou stenou; schodiská aj výťahy sú obložené hliníkovými lamelami vo farbách Avionu a GBC 5. Pri oboch koncových bodoch boli upravené prístupové chodníky a nástupné plochy pred schodiskami s výťahmi.
Vertikálne objemy schodísk a výťahov s lamelovým opláštením tvoria harmonický kontrast k jednoduchej horizontále mostovky.
Podklady: Suchánek Architektonická Kancelária
Fotografie: Michal Suchánek