Advertorial

Pozvánka na 2. ročník stavebného veľtrhu BigMarket na Slovensku

Na podujatí sa predstaví až 37 vystavovateľov - popredných dodávateľov stavebných materiálov a inovácií s prezentáciou...

Hotel Hirschen Spa House, Rakúsko

Novotvar v prostredí alpskej obce.

Vytvorte si kúpeľňu snov: dizajnové riešenie od značky hansgrohe

Hansgrohe - prémiová značka kúpeľňových riešení, ponúka nadčasový dizajn, technickú precíznosť a udržateľné inovácie...

Okná Internorm za minuloročné ceny + hliníkový kryt zdarma!

Využite špeciálnu akciu Internorm: okná za minuloročné ceny a hliníkový kryt úplne zadarmo. Ponuka je časovo obmedzená!

Moderné plynové technológie: Efektivita a inovácie pre 21. storočie

Sumarizácia najdôležitejších inovácií, ktoré redefinujúcich využitie tohto energetického zdroja.

Utesňovanie spodných stavieb pomocou hydro-aktívnej fólie AMPHIBIA.

AMPHIBIA 3000 GRIP 1.3 od spoločnosti ATRO predstavuje modernú hydroizolačnú technológiu, ktorá spája vysokú odolnosť,...

Dekarbonizácia individuálneho vykurovania domácností – Green Deal evolučne a nie revolučne

Ambiciózne plány EK narazili na ekonomické možnosti domácností v jednotlivých členských štátoch –...

Minimalistické dvere IDEA – technická precíznosť a čistota prevedenia

IDEA DOOR od spoločnosti JAP prináša do interiéru čistý minimalistický vzhľad vďaka bezrámovému riešeniu a precíznej...

Dom s výhľadom na údolie, Dlouhý Most (ČR)

Kontinuita riešenia od vonkajšieho obkladu až po kovania a kľučky.

Schell Vitus – osvedčené riešenie pre sprchy a umývadlá vo verejnom sektore s viac ako desaťročnou tradíciou

Nástenné nadomietkové armatúry Vitus sú mimoriadne vhodné pre rýchlu a efektívnu...

Kompozitné okná predstavujú súčasnosť a budúcnosť

Okenné profily z kompozitného materiálu RAU-FIPRO X od spoločnosti Rehau sú v porovnaní s tradičnými plastovými profilmi mnohonásobne...

Myotis - stoly 2025

Najnovší sortiment stolov pre zariadenie interiérov...

Priemyselné sklenené priečky Dorsis Digero: svetelné rozhranie pre moderné interiéry

Spojenie moderného dizajnu, funkčnosti a svetla do harmonického architektonického prvku.

Význam prirodzeného svetla pre moderné a flexibilné pracovné prostredie

Kancelárska budova Baumit v slovinskom Trzine prešla premenou na moderné a udržateľné pracovisko. Architekti kládli dôraz...

Konferencia Xella Dialóg predstaví novinky a trendy v stavebníctve

Mottom šiesteho ročníku on-line konferencie odborníkov Xella Dialóg je Efektívny návrh budov 2025+: zmeny a riešenia

Tréningové centrum lukostreľby - diplomová práca

Diplomová práca z Fakulty Architektúry STU nominovaná na Cenu profesora Jozefa Lacka.
Diela
Red 421.08.2017
22350+15
Tréningové centrum lukostreľby - diplomová práca
Autori: Ing. arch. Matej MiškovskýSpolupráca: doc. Ing. arch. Danica Končeková, PhD. (Vedúca práce)Zastavaná plocha: 10760 m2Obostavaný objem: 139 880 m3Návrh: 2016 - 2017Adresa: Dúbravka-Krčace, SlovenskoPublikované: 21. august 2017

Diplomová práca je zameraná na vytvorenie tréningového centra v časti Dúbravka-Krčace. Lokalita je v územnom pláne Bratislavy definovaná ako voľnočasová so zameraním na šport a rekreáciu. Nachádza sa medzi dvoma mestskými časťami Dúbravka a Karlova Ves. Územie ma výborné napojenie na električkovú trať, MHD ako aj priame napojenie na obchvat diaľnice D2. Charakteristickou črtou lokality je prítomnosť vysokých drevín a svahovitosť terénu. Tieto základné determinanty ovplyvňovali samotné architektonické a funkčné stvárnenie objektu.

Širšie vzťahy v rámci mesta
Širšie vzťahy v rámci mesta

Idea

Tréningové centrum v sebe sústreďuje športové plochy s rozmermi, ktoré vyhovujú medzinárodným požiadavkám. Navrhovaná hala spĺňa všetky normy pre halovú lukostreľbu na vzdialenosti 25m, 18m a ochranné vzdialenosti pre divákov a trénerov. Medzi podmienkami Slovenského lukostreleckého zväzu bolo, aby mohlo súčasne pretekať 200 športovcov, preto sa celá hala musela nadimenzovať práve na tieto požiadavky. 

Návrh vytvára aj priestor pre relax športovcov a návštevníkov. V centre športoviska sa nachádza bazén, ktorý vyhovuje potrebám klubov a medzinárodných podujatí. Relaxačnú časť prirodzene dopĺňa wellness. Nakoľko ide o veľké objemy obostavaného priestoru, celá hmota je vsadená do svahu aby nepôsobila dominantne. 

Riešené územie je situované medzi Iuventou a letným kúpaliskom Rosnička. Priestor je definovaný morfológiou terénu a vysokou zeleňou.
Riešené územie je situované medzi Iuventou a letným kúpaliskom Rosnička. Priestor je definovaný morfológiou terénu a vysokou zeleňou.
Priestor prirodzene prepája les a cestnú komunikáciu, kde sa nachádza zastávka električky a cesta. Objekt pri Rosničke tvorí zázemie pre plavecký bazén a technické priestory. Na druhej strane sa nachádza hala pre lukostrelcov.
Priestor prirodzene prepája les a cestnú komunikáciu, kde sa nachádza zastávka električky a cesta. Objekt pri Rosničke tvorí zázemie pre plavecký bazén a technické priestory. Na druhej strane sa nachádza hala pre lukostrelcov.
V treťom objekte sú situované prevádzky a technické zázemie pre lukostrelcov.  Nachádkzajú sa tu aj vstupné priestory a gastro prevádzka.
V treťom objekte sú situované prevádzky a technické zázemie pre lukostrelcov. Nachádkzajú sa tu aj vstupné priestory a gastro prevádzka.
Spojením všetkých objektov vznikol kompaktný celok, ktorý v sebe môže integrovať všetky potrebné funkcie. Jednotná hmota tak eliminovala zbytočné prepojenia medzi funkciami. Pre lepšie začlenenie objektu do prostredia bola zvolená pochôdzna strecha snízkou vegetáciou.
Spojením všetkých objektov vznikol kompaktný celok, ktorý v sebe môže integrovať všetky potrebné funkcie. Jednotná hmota tak eliminovala zbytočné prepojenia medzi funkciami. Pre lepšie začlenenie objektu do prostredia bola zvolená pochôdzna strecha snízkou vegetáciou.
Plavecká a športová hala sú umiestnené na okrajových častiach budovy. Sekundárne funkcie vyžadovali preslnenie a preto boli do objemu začlenené átriá, ktoré zabezpečujú potrebnú insoláciu.
Plavecká a športová hala sú umiestnené na okrajových častiach budovy. Sekundárne funkcie vyžadovali preslnenie a preto boli do objemu začlenené átriá, ktoré zabezpečujú potrebnú insoláciu.
Výsledná forma objektu reaguje na okolitú zeleň. Nevytvára bariéru a navádza ľudí k športoviskám. V podzemných častiach sú situované technické miestnosti a priestory, ktoré nie sú viazané na priame preslnenie.
Výsledná forma objektu reaguje na okolitú zeleň. Nevytvára bariéru a navádza ľudí k športoviskám. V podzemných častiach sú situované technické miestnosti a priestory, ktoré nie sú viazané na priame preslnenie.

Návrh objektu je riešený vo východnej časti územia na strane už jestvujúcich objektov ako Iuventa, letné kúpalisko Rosnička, hotel Imet a štadión ŠKP. Tieto objekty sú už pre danú lokalitu nevyhovujúce, či už pre svoj technický stav alebo pre funkčnú náplň. Umiestnenie stavby v rámci územia podporuje koncept tréningového centra, ako aj sfunkčnenie Iuventy a vytvorenie prepojenia s kúpaliskom.  

Širšie vzťahy
Širšie vzťahy
Situácia
Situácia

Architektonické riešenie

Architektúra je podmienená morfológiou priľahlého terénu, v nadväznosti na jestvujúce stavby a zeleň. Nutnosť prepojenia hlavných funkcií vymedzila hmotové stvárnenie. Výsledný objem tak pôsobí kompaktným dojmom. Pre zachovanie prechodu medzi lesom a cestnou komunikáciou vznikol cez budovu prieraz vo forme exteriérového átria a zelenej rampy. Tieto perforácie umožnili priame napojenie na jednotlivé športoviská. Strecha centra je multifunkčným priestorom. Svah sa prirodzene napája až na prízemie cez schodisko.

Materiálovo sa návrh prikláňa k prírodným tónom. Na fasáde sú vytvorené slnolamy v podobe perforovaného plechu. Presklenia prepájajú športoviská a exteriérové plochy hlavne v časti kúpaliska. Centrálne umiestnené foyer je zvýraznené konzolou, za ktorou sa nachádza átrium. Svetlo dopadajúce do priestoru pred vstupom, tak prirodzene navádza návštevníkov do objektu. Nosné a nenosné steny sú prevažne z pohľadového betónu. Rozptylová plocha pred objektom je navrhnutá ako plynulé pokračovanie zeleného pásu prechádzajúceho budovou.

Prevádzkové a dispozičné riešenie

Tréningové centrum je samostatná dvojposchodová budova. Primárne je delená pre tri typy užívateľov a to pre profesionálnych športovcov a ich personál, amatérskych športovcov a divákov. Parkovanie je zabezpečené v prvom podzemnom podlaží a v časti pred budovou. Podzemné parkovisko je obslúžené dvoma priamymi rampami. Z parkoviska sú štyri schodiská vyvedené do exteriéru. V časti pod plaveckým bazénom sa nachádza technické zázemie pre technológiu bazénu a wellnessu.

V zadnej časti je umiestnený skladový priestor pre halu s napojením na zásobovací výťah. K výťahu je pričlenené aj schodisko, ktoré prepája testovaciu halu s prvým nadzemným podlažím. K tejto hale je po oboch stranách vytvorený priestor techniky a technické zázemie pre jednotlivé simulačné podmienky. Časť parkoviska pod objektom je vyhradená pre športovcov s priamym napojením na šatňovú časť. V prvom nadzemnom podlaží je v centre objektu situované foyer s vyústením dvoch schodísk zo suterénu.

V stredovej časti je vytvorený umelý kopec, kde sú umiestnené nízke stromy, ktoré prepájajú vonkajšie átrium. Foyer je priamo napojené na hľadiská k jednotlivým športoviskám.

V okrajových častiach sa nachádzajú dvojramenné schodiská a dva výťahy. Ďalšou dominantou vstupného priestoru je recepcia. Prechod do šatní je kontrolovaný pomocou čipu a turniketov. V ľavej časti sa nachádzajú spoločné šatne pre plavcov s prezliekacími kabínkami. Prechod do plaveckej časti je cez hygienický uzol. Plavecký bazén je prepojený s relaxačnou zónou. Presklenie v južnej časti poskytuje počas letných mesiacov možnosť prepojenia letného kúpaliska a tréningového centra. Z týchto šatní ako aj z relaxačnej časti je možný prechod do wellness centra opäť kontrolovaný pomocou čipu a turniketu. V časti sáun sú vytvorené oddychové zóny, priestory pre vodnú liečbu a masérov. Nachádza sa tu celkovo desať sáun a tri vírivky. V pravej časti budovy sa nachádza zázemie pre halových športovcov.

V prednej časti sú opäť situované spoločné šatne s priľahlou hygienou. V stredovej časti sa nachádzajú bunkové šatne pre potreby klubov. V zadnej časti sa nachádzajú tri bunkové šatne určené pre lukostrelcov a profesionálnych športovcov. Tieto šatne sú priamo napojené schodiskom, ako na parkovanie v suteréne, tak na ubytovacie jednotky na druhom nadzemnom podlaží.

V okrajovej časti sa nachádza priestor na testovanie športovcov s lekárom a spoločenská miestnosť s hygienickým zázemím. Šatne sú napojené na hlavnú halu a na  wellnessovú časť. V prípade potreby je možnosť halu rozdeliť na polovicu alebo tretiny. V druhom nadzemnom podlaží sa nachádza krátkodobé ubytovanie pre 26 športovcov. V izbe sa nachádza bezbariérová kúpeľňa, dve lôžka a pohotovostná kuchynka. V rohovej časti sa nachádza spoločenská miestnosť. K izbám je pričlenená plnohodnotná kuchyňa. Všetky izby sú orientované do privátneho átria s veľkou rozptylovou plochou pre športové aktivity.

Ubytovacia časť je priamo napojená na administratívny trakt slovenského lukostreleckého zväzu. V rohovej časti tohto traktu je komerčný priestor. Priestor pre divákov je jasne definovaný nad športoviskami. V prípade potreby, sa dajú kapacity divákov navýšiť vo forme mobilných tribún. Z oboch hľadísk je možný prechod do stredového átria cez presklené časti fasády. Vo vykonzolovanej časti na priečelí centra sa nachádza priestor pre rozhodcov a zasadacia miestnosť. Strecha je pochôdzna s nízkou vegetáciou. Tu sú situované dve mini futbalové ihriská  a malá lukostrelecká strelnica.

Schéma pohybu divákov
Schéma pohybu divákov
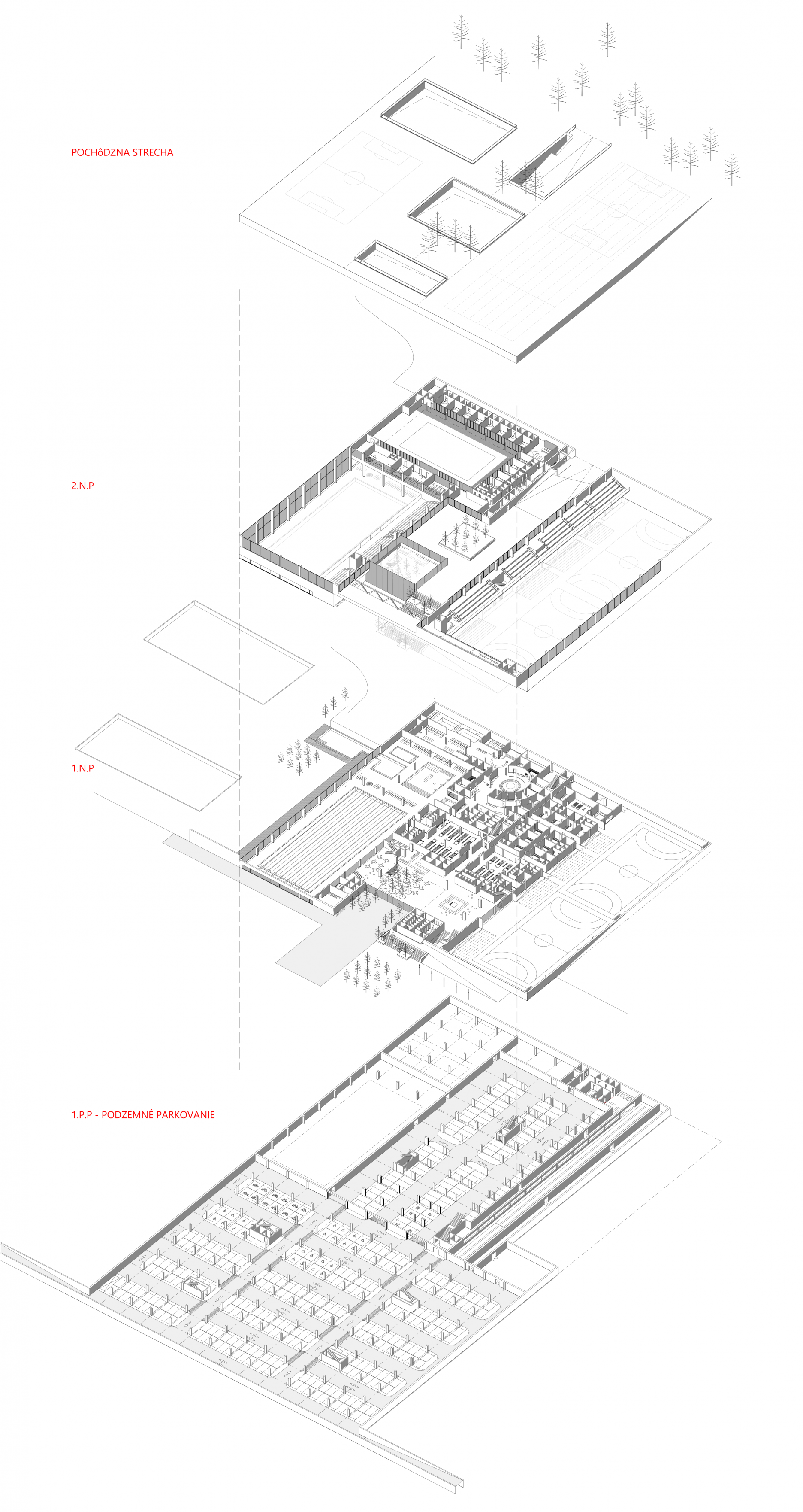
Rozložený model
Rozložený model
Pôdorys 1. PP
Pôdorys 1. PP
Pôdorys 1. NP
Pôdorys 1. NP
Pôdorys 2. NP
Pôdorys 2. NP
Pôdorys strechy
Pôdorys strechy
Schéma: Športovci (lukostrelci)
Schéma: Športovci (lukostrelci)
Schéma: Plavci
Schéma: Plavci
Schéma: Wellness
Schéma: Wellness

Technické a konštrukčné riešenie

Konštrukčný systém budovy tvorí kombinácia stĺpového a stenového systému. V časti podzemného parkoviska  je navrhovaný stĺpový systém podporený schodiskovými jadrami. Modul je 8100mm x 8100mm v celej ploche. Stĺpy majú rozmery: 400mm x 600mm, 1200mm x 500mm. Konštrukcia strechy je navrhovaná ako pochôdzna s možnosťou výsadby drevín. V časti pod budovou sa nachádzajú nosné steny s hrúbkou 400 mm , ktoré prenášajú zaťaženie z horných podlaží.  Svetlá výška suterénu je 3000 mm. Nosný systém na prvom nadzemnom podlaží je identický ako v suteréne. Výplňové priečky a deliace konštrukcie sú prevažne z liateho betónu alebo ľahčených tvárnic. V častiach wellnessu a relaxačnej zóny sú použité predpäté konštrukcie na rozpon 16 m. Strešná konštrukcia je navrhnutá  z oceľových priestorových priehradových nosníkov uložených v osovej vzdialenosti 8,1 m po celej dĺžke hál. Výška nosníka je 2500 mm a v časti haly je oceľová konštrukcia prekrytá drevom. Systém nosníkov je prepojený s vykonzolovanou časťou v priečelí budovy, kde je umiestnená priehradová konštrukcia, ktorá podporuje prenášanie zaťaženia. Obvodový plášť je predsadený  pred steny o 200 mm a uchytený pomocou oceľových kotiev do nosnej konštrukcie.

Rez A-A
Rez A-A
Rez A-A
Rez A-A
Západný pohľad
Západný pohľad
Severný pohľad
Severný pohľad
Južný pohľad
Južný pohľad

Vizualizácie návrhu:

Čelný pohľad
Čelný pohľad
Pohľad od kúpaliska Rosnička
Pohľad od kúpaliska Rosnička
Predpolie pred hlavným vstupom
Predpolie pred hlavným vstupom
Plavecký bazén
Plavecký bazén
Športová hala
Športová hala
Foyer
Foyer

Model:

Podklady: Matej Miškovský

Poloha diela

Ing. arch. Matej Miškovský

Súvisiace články

Vložené
17. júl 2017
0
2235
Hlavný obsahHlavný obsah
Čakajte prosím