Advertorial

Pozvánka na 2. ročník stavebného veľtrhu BigMarket na Slovensku

Na podujatí sa predstaví až 37 vystavovateľov - popredných dodávateľov stavebných materiálov a inovácií s prezentáciou...

Hotel Hirschen Spa House, Rakúsko

Novotvar v prostredí alpskej obce.

Vytvorte si kúpeľňu snov: dizajnové riešenie od značky hansgrohe

Hansgrohe - prémiová značka kúpeľňových riešení, ponúka nadčasový dizajn, technickú precíznosť a udržateľné inovácie...

Okná Internorm za minuloročné ceny + hliníkový kryt zdarma!

Využite špeciálnu akciu Internorm: okná za minuloročné ceny a hliníkový kryt úplne zadarmo. Ponuka je časovo obmedzená!

Moderné plynové technológie: Efektivita a inovácie pre 21. storočie

Sumarizácia najdôležitejších inovácií, ktoré redefinujúcich využitie tohto energetického zdroja.

Utesňovanie spodných stavieb pomocou hydro-aktívnej fólie AMPHIBIA.

AMPHIBIA 3000 GRIP 1.3 od spoločnosti ATRO predstavuje modernú hydroizolačnú technológiu, ktorá spája vysokú odolnosť,...

Dekarbonizácia individuálneho vykurovania domácností – Green Deal evolučne a nie revolučne

Ambiciózne plány EK narazili na ekonomické možnosti domácností v jednotlivých členských štátoch –...

Minimalistické dvere IDEA – technická precíznosť a čistota prevedenia

IDEA DOOR od spoločnosti JAP prináša do interiéru čistý minimalistický vzhľad vďaka bezrámovému riešeniu a precíznej...

Dom s výhľadom na údolie, Dlouhý Most (ČR)

Kontinuita riešenia od vonkajšieho obkladu až po kovania a kľučky.

Schell Vitus – osvedčené riešenie pre sprchy a umývadlá vo verejnom sektore s viac ako desaťročnou tradíciou

Nástenné nadomietkové armatúry Vitus sú mimoriadne vhodné pre rýchlu a efektívnu...

Kompozitné okná predstavujú súčasnosť a budúcnosť

Okenné profily z kompozitného materiálu RAU-FIPRO X od spoločnosti Rehau sú v porovnaní s tradičnými plastovými profilmi mnohonásobne...

Myotis - stoly 2025

Najnovší sortiment stolov pre zariadenie interiérov...

Priemyselné sklenené priečky Dorsis Digero: svetelné rozhranie pre moderné interiéry

Spojenie moderného dizajnu, funkčnosti a svetla do harmonického architektonického prvku.

Význam prirodzeného svetla pre moderné a flexibilné pracovné prostredie

Kancelárska budova Baumit v slovinskom Trzine prešla premenou na moderné a udržateľné pracovisko. Architekti kládli dôraz...

Konferencia Xella Dialóg predstaví novinky a trendy v stavebníctve

Mottom šiesteho ročníku on-line konferencie odborníkov Xella Dialóg je Efektívny návrh budov 2025+: zmeny a riešenia

STARÝ most s NOVOU funkciou, Trenčín - diplomová práca

Diplomová práca z Fakulty architektúry STU. Projekt získal odmenu PRO URBIS , ktorá sa udeľuje za skvalitnenie mestského prostredia a environmentálny prístup k riešeniu problematiky v rámci Ceny profesora Jozefa Lacka.
Diela
Red 428.09.2017
31930+10
STARÝ most s NOVOU funkciou, Trenčín - diplomová práca
Autori: Ing. arch. Jana NagyováSpolupráca: Ing. arch. Eva Oravcová, PhD. (Vedúca práce)Návrh: 2017 - 2017Adresa: Starý most , Trenčín, SlovenskoPublikované: 28. september 2017

Prácu predstavujeme s autorským textom:

Transformácia železničného mosta v Trenčíne, ktorý má v novonavrhovanej urbanistickej štruktúre pretransformovať svoje využitie výlučne pre peších a cyklistov s možnosťou oddychu a rekreácie. Nový most spája dve funkčne odlišné urbanistické štruktúry. Pri návrhu som sa snažila rešpektovať a zachovať panorámu mesta a zároveň zanechať pôvodný industriálny charakter stavby.

Idea

Kedže sa pobytový most nachádza na reprezentatívnom priestore, venovala som veľkú pozornosť celkovému výrazu a hmotového riešenia. V koncepte urbanistického riešenia sa pokúšam o vytvorenie zeleného pásu, ktorý prechádza od parku M. R. Štefánika až na druhý breh rieky Váh. Táto trasa má v budúcnosti slúžiť  ako hlavný peší ťah mesta. Pobytový most sa stáva ústredným prvkom konceptu ponúkajúci oddych a rekreáciu v spojení s riekou Váh.

Urbanistický koncept
Urbanistický koncept

Vývoj

Konštrukčné riešenie mosta ponúka široký záber hmotových riešení. V návrhu som sa snažila nájsť vyvážený pomer medzi jeho priechodnosťou a hmotami jednotlivých prevádzok, ktoré vypĺňajú konštrukciu. Z kompozičného hľadiska je vertikálny akcent vyhliadky situovaný bližšie k centu mesta. Kompozíciu dopĺňajú jednoduché hmoty menších prevádzok.

Koncept
Koncept

Architektonické riešenie

Industriálnu podstatu železničného mosta som sa snažila zachovať aj v novom výraze stavby. Oceľová konštrukcia je doplnená drevom a presklenou fasádou. V severnej časti mosta je navrhnutá komunikácia, ktorá umožňuje plynulý prechod medzi oboma brehmi rieky. Kedže je most súčasťou navrhovanej Vážskej vodnej cesty, no svojim konštrukčným riešením nespĺňal výškový gabarit plavebného koridoru, rozhodla som sa túto časť mosta nahradiť zdvíhacou lávkou s oceľovou nosnou konštrukciou.

Južná strana mosta je v čo najväčšej miere venovaná oddychovým a športovým zónami. Most je z vodnou plochou prepojený vysunutou komunikáciou, ktorá vedie na drevené móla. Pod mostom sú okrem vodných aktivít navrhnuté aj zóny pre mládež a deti. Street zóna ponúka skatepark, streetballové ihrisko, parkour zónu a lezeckú stenu. Pre najmenších sú navrhnuté detské ihriská s pieskoviskom. Z tejto úrovne je sprístupnená aj požičovňa lodičiek.

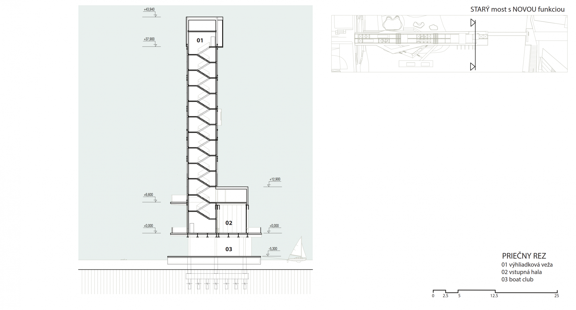
Prevádzkovo je most rozdelený do dvoch častí. Prvá, kompozične dominantná, ponúka priestory zamerané na turizmus. Vertikálny objekt je rozdelený do troch podlaží. Vstupná hala a infocentrom sú prepojené s dvojpodlažnou kaviarňou. V severnej sa nachádzajú hygienické priestory sklady zásobovania. Na druhom podlaží je situované zázemie zamestnancov pre reštauráciu spolu so skladovými priestormi. Komunikácia medzi zázemím a kuchyňou je riešená vertikálne - schodiskom, tak isto zásobovanie reštaurácie je za pomoci výťahov. Najvyššie podlažie vypĺňajú priestory reštaurácie, ktorá ponúka výhľad na mesto a Trenčiansky hrad.

Druhá časť ponúka športovo-oddychové a relaxačné zóny. V tejto časti sú vertikálne prepojené nielen úrovne mosta, ale aj priestory pod mostom. V prvej úrovni sa nachádza vstup do vertikálnej komunikácie s výťahom. Na druhom podlaží sa nachádza klubovňa. Na úrovni tretieho podlažia sú zelené plochy, ktoré sú určené pre exteriérové aktivity, v náväznosti na sezónny pult s občerstvením. Všetky úrovne sú navrhnuté bezbariérovo. v interiéri za pomoci výťahov, v exteriéri pomocou rámp. 

Situácia
Situácia
Pôdorys 1. NP
Pôdorys 1. NP
Pôdorys - podlažie pod mostom
Pôdorys - podlažie pod mostom
Pôdorys 2. NP
Pôdorys 2. NP
Pôdorys 3. NP
Pôdorys 3. NP
Pozdĺžny rez
Pozdĺžny rez
Priečny rez
Priečny rez
Priečny rez A
Priečny rez A
Priečny rez B
Priečny rez B
Axonometria
Axonometria
Juhovýchodný pohľad
Juhovýchodný pohľad
Severozápadný pohľad
Severozápadný pohľad
Juhovýchodný pohľad
Juhovýchodný pohľad
Severozápadný pohľad
Severozápadný pohľad
Vizualizácia
Vizualizácia
Vizualizácia
Vizualizácia

Fotografie modelu:

Podklady: Jana Nagyová

Ing. arch. Jana Nagyová

Súvisiace články

Vložené
7. september 2017
0
3193
Hlavný obsahHlavný obsah
Čakajte prosím