Na podujatí sa predstaví až 37 vystavovateľov - popredných dodávateľov stavebných materiálov a inovácií s prezentáciou...
Novotvar v prostredí alpskej obce.
Hansgrohe - prémiová značka kúpeľňových riešení, ponúka nadčasový dizajn, technickú precíznosť a udržateľné inovácie...
Využite špeciálnu akciu Internorm: okná za minuloročné ceny a hliníkový kryt úplne zadarmo. Ponuka je časovo obmedzená!
Sumarizácia najdôležitejších inovácií, ktoré redefinujúcich využitie tohto energetického zdroja.
AMPHIBIA 3000 GRIP 1.3 od spoločnosti ATRO predstavuje modernú hydroizolačnú technológiu, ktorá spája vysokú odolnosť,...
Ambiciózne plány EK narazili na ekonomické možnosti domácností v jednotlivých členských štátoch –...
IDEA DOOR od spoločnosti JAP prináša do interiéru čistý minimalistický vzhľad vďaka bezrámovému riešeniu a precíznej...
Kontinuita riešenia od vonkajšieho obkladu až po kovania a kľučky.
Nástenné nadomietkové armatúry Vitus sú mimoriadne vhodné pre rýchlu a efektívnu...
Okenné profily z kompozitného materiálu RAU-FIPRO X od spoločnosti Rehau sú v porovnaní s tradičnými plastovými profilmi mnohonásobne...
Najnovší sortiment stolov pre zariadenie interiérov...
Spojenie moderného dizajnu, funkčnosti a svetla do harmonického architektonického prvku.
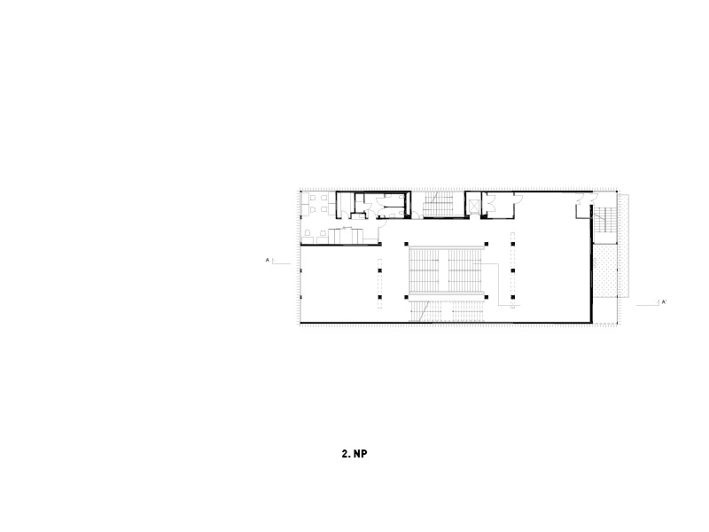
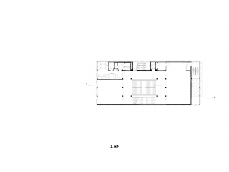
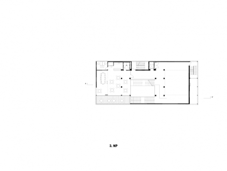
Kancelárska budova Baumit v slovinskom Trzine prešla premenou na moderné a udržateľné pracovisko. Architekti kládli dôraz...
Mottom šiesteho ročníku on-line konferencie odborníkov Xella Dialóg je Efektívny návrh budov 2025+: zmeny a riešenia

Súdobá architektúra pavilónu odkazuje na jednoduchosť národného štýlu - na modernizmus . V spodnej časti sa nachádza bazén, malý amfiteáter a reštaurácie. Na poschodí sú výstavné priestory umiestnené okolo centrálneho átria a reštaurácie. Prístupná zelená strecha poskytuje návštevníkovi výhľad na celý areál svetovej výstavy. Interiér pavilónu vzniká v spolupráci s poprednými súčasnými českými umelcami.
Pri návrhu boli zohľadnené klimatické podmienky letného Milána. Český pavilón ponúka unaveným návštevníkom niečo naviac. Je na návštevníkovi, či sa rozhodne pre odpočinok v jednej z troch reštaurácií, v pavilóne alebo pre relaxáciu v bazéne označenom ako " urbánny bazén " alebo " Public Pool ". Potrebnú výbavu pre kúpeľ návštevník dostane zadarmo ako propagačný materiál. Namiesto tradičných tlačovín ktoré často končia v odpadkovom koši návštevník dostane žabky, plavky a uterák. Predmety budú potlačené informáciami o expozícii a Česku. Návštevník tak bude originálne propagovať krajinu aj inde vo svete. Propagačné predmety budú zhotovené z inteligentných materiálov s využitím nanotechnológií v ktorých je Česká republika svetová špička.
Udržateľnosť riešenia spočíva v jeho využití po výstave. Po skončení výstavy možno pavilón demontovať na jednotlivé moduly a previezť späť do Česka, kde môže nájsť ďalšie využitie . Pavilón tak nebude nevyhnutne čakať zvyčajný osud výstavných pavilónov znamenajúci chátranie alebo demoláciu. Spodná časť môže naďalej slúžiť ako reštaurácia s bazénom.Dve horné poschodia môžu jednoduchou úpravou plniť funkciu materskej škôly, výstavnej galérie alebo študentského bývania.