Advertorial

Moderné plynové technológie: Efektivita a inovácie pre 21. storočie

Sumarizácia najdôležitejších inovácií, ktoré redefinujúcich využitie tohto energetického zdroja.

Utesňovanie spodných stavieb pomocou hydro-aktívnej fólie AMPHIBIA.

AMPHIBIA 3000 GRIP 1.3 od spoločnosti ATRO predstavuje modernú hydroizolačnú technológiu, ktorá spája vysokú odolnosť,...

Dekarbonizácia individuálneho vykurovania domácností – Green Deal evolučne a nie revolučne

Ambiciózne plány EK narazili na ekonomické možnosti domácností v jednotlivých členských štátoch –...

Minimalistické dvere IDEA – technická precíznosť a čistota prevedenia

IDEA DOOR od spoločnosti JAP prináša do interiéru čistý minimalistický vzhľad vďaka bezrámovému riešeniu a precíznej...

Schell Vitus – osvedčené riešenie pre sprchy a umývadlá vo verejnom sektore s viac ako desaťročnou tradíciou

Nástenné nadomietkové armatúry Vitus sú mimoriadne vhodné pre rýchlu a efektívnu...

Kompozitné okná predstavujú súčasnosť a budúcnosť

Okenné profily z kompozitného materiálu RAU-FIPRO X od spoločnosti Rehau sú v porovnaní s tradičnými plastovými profilmi mnohonásobne...

Myotis - stoly 2025

Najnovší sortiment stolov pre zariadenie interiérov...

Priemyselné sklenené priečky Dorsis Digero: svetelné rozhranie pre moderné interiéry

Spojenie moderného dizajnu, funkčnosti a svetla do harmonického architektonického prvku.

Význam prirodzeného svetla pre moderné a flexibilné pracovné prostredie

Kancelárska budova Baumit v slovinskom Trzine prešla premenou na moderné a udržateľné pracovisko. Architekti kládli dôraz...

Konferencia Xella Dialóg predstaví novinky a trendy v stavebníctve

Mottom šiesteho ročníku on-line konferencie odborníkov Xella Dialóg je Efektívny návrh budov 2025+: zmeny a riešenia

Murovací robot WLTR stavia svoj prvý dom na Slovensku

Robot WLTR predstavuje moderný prístup k murovaným konštrukciám. Vďaka automatizácii dokáže rýchlo, presne a bezpečne realizovať...

Nová éra bezpečnosti s I-tec Secure od Internorm

Okrem bezpečnosti majú okná aj elegantný vzhľad, pretože nie sú viditeľné žiadne uzamykacie časti kovania.

Skryté zárubne JAP – intenzívny zážitok z bývania

Dvere MASTER v skrytej zárubni AKTIVE je možné vyrobiť až do výšky 3 700 mm

Tienenie namiesto klimatizácie

Internorm stavia na energetickú efektívnosť a inteligentné tieniace riešenia.

BigMat International Architecture Award 2025 - vybrané diela

Slovensko vo výbere zastupuje šesť realizácií.

Rekonštrukcia objektu pre nový Zastupiteľský úrad SR v Bukurešti

Nový život pre eklektickú vilu zo začiatku 20 storočia. Napriek potrebe výrazných zásahov a sanácie stavby sa architektom podarilo zachovať a prezentovať architektonické kvality pôvodnej stavby.
Diela
Red 304.09.2023
12710+40
Rekonštrukcia objektu pre nový Zastupiteľský úrad SR v Bukurešti
Autori: Ing.arch. Pavol Hanzalík, Ing. arch Ján Pavúk, PhD., arh. Iulia Saftoiu, arh. Elena Ionescu Viziteu, arh. Dragoș Fotache, arh. Ștefania Mălăeru, arh. Dana Cătălina PredaSpolupráca: Ing. Milan Mráz (manažér projektu)Podlažná plocha: 570 m2Návrh: 2015 - 2018Realizácia: 2021 - 2022Adresa: Strada Vasile Lascăr , București 41, Bukurešť, RumunskoPublikované: 4. september 2023

Projekt prestavby, na ktorom sa podieľali slovenskí architekti Pavol Hanzalík a Ján Pavúk, ocenila hodnotiaca komisia v rámci Priza annuala 2022 nomináciou v kategórii realizovaných projektov obnovy architektonických a kultúrnych pamiatok. Cenu každoročne organizuje Ordinul Arhitecților din România (rumunský ekvivalent našej komory architektov).

Nové sídlo Zastupiteľského úradu Slovenskej republiky v Bukurešti vzniklo prestavbou mestskej vily, postavenej okolo roku 1921. Stavba reprezentuje štýl francúzskeho akademického eklektizmu, typický pre architektúru rumunskej metropoly z prelomu 19. a 20. storočia.

Projekt obnovy zahŕňal v prvom rade sanáciu narušenej statiky a konštrukcií objektu. Stavebné práce zaistili seizmické zabezpečenie objektu, stabilizáciu spodnej stavby prostredníctvom injektáže, alebo sanáciu a doplnenie stropných konštrukcií. Medzi dôležité súčasti architektonického návrhu patrila tiež optimalizácia prevádzkových vzťahov a prispôsobenie dispozície požiadavkám Zastupiteľského úradu. Autori sa súčasne snažili zachovať charakteristický architektonický výraz objektu. K úspešnej realizácii zámeru prispelo zachovanie a obnova hodnotných dobových prvkov. Medzi najdôležitejšie súčasti patria reliéfne prvky fasády, mozaika v interiéri, alebo balustráda na schodisku.

Foto: Arthur Zinz
Foto: Arthur Zinz
Foto: Arthur Zinz
Exteriér - stav pred rekonštrukciou
Exteriér - stav pred rekonštrukciou

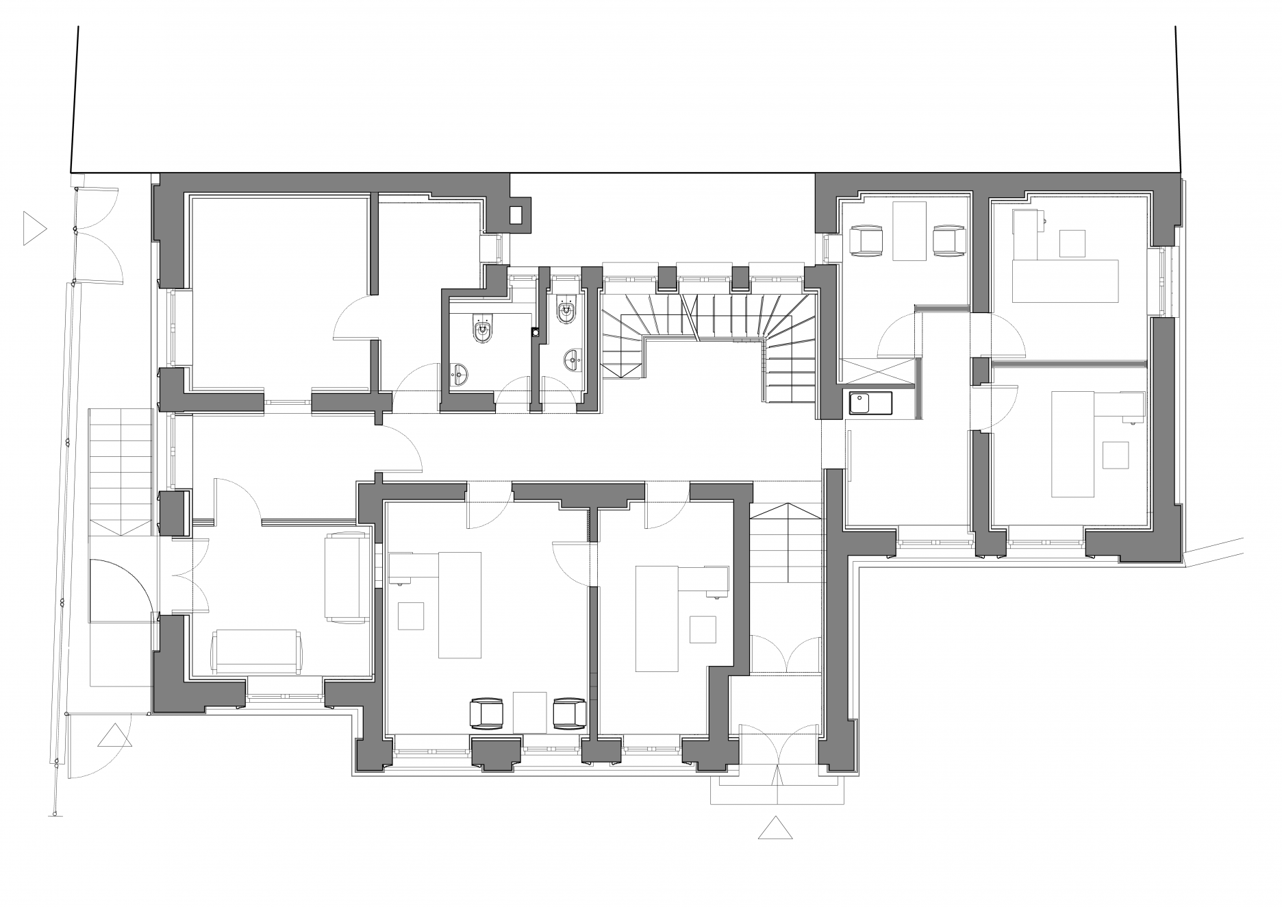
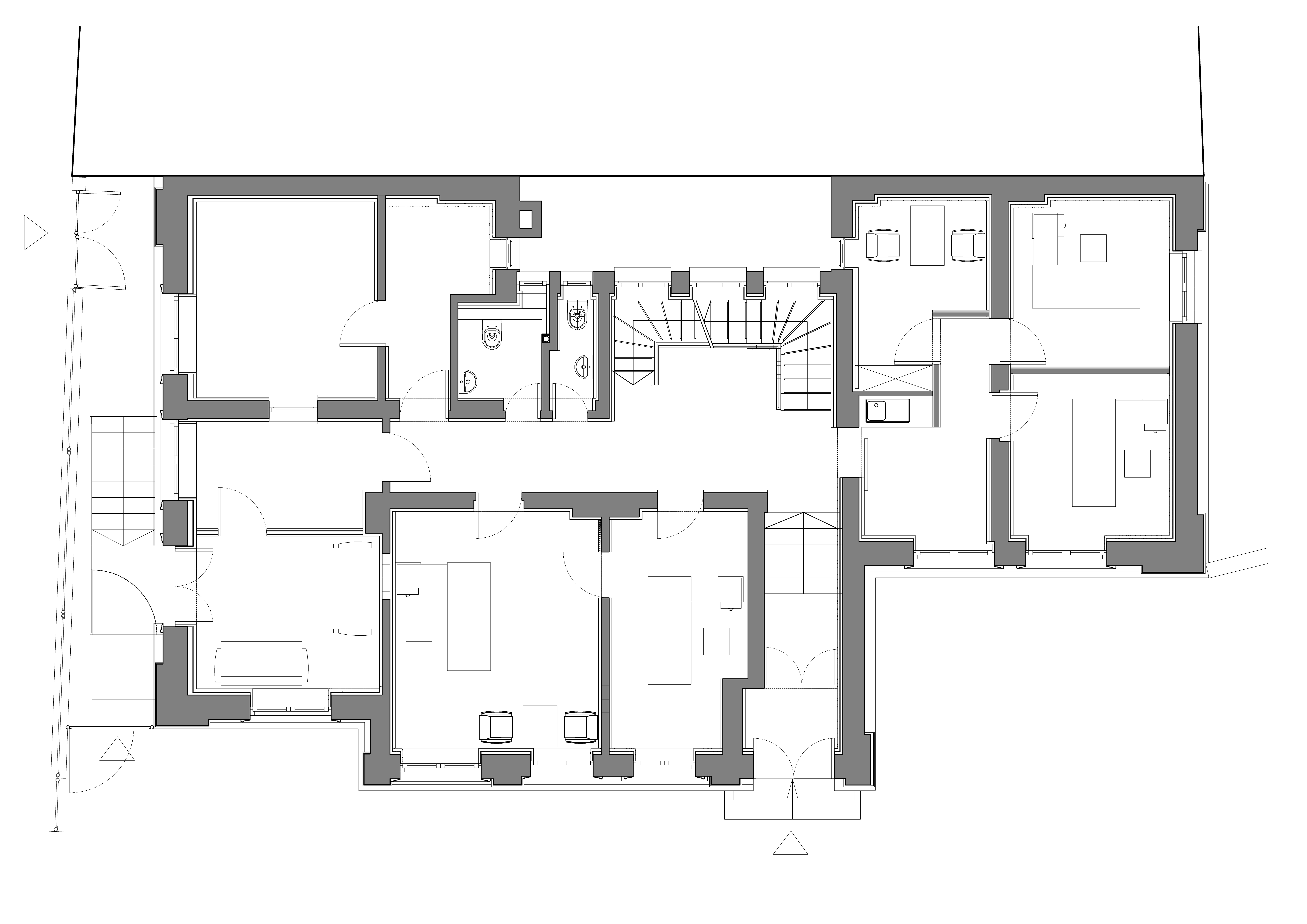
Dispozícia a prevádzka

Nová funkčná náplň objektu zahŕňa kancelárie na úrovni prvého a druhého nadzemného podlažia. Priestor v podkroví využíva dvojica bytových jednotiek - menšia garsónka a trojizbový byt. V suteréne nájdeme obslužné celky ako sklady, práčovňu a kotolňu. Úprava dispozície sa premietla aj do zmeny konfigurácie partra, ktorý je po novom prístupný z ulice aj vnútorného dvora. 

Medzi zásahy, ktoré na prvý pohľad prezradí iba absencia komínových telies, patrí realizácia nového krovu a strechy, ktoré zodpovedajú ich pôvodnému objemu a geometrii. Nové zastrešenie s viacerými strešnými oknami VELUX umožnilo adekvátne presvetliť obytné priestory v podkroví. Rukopis architektov, podieľajúcich sa na prestavbe objektu reprezentuje aj nová perforácia a zasklenie v tympanóne.

Pôdorys 1. NP
Pôdorys 1. NP
Priečny rez
Priečny rez
Uličný pohľad
Uličný pohľad
Foto: Arthur Zinz
Foto: Arthur Zinz
Foto: Arthur Zinz
Foto: Arthur Zinz
Foto: Arthur Zinz
Foto: Arthur Zinz
Foto: Arthur Zinz
Foto: Arthur Zinz
Foto: Arthur Zinz
Interiér - stav pred rekonštrukciou
Interiér - stav pred rekonštrukciou

Podklady: Ing. arch. Pavol Hanzalík
Fotografie: Arthur Zinz

Poloha diela

Ing.arch. Pavol Hanzalík
Ing. arch Ján Pavúk, PhD.
arh. Iulia Saftoiu
arh. Elena Ionescu Viziteu
arh. Dragoș Fotache
arh. Ștefania Mălăeru
arh. Dana Cătălina Preda

Súvisiace články

Vložené
28. august 2023
0
1271
Hlavný obsahHlavný obsah
Čakajte prosím