Advertorial

Pozvánka na 2. ročník stavebného veľtrhu BigMarket na Slovensku

Na podujatí sa predstaví až 37 vystavovateľov - popredných dodávateľov stavebných materiálov a inovácií s prezentáciou...

Hotel Hirschen Spa House, Rakúsko

Novotvar v prostredí alpskej obce.

Vytvorte si kúpeľňu snov: dizajnové riešenie od značky hansgrohe

Hansgrohe - prémiová značka kúpeľňových riešení, ponúka nadčasový dizajn, technickú precíznosť a udržateľné inovácie...

Okná Internorm za minuloročné ceny + hliníkový kryt zdarma!

Využite špeciálnu akciu Internorm: okná za minuloročné ceny a hliníkový kryt úplne zadarmo. Ponuka je časovo obmedzená!

Moderné plynové technológie: Efektivita a inovácie pre 21. storočie

Sumarizácia najdôležitejších inovácií, ktoré redefinujúcich využitie tohto energetického zdroja.

Utesňovanie spodných stavieb pomocou hydro-aktívnej fólie AMPHIBIA.

AMPHIBIA 3000 GRIP 1.3 od spoločnosti ATRO predstavuje modernú hydroizolačnú technológiu, ktorá spája vysokú odolnosť,...

Dekarbonizácia individuálneho vykurovania domácností – Green Deal evolučne a nie revolučne

Ambiciózne plány EK narazili na ekonomické možnosti domácností v jednotlivých členských štátoch –...

Minimalistické dvere IDEA – technická precíznosť a čistota prevedenia

IDEA DOOR od spoločnosti JAP prináša do interiéru čistý minimalistický vzhľad vďaka bezrámovému riešeniu a precíznej...

Dom s výhľadom na údolie, Dlouhý Most (ČR)

Kontinuita riešenia od vonkajšieho obkladu až po kovania a kľučky.

Schell Vitus – osvedčené riešenie pre sprchy a umývadlá vo verejnom sektore s viac ako desaťročnou tradíciou

Nástenné nadomietkové armatúry Vitus sú mimoriadne vhodné pre rýchlu a efektívnu...

Kompozitné okná predstavujú súčasnosť a budúcnosť

Okenné profily z kompozitného materiálu RAU-FIPRO X od spoločnosti Rehau sú v porovnaní s tradičnými plastovými profilmi mnohonásobne...

Myotis - stoly 2025

Najnovší sortiment stolov pre zariadenie interiérov...

Priemyselné sklenené priečky Dorsis Digero: svetelné rozhranie pre moderné interiéry

Spojenie moderného dizajnu, funkčnosti a svetla do harmonického architektonického prvku.

Význam prirodzeného svetla pre moderné a flexibilné pracovné prostredie

Kancelárska budova Baumit v slovinskom Trzine prešla premenou na moderné a udržateľné pracovisko. Architekti kládli dôraz...

Konferencia Xella Dialóg predstaví novinky a trendy v stavebníctve

Mottom šiesteho ročníku on-line konferencie odborníkov Xella Dialóg je Efektívny návrh budov 2025+: zmeny a riešenia

UMPRUM – Technologické centrum Mikulandská, Praha

Živá súčasť širšieho centra mesta.
Diela
Red 325.12.2023
9490+18
UMPRUM – Technologické centrum Mikulandská, Praha
Autori: Ivan Kroupa, Jana Moravcová, Tomáš ZmekInvestor: Vysoká škola uměleckoprůmyslová v PrazeZastavaná plocha: 2 025 m2Obostavaný objem: 57 150 m3Investičný náklad: 20 mil € + 4 mil. € technické vybavenieNávrh: 2012 - 2020Realizácia: 2019 - 2021Adresa: Mikulandská 134/5, Praha, SlovenskoPublikované: 25. december 2023

Nová budova UMPRUM vznikla transformáciou nevyužívanej základnej školy neďaleko Pražského Národného divadla. Technologické centrum na Mikulandskej ulici ponúka študentom najmä dielenské zázemie, ale dokáže zastrešiť aj výstavy a spoločenské akcie. Architektonické riešenie charakterizuje vynechanie vstupného segmentu eklektickej fasády. Hĺbkový rez objektom, vo väzbe na vertikálne komunikácie, otvára dianie na škole do verejného priestoru. Nová dispozícia rešpektuje historický systém modulov a traktov, priestorovú dominantu tvorí zastrešená dvorana. Budova je zavŕšená terasou s výhľadom na panorámu mesta, na ktorú by sa naraz zmestilo všetkých 500 študentov a 170 zamestnancov školy. Za návrhom nového technologického centra stojí architekt a pedagóg UMPRUM Ivan Kroupa, ktorý spolupracoval s Janou Moravcovou a Tomášom Zmekom.

Realizáciu bližšie predstavia autori:

Projekt uměleckých dílen naplňuje vizi UMPRUM jako integrované součásti centra města (fyzickými i nefyzickými aspekty), vizi kompaktní “nerozdělené” školy dvou budov (intelektuálního centra - ateliérů / technologického zázemí - uměleckých dílen). Vizi o nápravě situace (ztráta jednotlivých dílen v průběhu 90.let) a transformaci tradičního systému do podoby současné umělecké školy s respektem v mezinárodním kontextu. Podmínkou bylo zachování tradice, umístění v centru města, docházková vzdálenost.

Pro UMPRUM bylo vyřešení situace existenční nutností. Smysl má objekt pouze v případě zabezpečení kompletního technologického zázemí pro všechny obory. Značná část procesu projektování byla o minimalizaci prostorových nároků (racionální prostorové řešení, využití nejmodernějších technologií a vybavení) tak, aby byl objem instalovaný do lokální zástavbové struktury umístitelný (redukce původních 15 000 m2 na 8 000 m2). Výsledkem je rekonstrukce - dostavba , která si nenárokuje změnu na panoramatu města, která je při reorganizaci hmot funkční, ale zároveň integrovanou součástí lokální zástavby. Projekt drží původní výškovou hladinu zástavby, posunutým výrazem - tvaroslovím je přechodem mezi dvěma výškovými hladinami zástavby, přechodem mezi expresivní architekturou DRNu a zástavbou historickou.

Potvrzení společenské funkce UMPRUM, funkce studentské a umělecké komunity v centru Prahy generuje potřebu vnější komunikace a otevřenosti. Původní stav objektu (jeho morální stáří) takovou komunikaci neumožňoval, neodpovídal potřebám vztahu UMPRUM - město. Neodpovídal současným požadavkům pro moderní komunikaci. Přestavba to řeší podporou, zvýrazněním a otevřením hlavního vstupu. Vynecháním vstupního segmentu eklektické fasády přes celou její výšku dostane stará fasáda nový život. Architektonický zásah je součástí transformace fasády základní školy na fasádu školy vysoké. Průřez do hloubky objektu ve vazbě na racionální organizaci vnitřních komunikací předznamenává vnitřní funkci a život, otvírá je pro město. Stará fasáda dostane nový náboj, úpravou je zvýrazněna profilace fasády. 5% ztráta je kompenzována novou formou prezentace v souvislosti s plánovanými dočasnými uměleckými instalacemi v průřezu.

Vnitřní komunikační a prostorové uspořádání respektuje historický systém modulace a traktování, zapojuje do něj vnější vztahy dle potřeb současné školy a současného města. Chráněné dílenské prostory (přístupné pouze pro studenty a pedagogy příslušných uměleckých oborů) jsou v rovnováze s prostory otevřenými pro veřejnost v přízemí a v úrovni střešní roviny - otevřené, komunikační, ateliérové (bez strojního zařízení), výstavní, pobytové… prostory provázané s ulicí Mikulandskou, se zahradou a s historickým jádrem města jako celkem.

Princip zastřešené dvorany umožňuje realizaci velkých projektů a celoroční provoz školy na požadované úrovni. Technologické provozy jsou soustředěny do bočních křídel a lehké provozy situovány do středu dispozice. Jejich organizace umožňuje vstup přirozeného světla, vizuální propojení centrálních polotransparentních provozů.

Spolupráce hmotných konstrukcí s konstrukcemi lehkými je založena na původní geometrii, nezdůrazňuje přechody, tvoří kompaktní organismus, kde je užíváno obou kvalit současně. Nesentimentální prostupy nových konstrukcí skrz historické přinesou motivační pracovní a společenskou atmosféru moderní vysoké umělecké školy.

Projektový tým UMPRUM zvolil pro práci strategii, kdy byl projekt generován z nezbytných, objektivně potřebných parametrů. Všechny projektové kroky jsou takto zdůvodněny, projekt byl vytvořen městem - o co si řeklo a školou - o co si řekla, bez zbytečných ambicí autorů řešení. Architektonickými nástroji byly nefyzické a fyzické vazby s městem, ochrana města jako živého organismu, matematika a geometrie.

Foto: Peter Fabo
Foto: Peter Fabo
Foto: Peter Fabo
Foto: Peter Fabo
Foto: Peter Fabo
Foto: Peter Fabo
Foto: Peter Fabo
Foto: Peter Fabo
Foto: Peter Fabo
Foto: Peter Fabo
Foto: Peter Fabo
Foto: Peter Fabo
Foto: Peter Fabo
Situácia
SituáciaAutor: Ivan Kroupa architekti
Pohľad z ulice
Pohľad z uliceAutor: Ivan Kroupa architekti
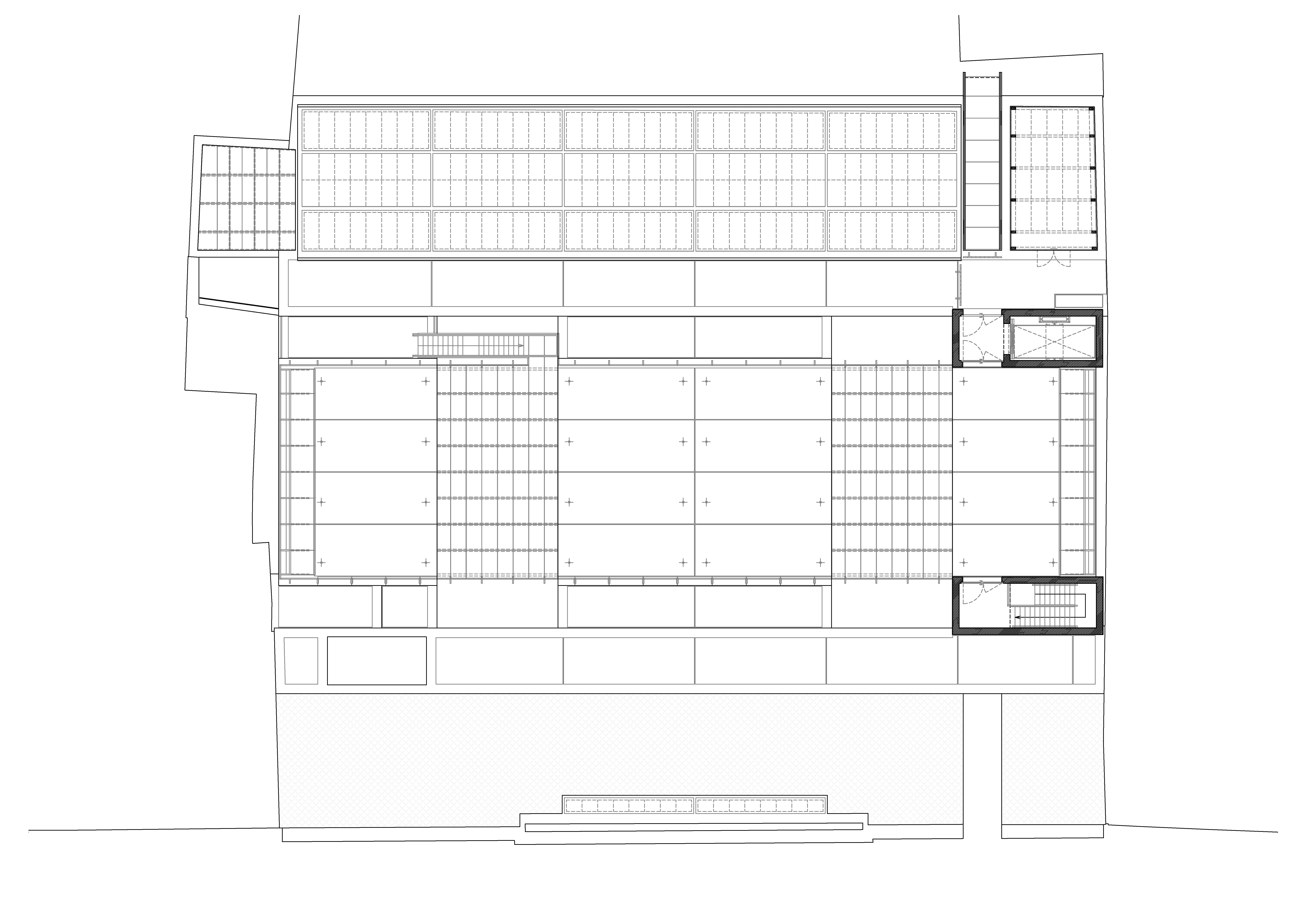
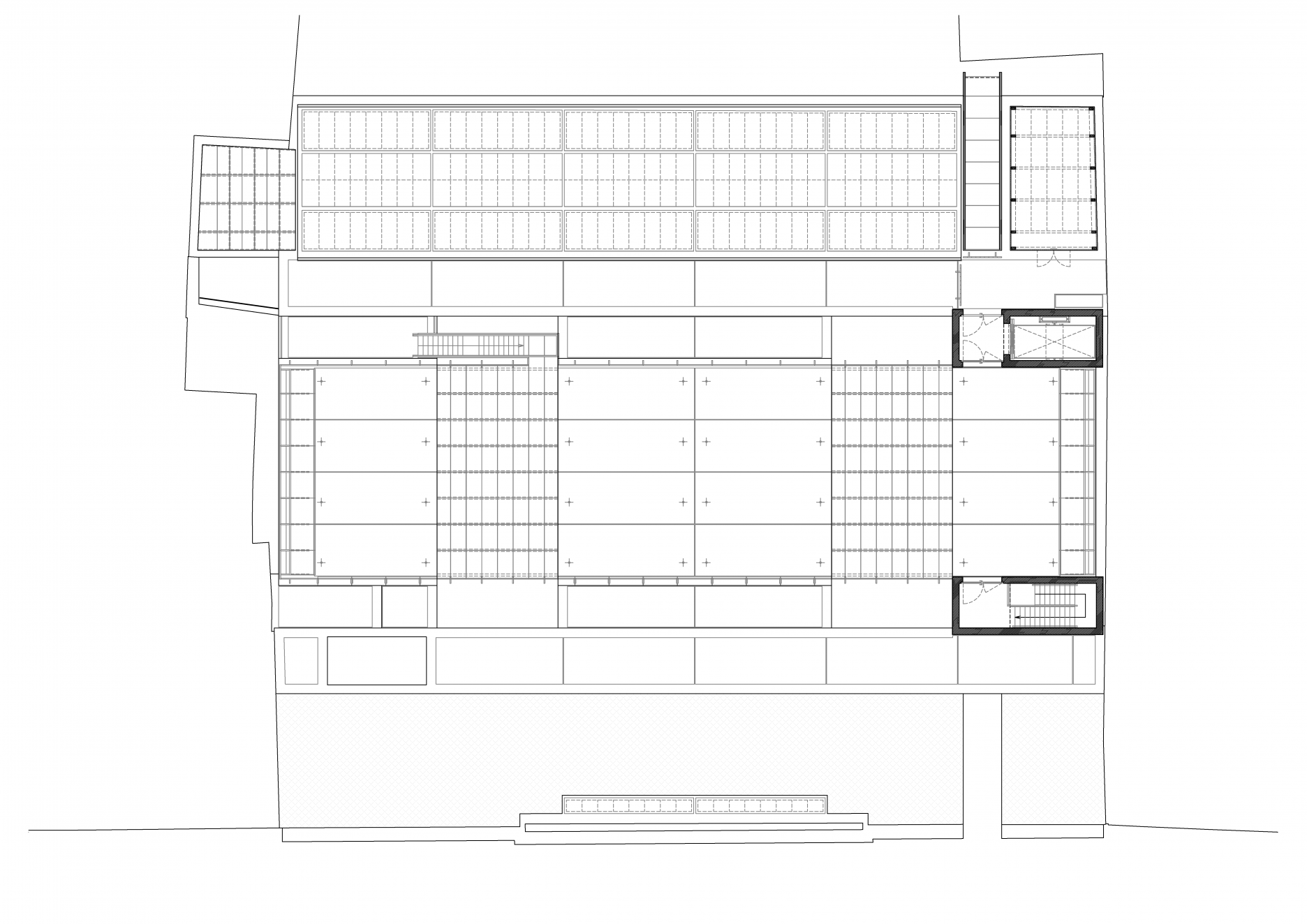
Priečny rez
Priečny rezAutor: Ivan Kroupa architekti
Pozdĺžny rez
Pozdĺžny rezAutor: Ivan Kroupa architekti
Pôdorys 2. PP
Pôdorys 2. PPAutor: Ivan Kroupa architekti
Pôdorys 1. PP
Pôdorys 1. PPAutor: Ivan Kroupa architekti
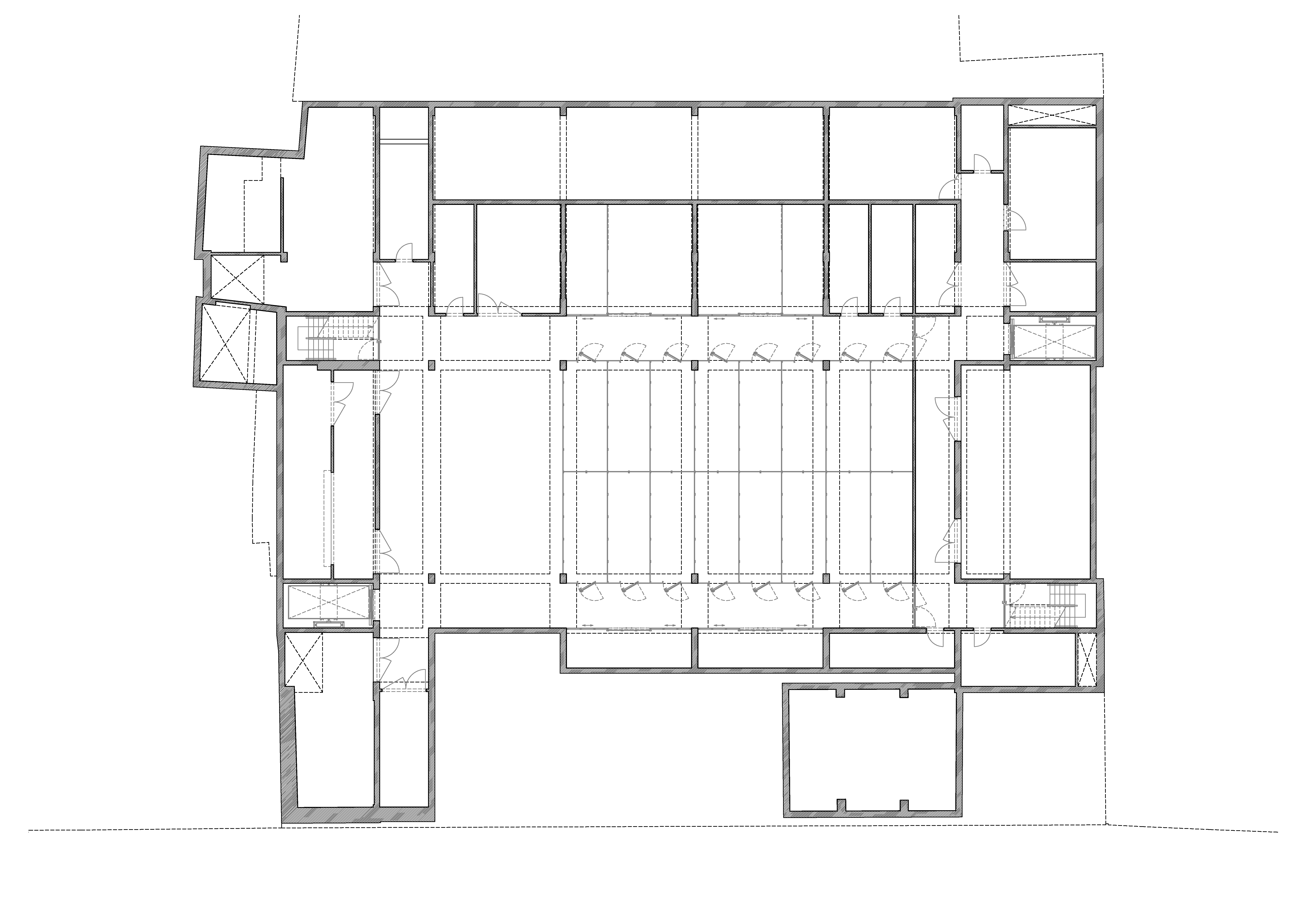
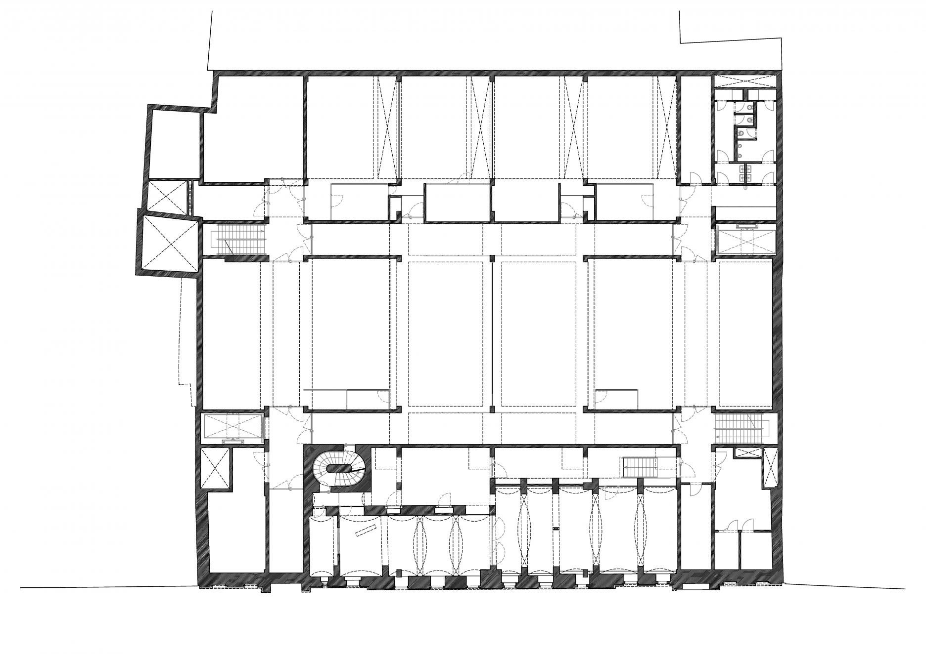
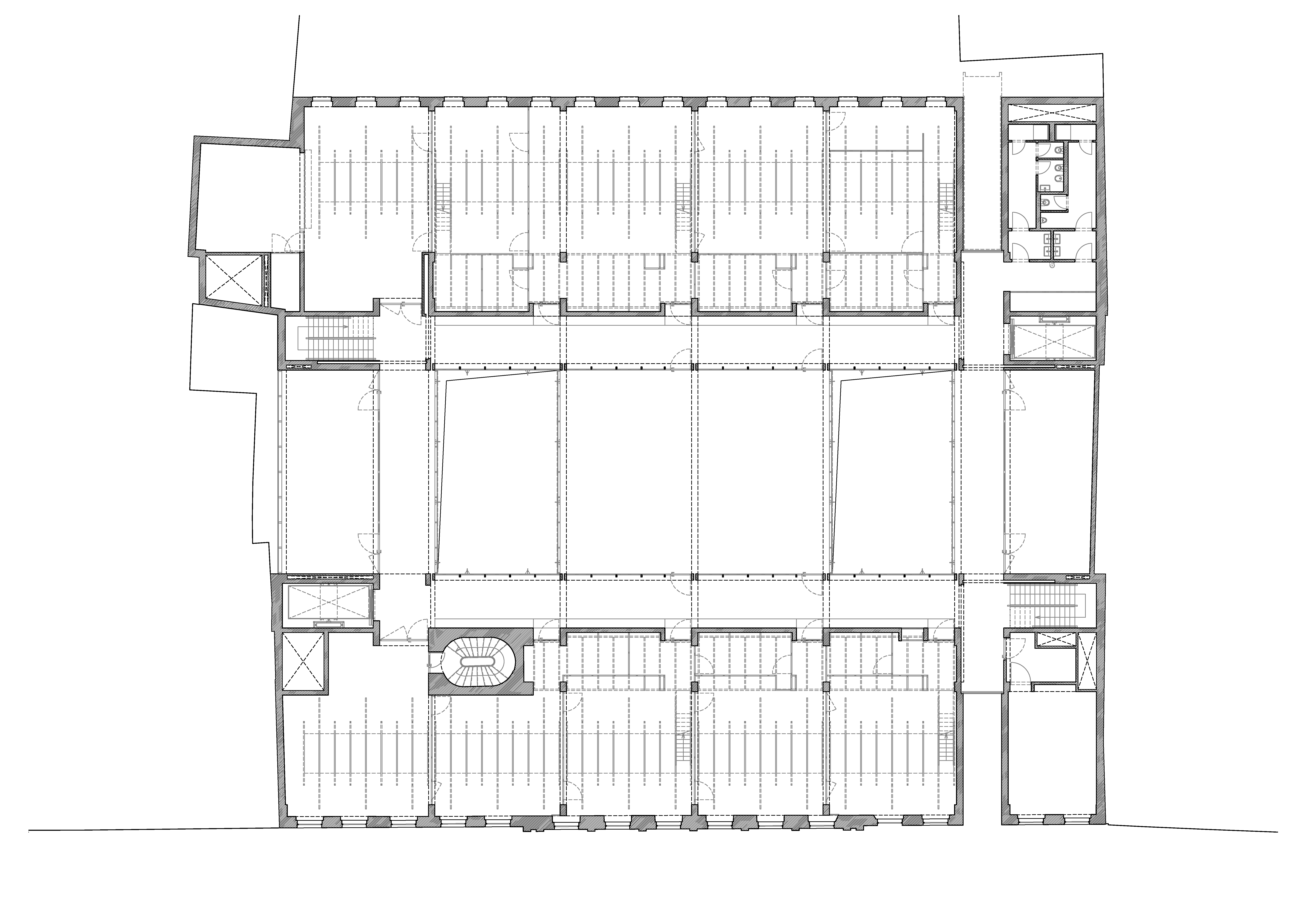
Pôdorys 1. NP
Pôdorys 1. NPAutor: Ivan Kroupa architekti
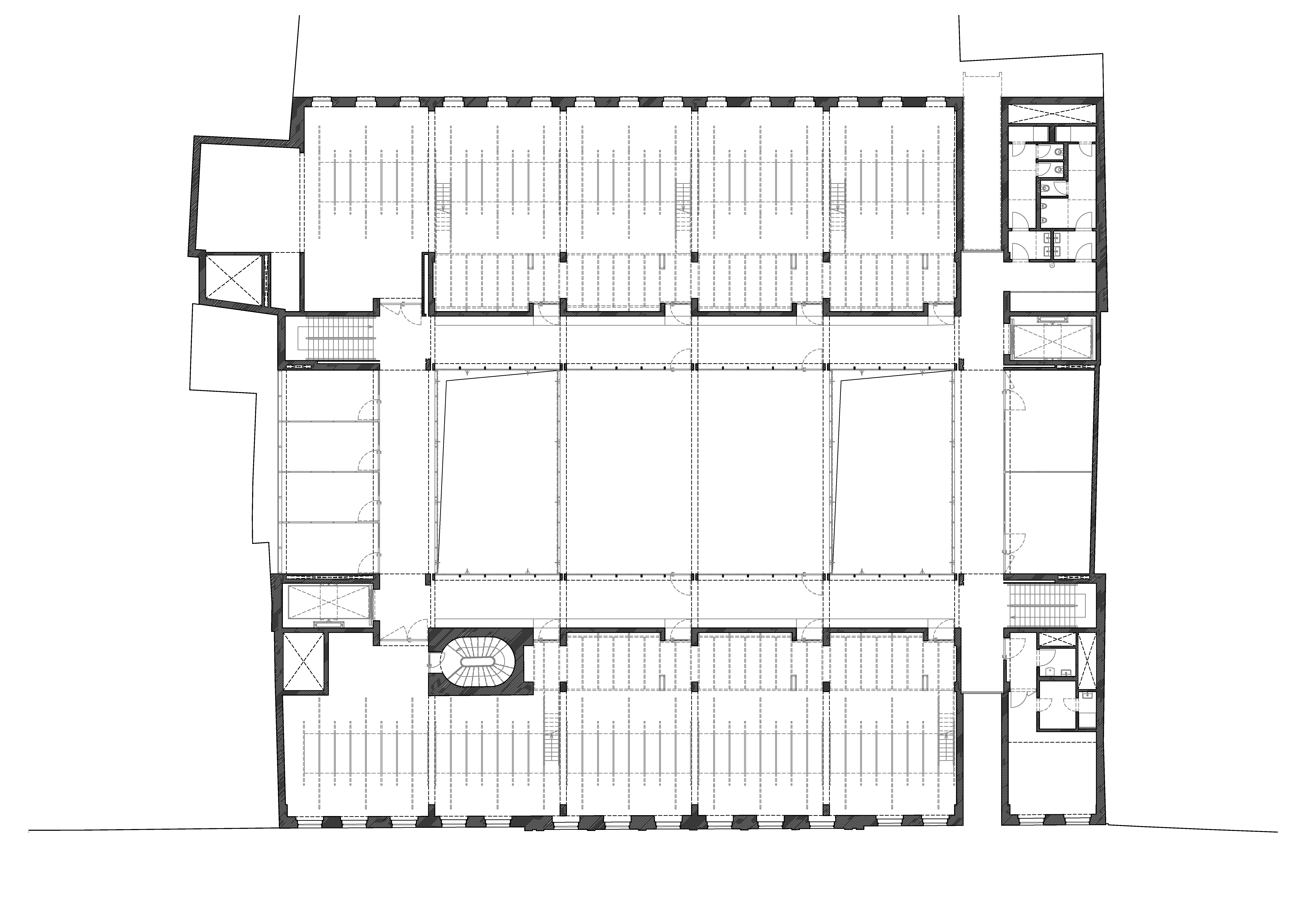
Pôdorys 2.NP
Pôdorys 2.NPAutor: Ivan Kroupa architekti
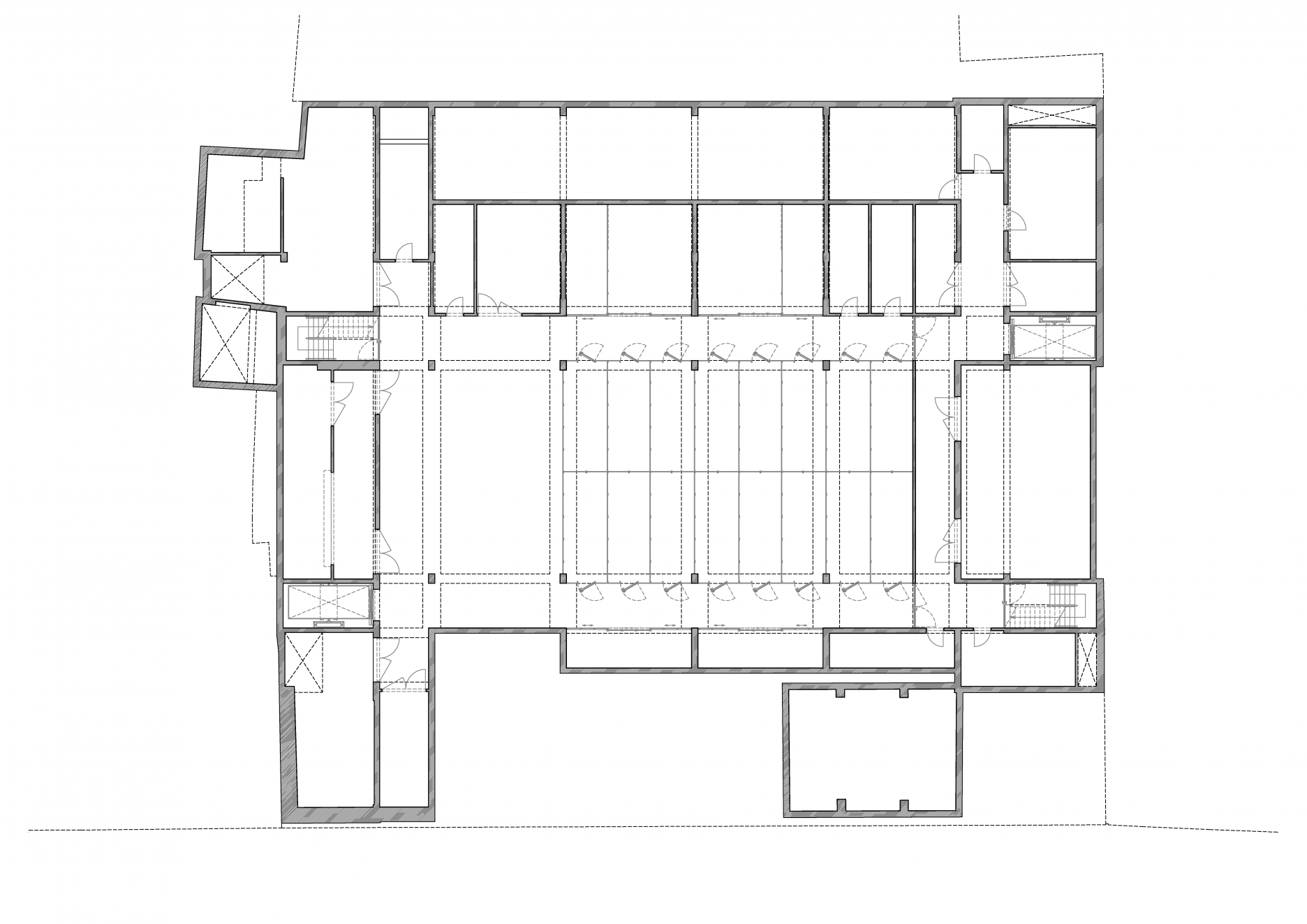
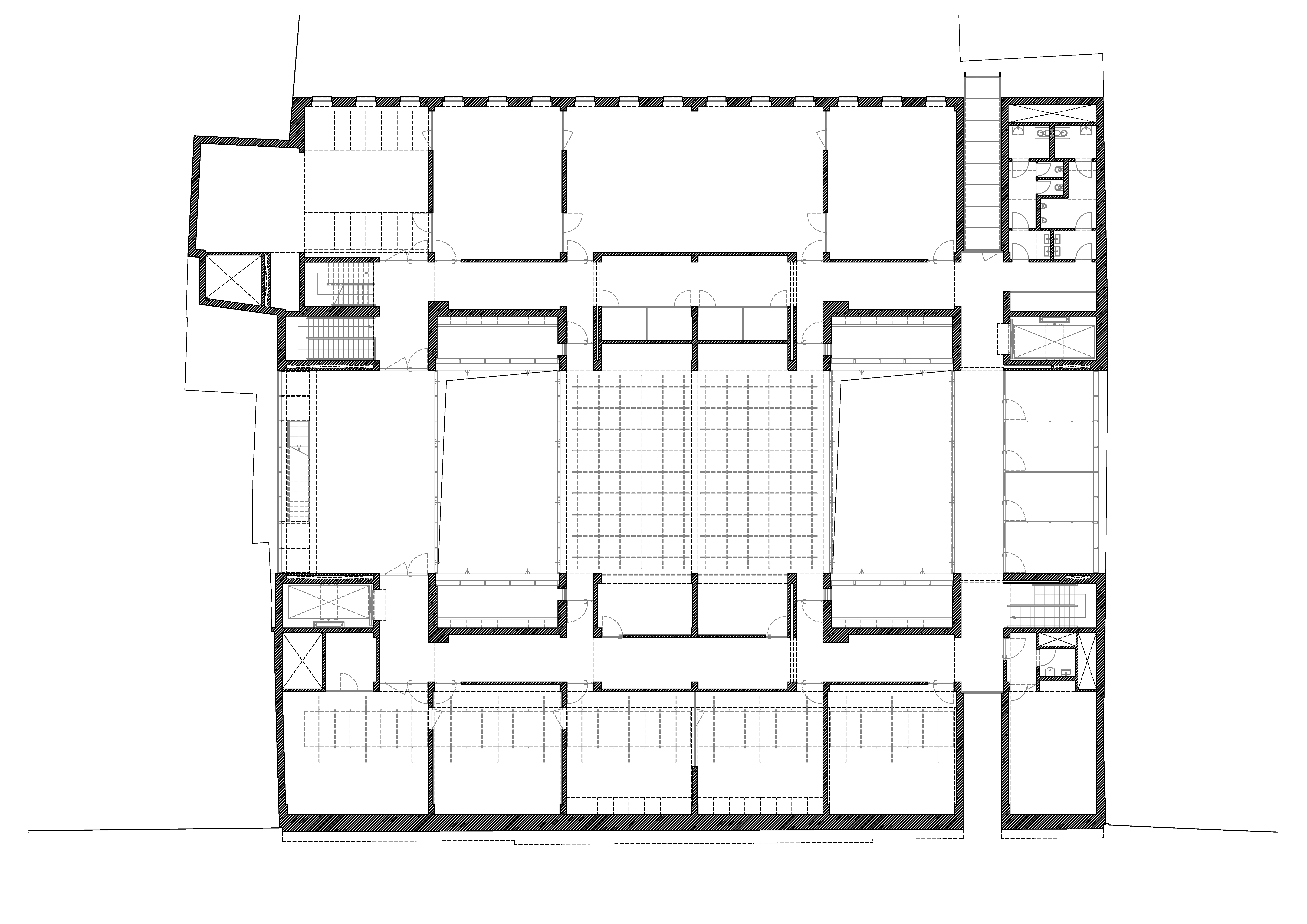
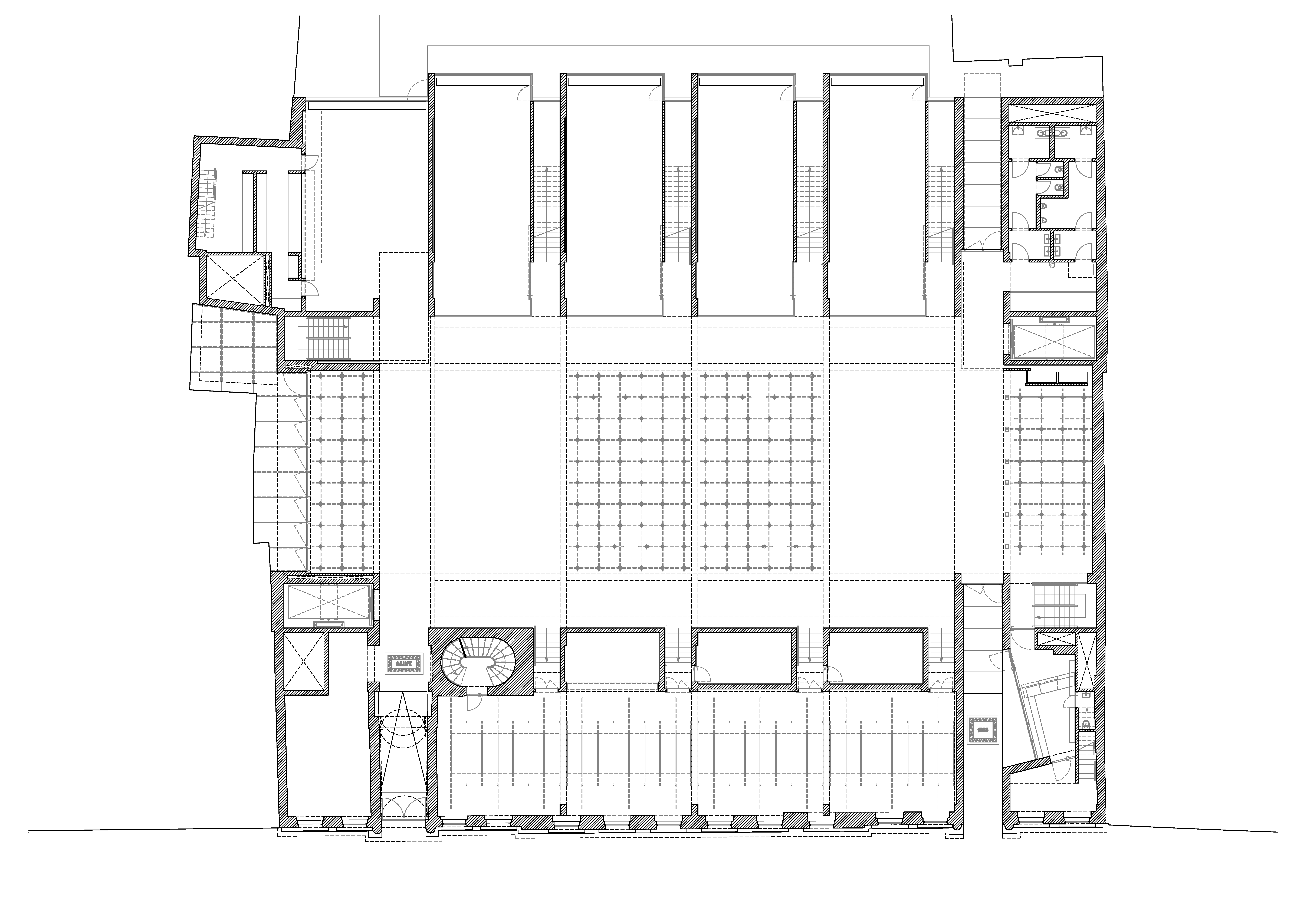
Pôdorys 3. NP
Pôdorys 3. NPAutor: Ivan Kroupa architekti
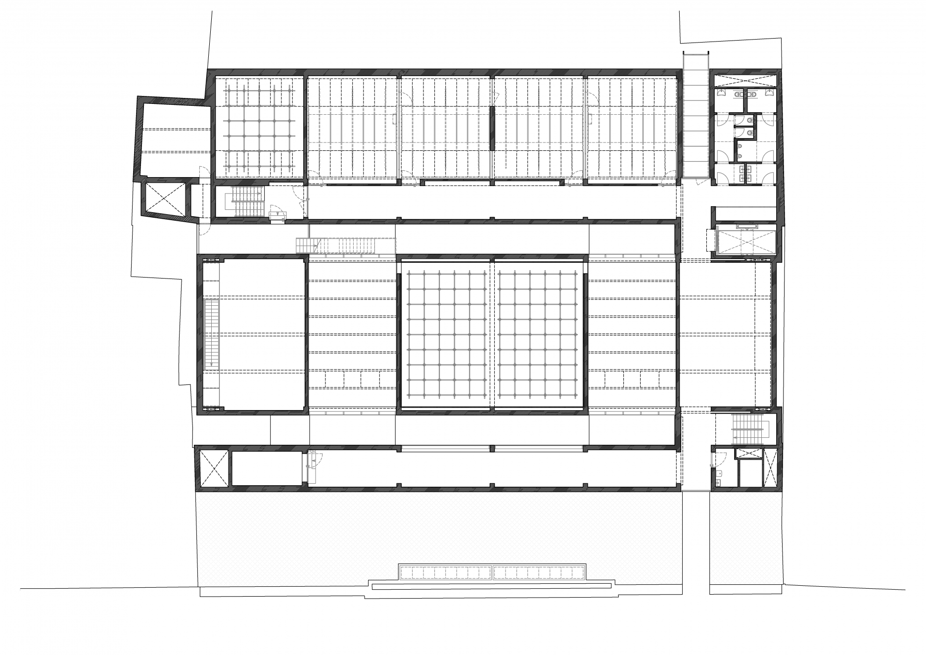
Pôdorys 4. NP
Pôdorys 4. NPAutor: Ivan Kroupa architekti
Pôdorys 5. NP
Pôdorys 5. NPAutor: Ivan Kroupa architekti
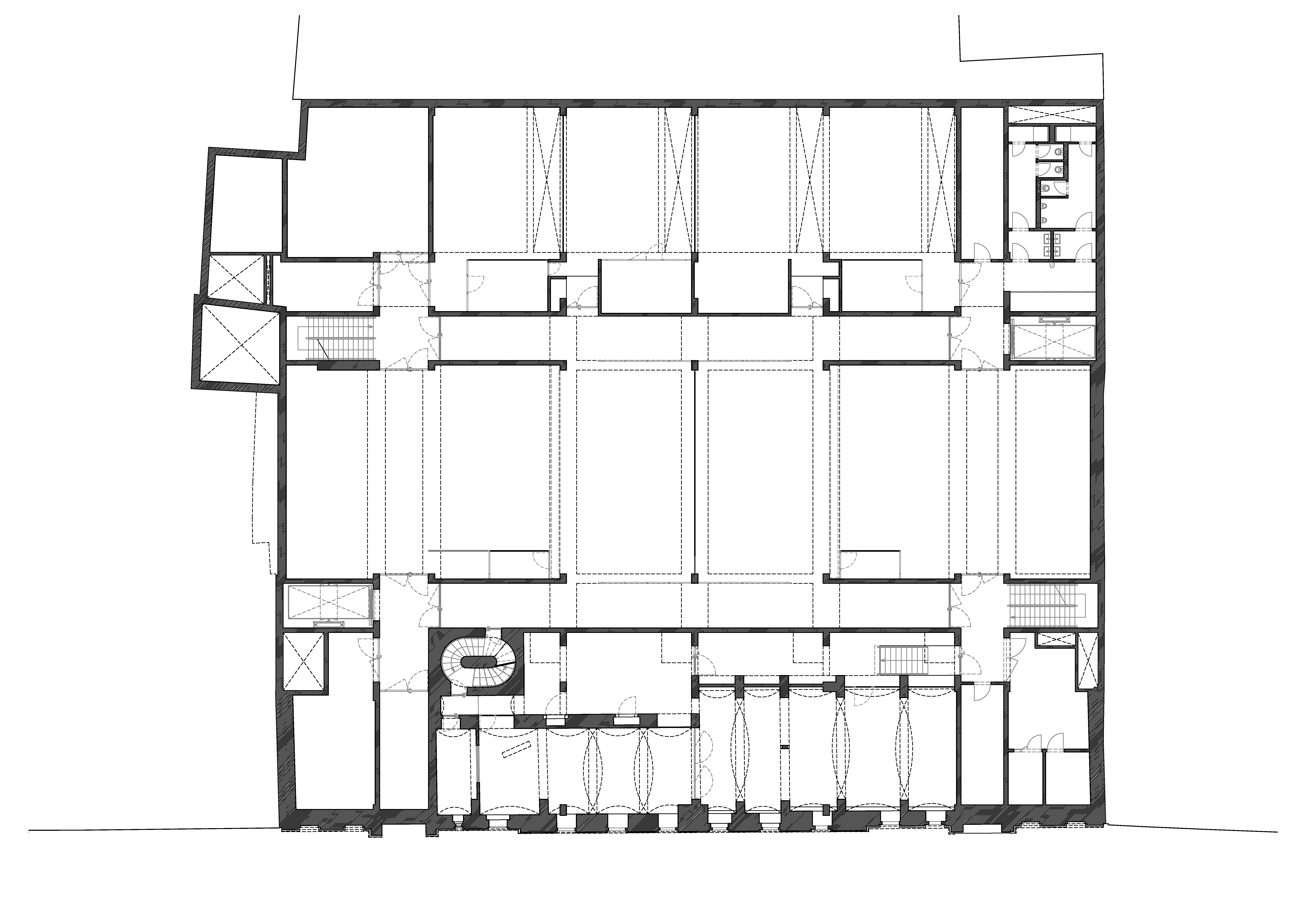
Pôdorys 6. NP
Pôdorys 6. NPAutor: Ivan Kroupa architekti

Podklady: Ivan Kroupa architekti
Fotografie: Peter Fabo

Poloha diela

Ivan Kroupa
Jana Moravcová
Tomáš Zmek

Súvisiace články

Vložené
13. október 2023
0
949
Hlavný obsahHlavný obsah
Čakajte prosím