Sumarizácia najdôležitejších inovácií, ktoré redefinujúcich využitie tohto energetického zdroja.
AMPHIBIA 3000 GRIP 1.3 od spoločnosti ATRO predstavuje modernú hydroizolačnú technológiu, ktorá spája vysokú odolnosť,...
Ambiciózne plány EK narazili na ekonomické možnosti domácností v jednotlivých členských štátoch –...
IDEA DOOR od spoločnosti JAP prináša do interiéru čistý minimalistický vzhľad vďaka bezrámovému riešeniu a precíznej...
Nástenné nadomietkové armatúry Vitus sú mimoriadne vhodné pre rýchlu a efektívnu...
Okenné profily z kompozitného materiálu RAU-FIPRO X od spoločnosti Rehau sú v porovnaní s tradičnými plastovými profilmi mnohonásobne...
Najnovší sortiment stolov pre zariadenie interiérov...
Spojenie moderného dizajnu, funkčnosti a svetla do harmonického architektonického prvku.
Kancelárska budova Baumit v slovinskom Trzine prešla premenou na moderné a udržateľné pracovisko. Architekti kládli dôraz...
Mottom šiesteho ročníku on-line konferencie odborníkov Xella Dialóg je Efektívny návrh budov 2025+: zmeny a riešenia
Robot WLTR predstavuje moderný prístup k murovaným konštrukciám. Vďaka automatizácii dokáže rýchlo, presne a bezpečne realizovať...
Okrem bezpečnosti majú okná aj elegantný vzhľad, pretože nie sú viditeľné žiadne uzamykacie časti kovania.
Dvere MASTER v skrytej zárubni AKTIVE je možné vyrobiť až do výšky 3 700 mm
Internorm stavia na energetickú efektívnosť a inteligentné tieniace riešenia.
Slovensko vo výbere zastupuje šesť realizácií.

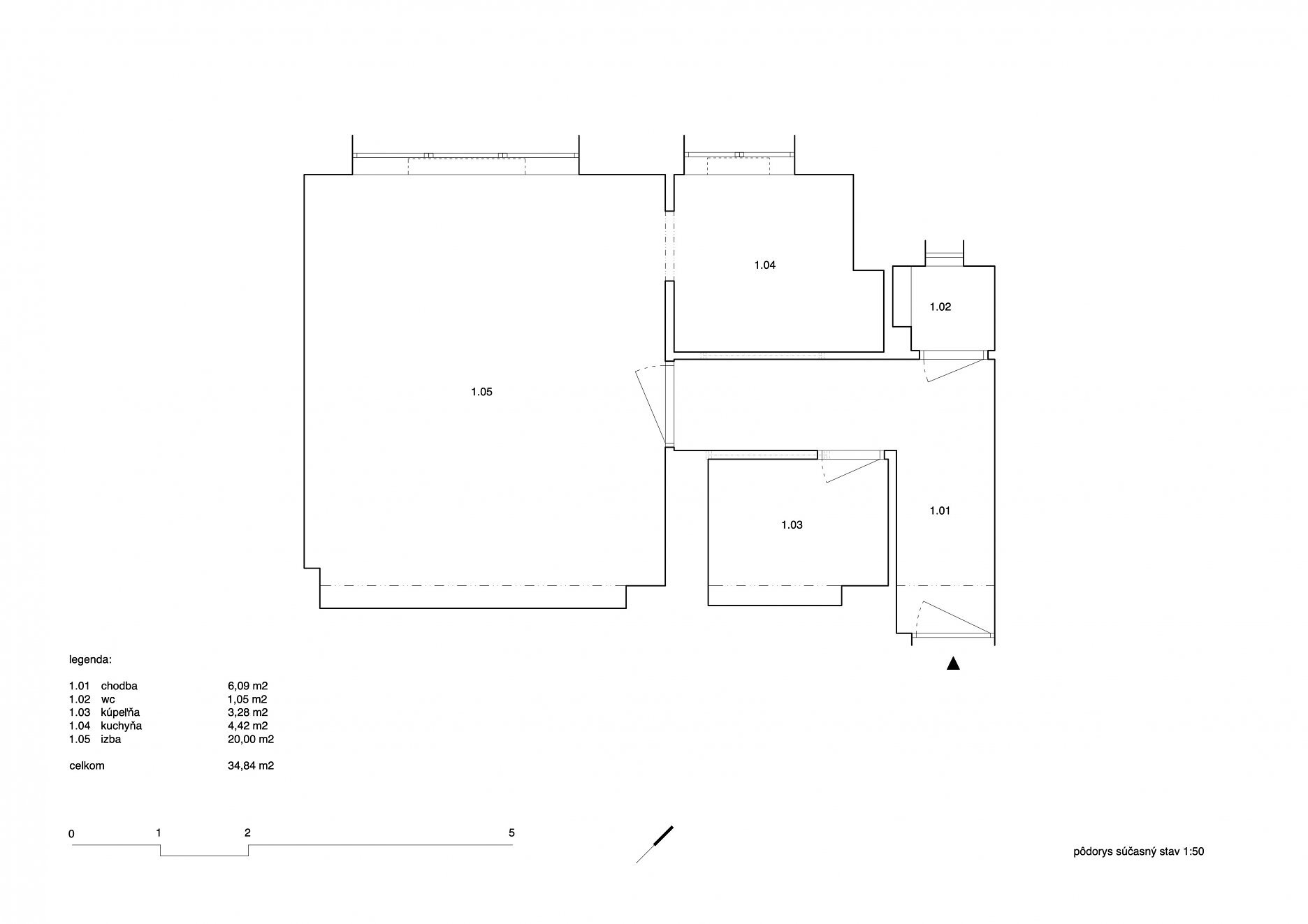
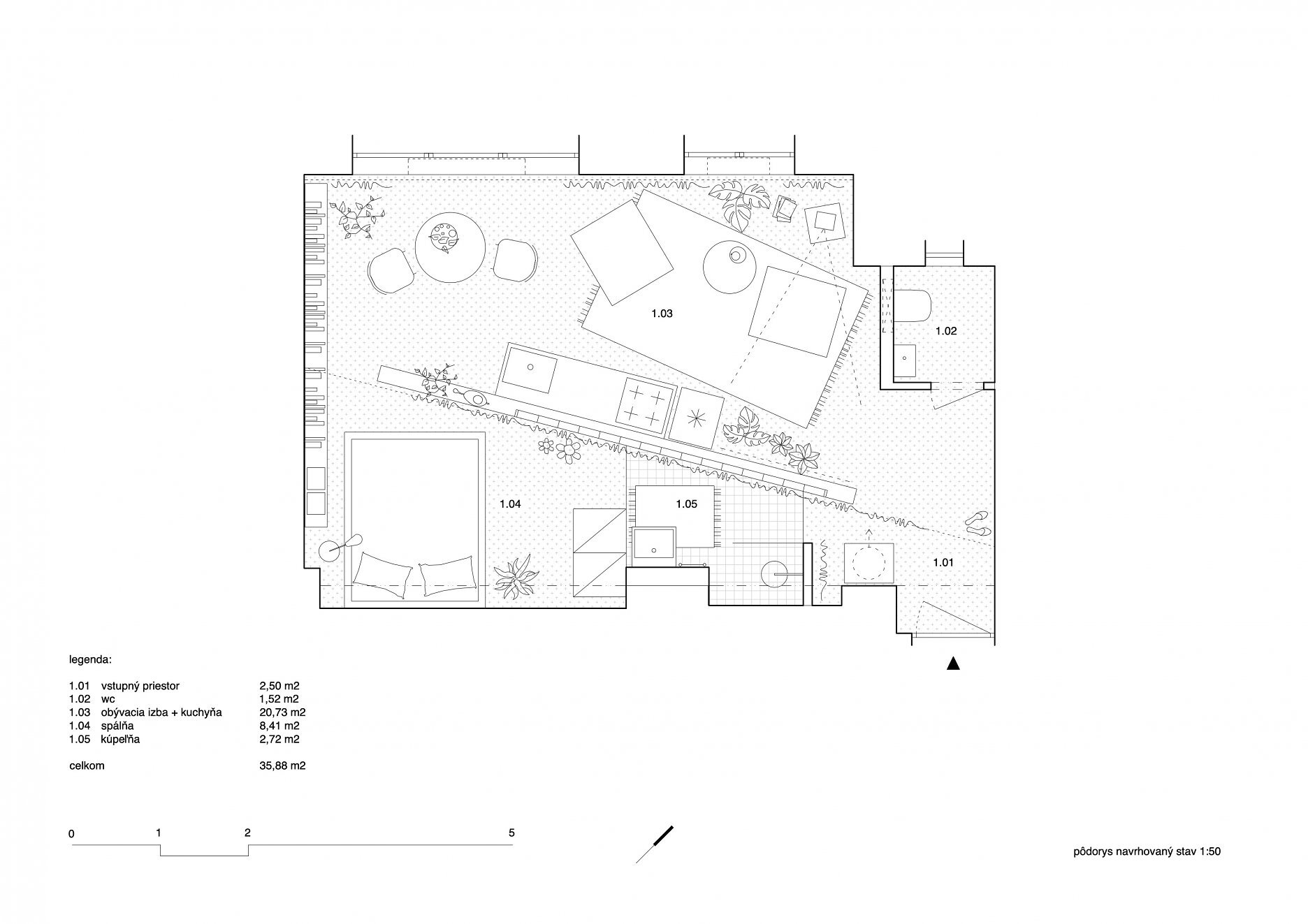
Pôvodný dispozičný labyrint bytu na Grösslingovej ulici, s výmerou iba 35 m2, sa pod taktovkou ateliéru KILO / HONČ sa zmenil na presvetlený životný priestor. Koncept bývania a prevádzková schéma umožňujú flexibilné využitie, nesú jasný rukopis autorov.
Realizáciu bližšie predstavia architekti Richard Kilo a Matej Honč:
Máme veľmi radi zadania, ktoré vo svojej finálnej podobe naučia niečo nás aj klientov. Tak ako v tomto prípade. Úžasná diskusia a spätná väzba, živé rozhovory, chuť posunúť sa o krok ďalej a vyskúsať nevyskúšané. Rozprávať sa hlavne o priestore, jeho osvetlení, priehľadoch a momentoch, ktoré ako celok vytvára. Ostatné len ako subtílne pozadie, ktoré v podstate zostáva nedopovedané.
Povedali sme si, že je dôležité svetlo. Nový, denný priestor malého bytu, ktorý bude mať dve krásne a veľké okná. V pôvodnej dispozícii prislúchalo každé okno jednej miestnosti, čím vznikla tmavá chodba. Navrhujeme svetlý priestor definovaný len fasádou domu a zo zadnej strany transparentnou sklobetónovou stenou. Za ňou sa nachádza všetko potrebné, aby sa v byte dalo komfortne fungovať - kúpeľna so sprchou, práčka, umývadlo, skrine a úložné priestory.
Spálňa je jediné miesto, ktoré je na pomedzí oboch svetov. Vo pozícii na konci bytu popred ňu už neprechádza sklobetónová stena, ale pokračuje iba betónový základ vo forme múriku a záves, ktoré jemne naznačujú, že sa nachádzame v intímnejšej časti bytu. Zároveň však vidíme von - na kuchyňu, jedáleň a premietacie plátno, pokiaľ chceme.
Fotografie východiskového stavu:
Autori: KILO / HONČ
Foto: Matej Hakár