Advertorial

Moderné plynové technológie: Efektivita a inovácie pre 21. storočie

Sumarizácia najdôležitejších inovácií, ktoré redefinujúcich využitie tohto energetického zdroja.

Utesňovanie spodných stavieb pomocou hydro-aktívnej fólie AMPHIBIA.

AMPHIBIA 3000 GRIP 1.3 od spoločnosti ATRO predstavuje modernú hydroizolačnú technológiu, ktorá spája vysokú odolnosť,...

Dekarbonizácia individuálneho vykurovania domácností – Green Deal evolučne a nie revolučne

Ambiciózne plány EK narazili na ekonomické možnosti domácností v jednotlivých členských štátoch –...

Minimalistické dvere IDEA – technická precíznosť a čistota prevedenia

IDEA DOOR od spoločnosti JAP prináša do interiéru čistý minimalistický vzhľad vďaka bezrámovému riešeniu a precíznej...

Schell Vitus – osvedčené riešenie pre sprchy a umývadlá vo verejnom sektore s viac ako desaťročnou tradíciou

Nástenné nadomietkové armatúry Vitus sú mimoriadne vhodné pre rýchlu a efektívnu...

Kompozitné okná predstavujú súčasnosť a budúcnosť

Okenné profily z kompozitného materiálu RAU-FIPRO X od spoločnosti Rehau sú v porovnaní s tradičnými plastovými profilmi mnohonásobne...

Myotis - stoly 2025

Najnovší sortiment stolov pre zariadenie interiérov...

Priemyselné sklenené priečky Dorsis Digero: svetelné rozhranie pre moderné interiéry

Spojenie moderného dizajnu, funkčnosti a svetla do harmonického architektonického prvku.

Význam prirodzeného svetla pre moderné a flexibilné pracovné prostredie

Kancelárska budova Baumit v slovinskom Trzine prešla premenou na moderné a udržateľné pracovisko. Architekti kládli dôraz...

Konferencia Xella Dialóg predstaví novinky a trendy v stavebníctve

Mottom šiesteho ročníku on-line konferencie odborníkov Xella Dialóg je Efektívny návrh budov 2025+: zmeny a riešenia

Murovací robot WLTR stavia svoj prvý dom na Slovensku

Robot WLTR predstavuje moderný prístup k murovaným konštrukciám. Vďaka automatizácii dokáže rýchlo, presne a bezpečne realizovať...

Nová éra bezpečnosti s I-tec Secure od Internorm

Okrem bezpečnosti majú okná aj elegantný vzhľad, pretože nie sú viditeľné žiadne uzamykacie časti kovania.

Skryté zárubne JAP – intenzívny zážitok z bývania

Dvere MASTER v skrytej zárubni AKTIVE je možné vyrobiť až do výšky 3 700 mm

Tienenie namiesto klimatizácie

Internorm stavia na energetickú efektívnosť a inteligentné tieniace riešenia.

BigMat International Architecture Award 2025 - vybrané diela

Slovensko vo výbere zastupuje šesť realizácií.

Loft Ludwigov mlyn, Bratislava

S miestom nad hlavou.
Diela
Red 316.02.2021
46320+58
Loft Ludwigov mlyn, Bratislava
Autori: Mgr. art. Ing. arch. Ondrej Kurek, Ing. arch. Tomáš KrištekSpolupráca: Ing. arch. Mária VaňurováNávrh: 2018 - 2018Realizácia: 2018 - 2019Adresa: Metodova , Bratislava - Ružinov, SlovenskoPublikované: 16. február 2021

Adaptácie industriálnych objektov často umožňujú využiť ich nenapodobiteľnú priestorovú kvalitu. Pri prevládajúcich novostavbách, ktoré vznikajú vo svetle dnešných štandardov a kritérií je štvormetrová svetlá výška vzácnym východiskom… 

Bratislavský ateliér What Architects. už v minulosti ukázal pri podobných zadaniach cit pre prácu s priestorom a využitie potenciálu pôvodných bytov. Za spomenutie stojí Prízemný byt pri kalvárii (laureát CE ZA AR 2018) a Storočný byt v bratislavskom Starom Meste.

Loft je súčasťou domu, ktorý vznikol prestavbou bývalého “Skladu C”, jednej z dvojice zachovaných budov kedysi rozsiahleho areálu Ludwigovho mlyna. Pôvodná budova bola dokončená v roku 1934, podľa návrhu architektov Cyrila Urbana a Juraja Tvarožka. Aj keď nedávna konverzia a nadstavba výrazne zmenila tvár objektu, charakteristické zošikmené trámy železobetónového stropu, dimenzie otvoreného priestoru aj drevené nosníky a záklop stále ostávajú súčasťou interiéru a formujú jeho identitu.

Návrh ateliéru What Architects prostredníctvom ľahkej vloženej oceľovej konštrukcie rozvíja bývanie na dvoch úrovniach. Dôležité je minimum pohľadových bariér a celistvé pôsobenie priestoru. Zjednocujúca biela farba necháva vyniknúť kresbu dreva a nové nábytkové solitéry. Prevláda poctivá materialita, priznané štruktúry a povrchy... 

Foto: Nora a Jakub Čaprnkovci
Foto: Nora a Jakub Čaprnkovci
Foto: Nora a Jakub Čaprnkovci

Viac slovami autorov:

Obnažený skelet bývalého Skladu C z roku 1934 zostáva v našom návrhu priznaný. Do industriálneho objektu vkladáme dve úrovne bývania: prízemie slúži ako denná zóna a na úrovni vloženého medzistropu je situovaná spálňa s pracovňou. Pod prostú oceľovú konštrukciu vkladaného mezanínu sme umiestnili zázemie bytu - kúpeľňu, kuchyňu a šatník. Veľkorysému priestoru dennej zóny dominuje betónový stĺp s atypickým zošikmeným nosníkom v sprievode pôvodného dreveného trámového stropu. Okennú fasádu dopĺňame vysokou vstavanou knižnicou.

Axonometria
AxonometriaAutor: What architects.
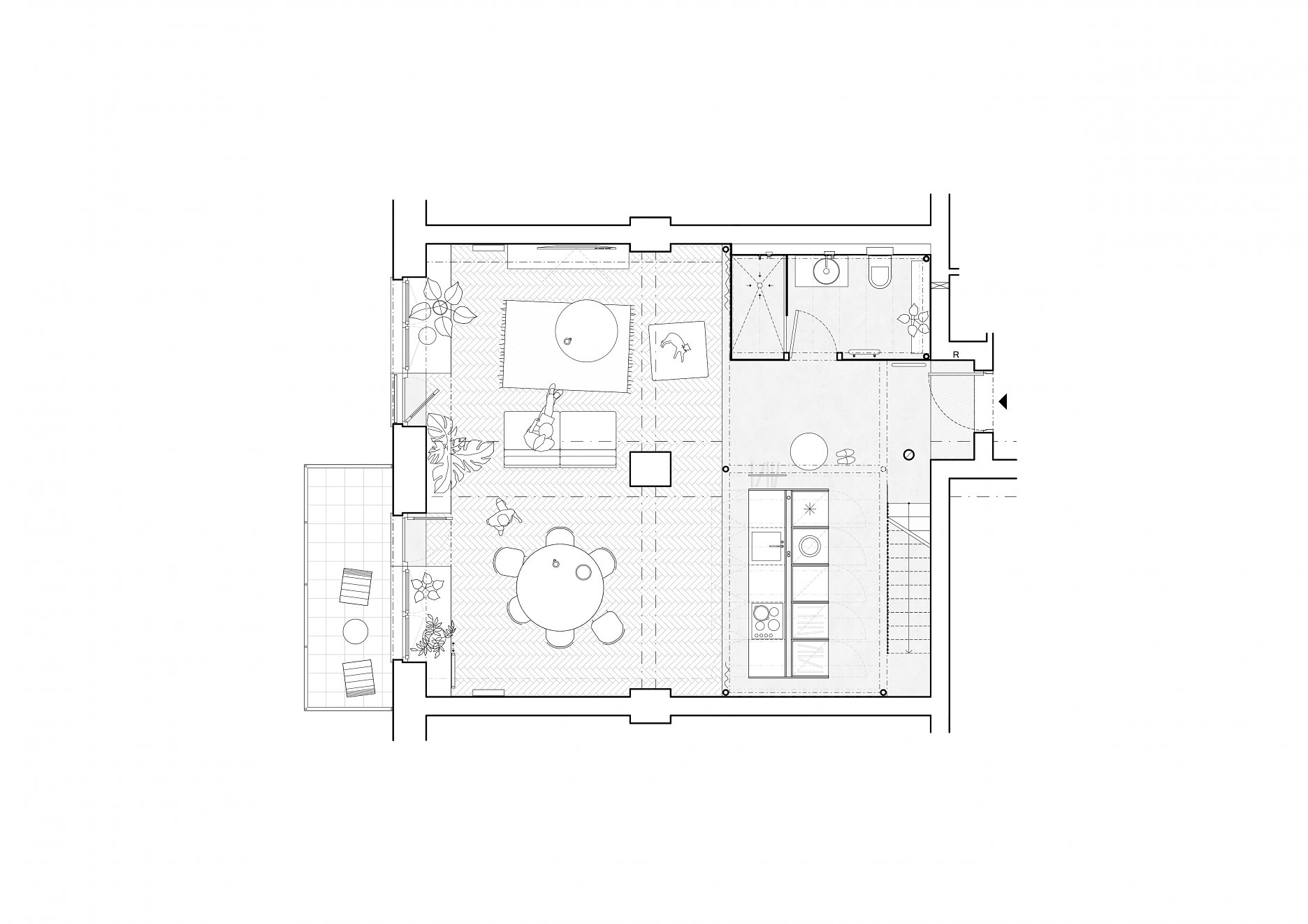
Pôdorys
PôdorysAutor: What architects.
Pôdorys mezanínu
Pôdorys mezanínuAutor: What architects.
Rez
RezAutor: What architects.
Foto: Nora a Jakub Čaprnkovci
Foto: Nora a Jakub Čaprnkovci
Foto: Nora a Jakub Čaprnkovci
Foto: Nora a Jakub Čaprnkovci
Foto: Nora a Jakub Čaprnkovci
Foto: Nora a Jakub Čaprnkovci
Foto: Nora a Jakub Čaprnkovci
Foto: Nora a Jakub Čaprnkovci
Foto: Nora a Jakub Čaprnkovci
Foto: Nora a Jakub Čaprnkovci
Foto: Nora a Jakub Čaprnkovci
Foto: Nora a Jakub Čaprnkovci
Foto: Nora a Jakub Čaprnkovci
Foto: Nora a Jakub Čaprnkovci

Poloha diela

Mgr. art. Ing. arch. Ondrej Kurek
Ing. arch. Tomáš Krištek

Súvisiace články

Vložené
10. február 2021
0
4632
Hlavný obsahHlavný obsah
Čakajte prosím