Sumarizácia najdôležitejších inovácií, ktoré redefinujúcich využitie tohto energetického zdroja.
AMPHIBIA 3000 GRIP 1.3 od spoločnosti ATRO predstavuje modernú hydroizolačnú technológiu, ktorá spája vysokú odolnosť,...
Ambiciózne plány EK narazili na ekonomické možnosti domácností v jednotlivých členských štátoch –...
IDEA DOOR od spoločnosti JAP prináša do interiéru čistý minimalistický vzhľad vďaka bezrámovému riešeniu a precíznej...
Nástenné nadomietkové armatúry Vitus sú mimoriadne vhodné pre rýchlu a efektívnu...
Okenné profily z kompozitného materiálu RAU-FIPRO X od spoločnosti Rehau sú v porovnaní s tradičnými plastovými profilmi mnohonásobne...
Najnovší sortiment stolov pre zariadenie interiérov...
Spojenie moderného dizajnu, funkčnosti a svetla do harmonického architektonického prvku.
Kancelárska budova Baumit v slovinskom Trzine prešla premenou na moderné a udržateľné pracovisko. Architekti kládli dôraz...
Mottom šiesteho ročníku on-line konferencie odborníkov Xella Dialóg je Efektívny návrh budov 2025+: zmeny a riešenia
Robot WLTR predstavuje moderný prístup k murovaným konštrukciám. Vďaka automatizácii dokáže rýchlo, presne a bezpečne realizovať...
Okrem bezpečnosti majú okná aj elegantný vzhľad, pretože nie sú viditeľné žiadne uzamykacie časti kovania.
Dvere MASTER v skrytej zárubni AKTIVE je možné vyrobiť až do výšky 3 700 mm
Internorm stavia na energetickú efektívnosť a inteligentné tieniace riešenia.
Slovensko vo výbere zastupuje šesť realizácií.

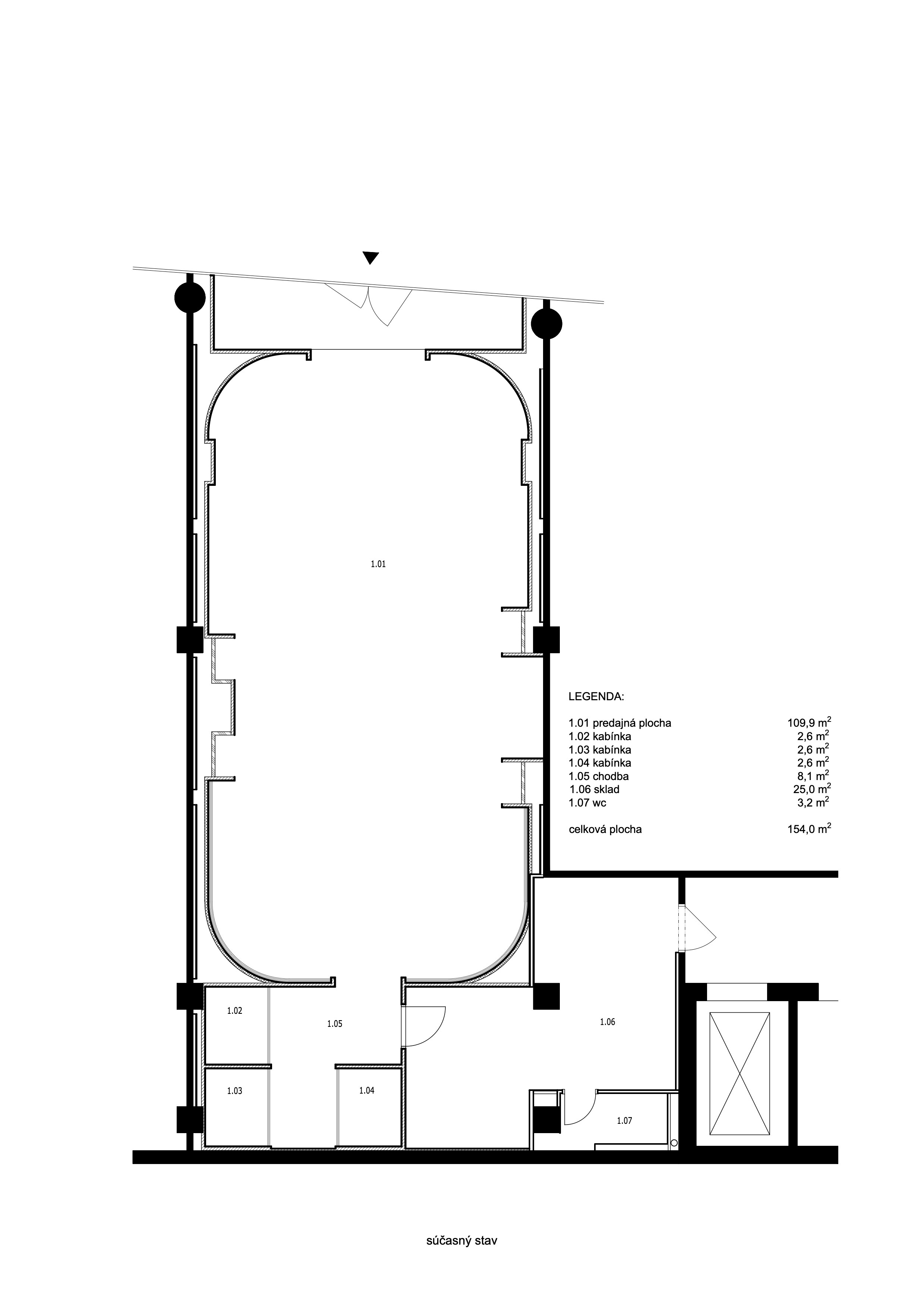
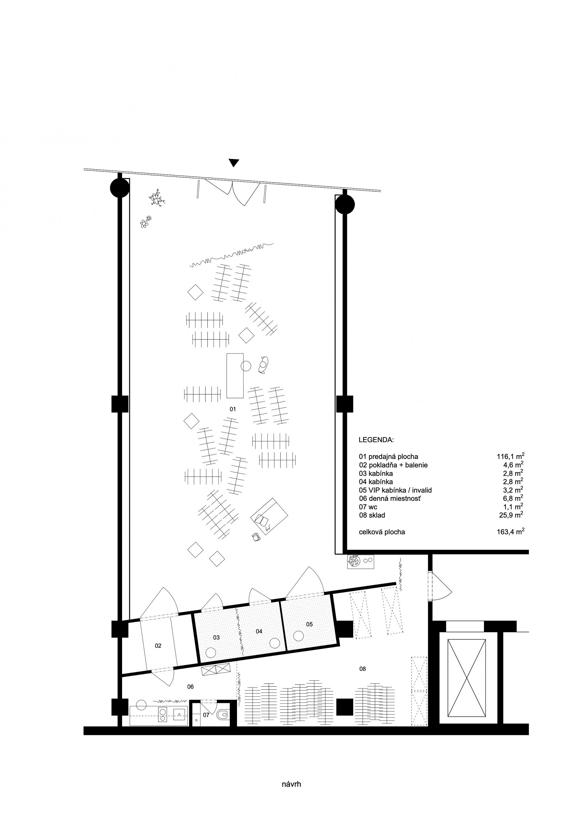
Oživená módna značka NEHERA nadviazala na prvorepublikové dedičstvo priemyselníka Jana Neheru a v programovej inklinácii k dizajnérskej striedmosti začala šiť dámsku módu. K predajni vo Viedni nedávno pribudla vlajková prevádzka v bratislavskej Eurovei. V štandardných priestoroch nákupného centra sa autorom podarilo zrealizovať striedmu a zároveň atraktívnu kulisu, korešpondujúcu s étosom značky.
Realizáciu bližšie predstaví sprievodný text architektov z ateliéru KILO / HONČ:
Udržateľnosť v architektúre a móde patrí medzi prirodzené princípy, ktorých podstatné vlastnosti chceme a vieme zachovať. Preto sa zameriavame na hlbšie pochopenie prostredia a sociálneho aspektu projektov, predstavujúce hlavnú podstatu tejto témy.
Základným konceptom riešenia priestoru je poukázať na naratívy, neodmysliteľne zastúpené v diele spoločnosti. Jemnosť, krása, prirodzenosť a udržateľnosť. Aj preto NEHERA nepotrebuje interiérový dizajn. NEHERA je dizajn.
Obchodný priestor vytvára vzťahy, pracuje so zážitkom, podnecuje. Je inšpirujúci, živý, prirodzený, esenciálny a komunikatívny. Opiera sa o kontrasty a pracuje s dramaturgiou. Forma je výsledkom udržiavania kľúčových vlastností a hľadania podstaty, nie presného typu.
Koncept predajne vznikol vďaka spolupráci troch subjektov – značky NEHERA, agentúry JANDL a ateliéru KILO / HONČ.
Autori: KILO / HONČ
Foto: Matej Hakár