IDEA DOOR od spoločnosti JAP prináša do interiéru čistý minimalistický vzhľad vďaka bezrámovému riešeniu a precíznej...
Nástenné nadomietkové armatúry Vitus sú mimoriadne vhodné pre rýchlu a efektívnu...
Okenné profily z kompozitného materiálu RAU-FIPRO X od spoločnosti Rehau sú v porovnaní s tradičnými plastovými profilmi mnohonásobne...
Najnovší sortiment stolov pre zariadenie interiérov...
Spojenie moderného dizajnu, funkčnosti a svetla do harmonického architektonického prvku.
Kancelárska budova Baumit v slovinskom Trzine prešla premenou na moderné a udržateľné pracovisko. Architekti kládli dôraz...
Mottom šiesteho ročníku on-line konferencie odborníkov Xella Dialóg je Efektívny návrh budov 2025+: zmeny a riešenia
Robot WLTR predstavuje moderný prístup k murovaným konštrukciám. Vďaka automatizácii dokáže rýchlo, presne a bezpečne realizovať...
Okrem bezpečnosti majú okná aj elegantný vzhľad, pretože nie sú viditeľné žiadne uzamykacie časti kovania.
Dvere MASTER v skrytej zárubni AKTIVE je možné vyrobiť až do výšky 3 700 mm
Internorm stavia na energetickú efektívnosť a inteligentné tieniace riešenia.
Slovensko vo výbere zastupuje šesť realizácií.
Spoločnosť Internorm odteraz stavia na novej variante tepelnoizolačného skla od AGC, ktorá v produkcii ročne ušetrí 10...
Jubilejný 20. ročník prestížnej medzinárodnej súťaže pre študentov architektúry priniesol...
Otočné a posuvné dvere MASTER od podlahy až po strop, ponúkajú mimoriadnu variabilitu výšky, materiálu a zladenia so skrytými...

Výstavba v jednej z najväčších rezidenčných zón na Slovensku sa začala pred pätnástimi rokmi. Rozvoj celej zóny Slnečnice - Južné Mesto je od začiatku spojený s menom ateliéru Compass Architekti. V roku 2021 boli podľa návrhu bratislavského kolektívu v zóne Viladomy dokončené objekty S14 a S 15, ktoré uzavreli predposlednú stavebnú etapu tejto časti.
Zóna využíva potenciál lokality pre účely bývania v blízkosti rieky Dunaj a lužných lesov. Charakterizuje ju nižšia intenzita zástavby a viac zelene, ako v prípade časti Mesto. Drahšie byty s dôrazom na komunitný charakter bývania nadviazali na prvú (projekt získal cenu ARCH v roku 2013) a druhú etapu Viladomov. V prvej fáze vznikol uzavretý mestský blok s vnútorným poloverejným parkom. V druhej fáze zvolili architekti koncepciu mestských víl, medzi ktorými vznikol zaujímavý vyvýšený verejný priestor.
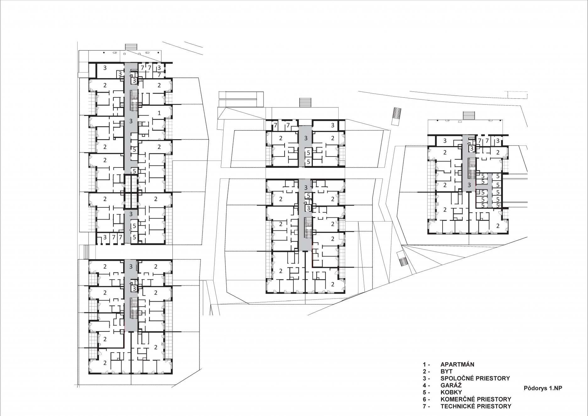
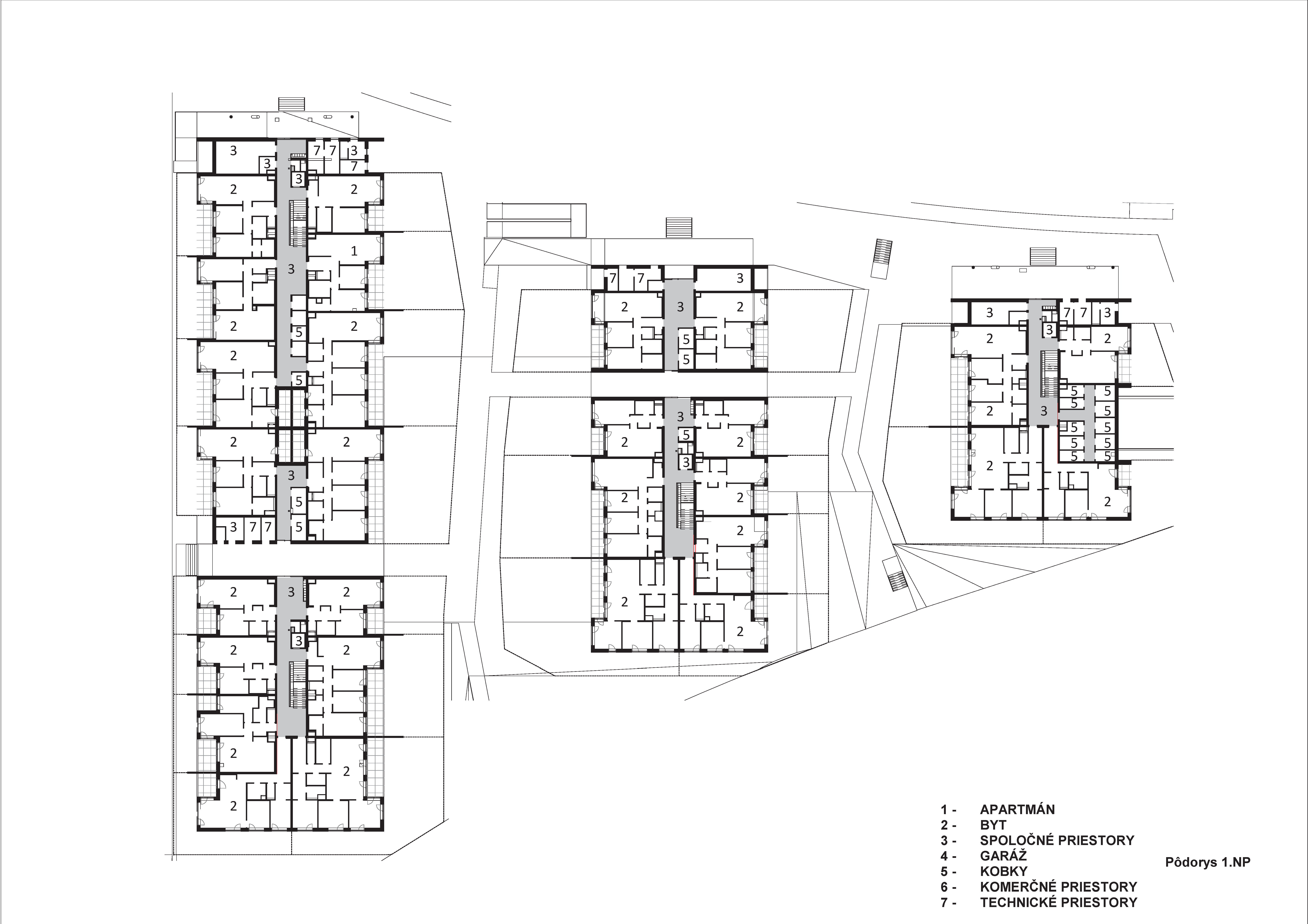
Tretia etapa (C3) nadväzuje na nastavený urbanizmus zóny, ktorá na severe susedí so zeleňou. Zástavbu vo vnútri zóny tvoria bodové domy s vnútroblokovou štruktúrou predzáhradok a parkom. Kompozičným ohniskom je centrálny priestor s členitým reliéfom, vzrastlou zeleňou a hlavnou pešou komunikáciou spájajúcou jednotlivé bytové bloky a park s detským ihriskom. Poloha obchodných priestorov bola zvolená vzhľadom na kľudový charakter prostredia a možnosť vytvorenia autonómnej vonkajšej plochy. Dôležitým aspektom architektonického konceptu je výrazné vertikálne členenie bytových domov, ktoré reflektuje ich vnútorné usporiadanie.
"Typologicky je Zóna C3 experimentom vo vertikálnom radení rôznych kvalít bývania. V partri je občianska vybavenosť a byty s predzáhradkami. Vyššie je úroveň mestského bývania vo vilových domoch. Dvojpodlažnú strešnú krajinu tvoria nadštandardné byty s terasami. Vertikálna gradácia typológie sa odráža v architektonickom riešení," vysvetľujú architekti.
Architektúra domov opäť nesie čitateľný rukopis ateliéru Compass Architekti. Charakteristické priebežné balkóny tvoria medzipriestor medzi živým exteriérom a intimitou bytov. Dynamický prvok do kompozície vnášajú paravány, ktoré sa osvedčili aj v prvej etape projektu. Ustúpené južné fasády objektov vytvárajú preslnené terasy. Monochromatická farebná schéma, oživená prírodnou farebnosťou dreva necháva vyniknúť štruktúru a materiál. Vertikálny reliéf omietky na najvyšších podlažiach opticky zjemňuje objem monobloku.
Projekt v číslach:
Podklady: Compass Architekti
Fotografie: DYNAMEET visual studio