Advertorial

Pozvánka na 2. ročník stavebného veľtrhu BigMarket na Slovensku

Na podujatí sa predstaví až 37 vystavovateľov - popredných dodávateľov stavebných materiálov a inovácií s prezentáciou...

Hotel Hirschen Spa House, Rakúsko

Novotvar v prostredí alpskej obce.

Vytvorte si kúpeľňu snov: dizajnové riešenie od značky hansgrohe

Hansgrohe - prémiová značka kúpeľňových riešení, ponúka nadčasový dizajn, technickú precíznosť a udržateľné inovácie...

Okná Internorm za minuloročné ceny + hliníkový kryt zdarma!

Využite špeciálnu akciu Internorm: okná za minuloročné ceny a hliníkový kryt úplne zadarmo. Ponuka je časovo obmedzená!

Moderné plynové technológie: Efektivita a inovácie pre 21. storočie

Sumarizácia najdôležitejších inovácií, ktoré redefinujúcich využitie tohto energetického zdroja.

Utesňovanie spodných stavieb pomocou hydro-aktívnej fólie AMPHIBIA.

AMPHIBIA 3000 GRIP 1.3 od spoločnosti ATRO predstavuje modernú hydroizolačnú technológiu, ktorá spája vysokú odolnosť,...

Dekarbonizácia individuálneho vykurovania domácností – Green Deal evolučne a nie revolučne

Ambiciózne plány EK narazili na ekonomické možnosti domácností v jednotlivých členských štátoch –...

Minimalistické dvere IDEA – technická precíznosť a čistota prevedenia

IDEA DOOR od spoločnosti JAP prináša do interiéru čistý minimalistický vzhľad vďaka bezrámovému riešeniu a precíznej...

Dom s výhľadom na údolie, Dlouhý Most (ČR)

Kontinuita riešenia od vonkajšieho obkladu až po kovania a kľučky.

Schell Vitus – osvedčené riešenie pre sprchy a umývadlá vo verejnom sektore s viac ako desaťročnou tradíciou

Nástenné nadomietkové armatúry Vitus sú mimoriadne vhodné pre rýchlu a efektívnu...

Kompozitné okná predstavujú súčasnosť a budúcnosť

Okenné profily z kompozitného materiálu RAU-FIPRO X od spoločnosti Rehau sú v porovnaní s tradičnými plastovými profilmi mnohonásobne...

Myotis - stoly 2025

Najnovší sortiment stolov pre zariadenie interiérov...

Priemyselné sklenené priečky Dorsis Digero: svetelné rozhranie pre moderné interiéry

Spojenie moderného dizajnu, funkčnosti a svetla do harmonického architektonického prvku.

Význam prirodzeného svetla pre moderné a flexibilné pracovné prostredie

Kancelárska budova Baumit v slovinskom Trzine prešla premenou na moderné a udržateľné pracovisko. Architekti kládli dôraz...

Konferencia Xella Dialóg predstaví novinky a trendy v stavebníctve

Mottom šiesteho ročníku on-line konferencie odborníkov Xella Dialóg je Efektívny návrh budov 2025+: zmeny a riešenia

Dom O - rekonštrukcia a prestavba polovice dvojdomu

Obohacujúca jednoduchosť. Menej prvkov. Menej farby. Viac rozumu. Lepšie využitie.
Diela
Red 306.02.2018
29090+27
Dom O - rekonštrukcia a prestavba polovice dvojdomu
Autori: Ing. arch. Andrej Olah, Dipl. Ing. Peter Olah, ArtD., Ing. arch. Filip MarčákNávrh: 2016 - 2017Realizácia: 2017 - 2017Adresa: Fialkové údolie , Bratislava, SlovenskoPublikované: 6. február 2018

"Polovica rodinného dvojdomu zmenila majiteľa a my sme mali možnosť spracovať jeho totálny retrofit. Pôvodne jedna bytová jednotka so zlými dispozíciami jednotlivých podlaží sa zmenila na tri samostatné byty, ktoré sú určené na prenájom," približuje projekt Andrej Olah.

Foto: Filip Marčák

Aj keď to navonok nie je na prvý pohľad zrejmé, dispozícia a prevádzka prešli výraznou zmenou.

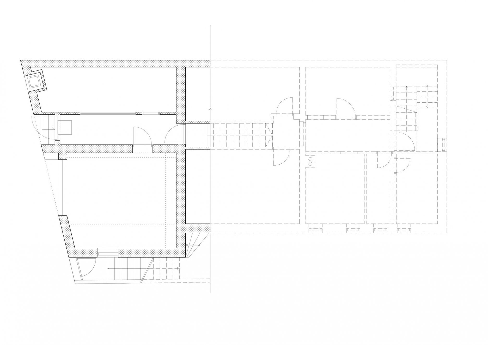
Axonometria a schematický rez
Axonometria a schematický rezAutor: GRAU

Zvonku sa však do značnej miery podarilo zachovať pôvodný architektonický výraz stavby. Členenie otvorov bolo zmenené len v nevyhnutnej miere, tak aby odrážalo zmeny vo funkcii a dispozícii. Monochromatické farebné riešenie s bledou omietkou a tmavými výplňami otvorov prispieva k lepšej čitateľnosti tektoniky fasády.

Foto: Filip Marčák

Okrem balkónov majú byty k dispozícii aj exteriérovým schodiskom sprístupnenú terasu na garáži a oddychovú záhradnú terasu so sedením v pokojnej časti za domom.

Foto: Filip Marčák
Foto: Filip Marčák

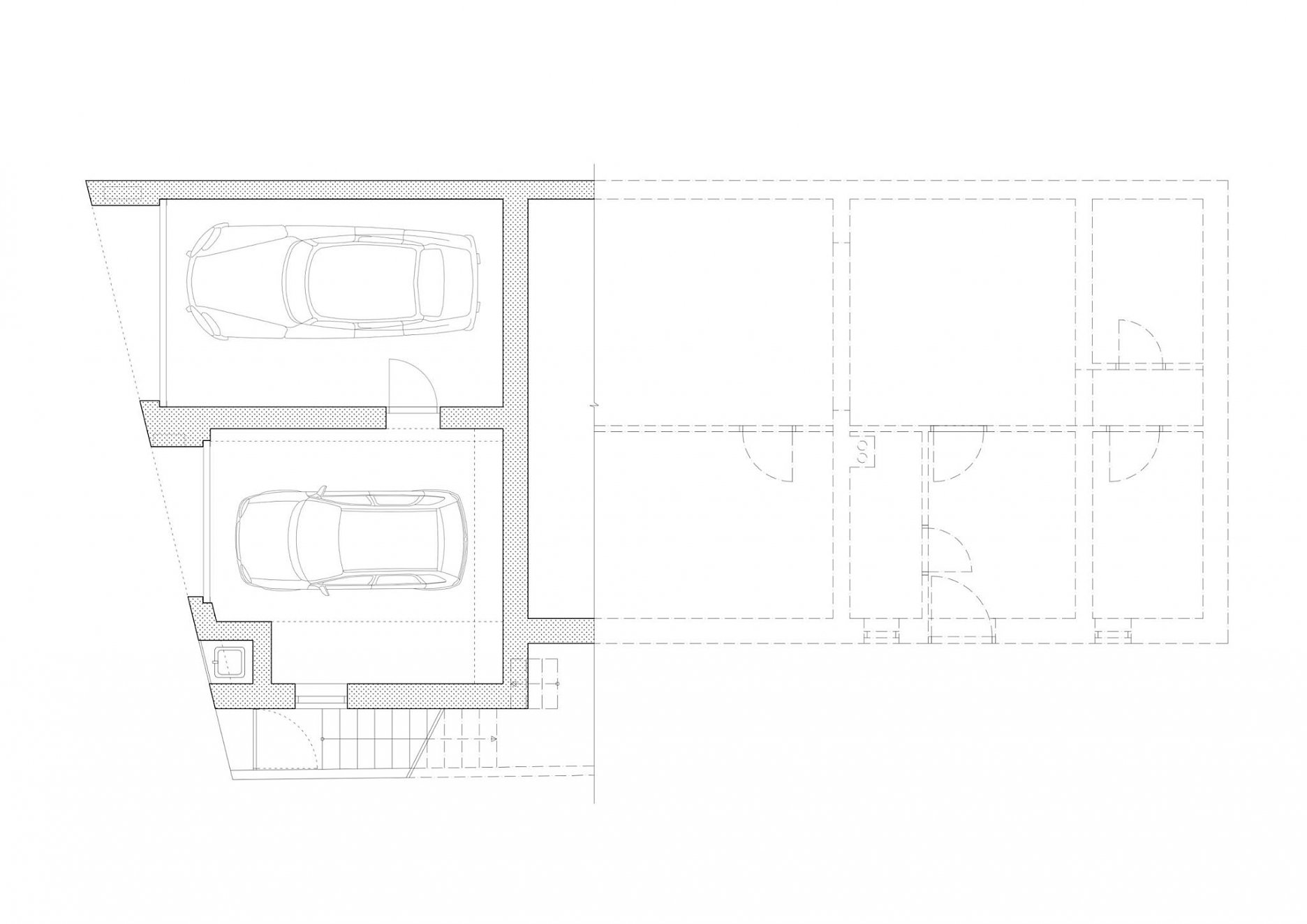
Na najnižšom podlaží pribudlo ďaľšie parkovacie miesto. Priestor vznikol odstránením spojovacej chodby a schodiska vedúceho do prízemného bytu. 

Pôdorys 1. PP po rekonštrukcii
Pôdorys 1. PP po rekonštrukciiAutor: GRAU
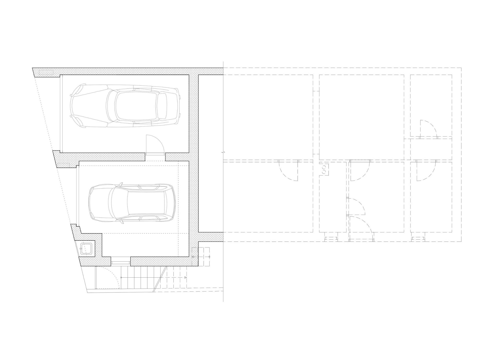
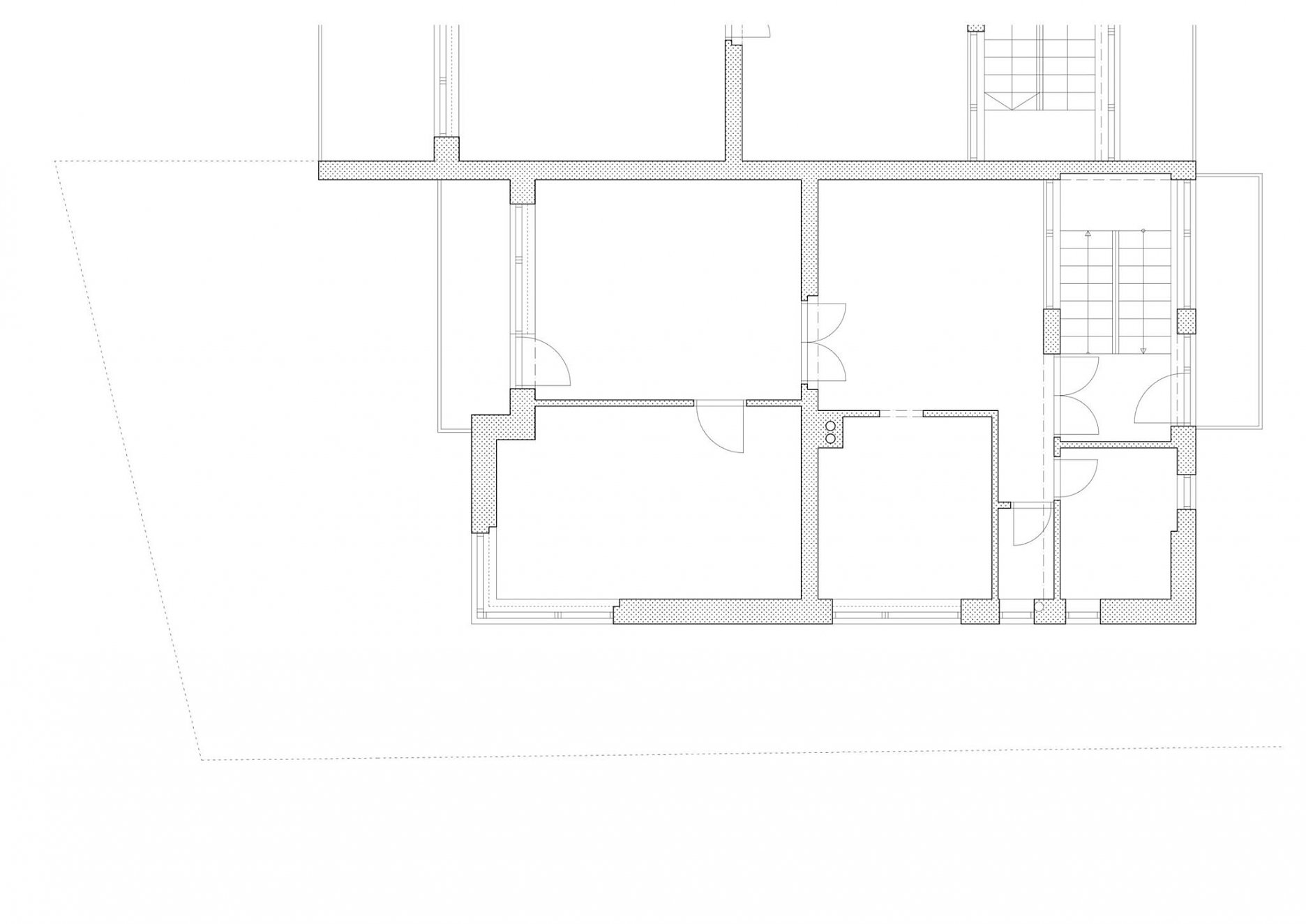
Pôdorys 1. PP pred rekonštrukciou
Pôdorys 1. PP pred rekonštrukciouAutor: GRAU

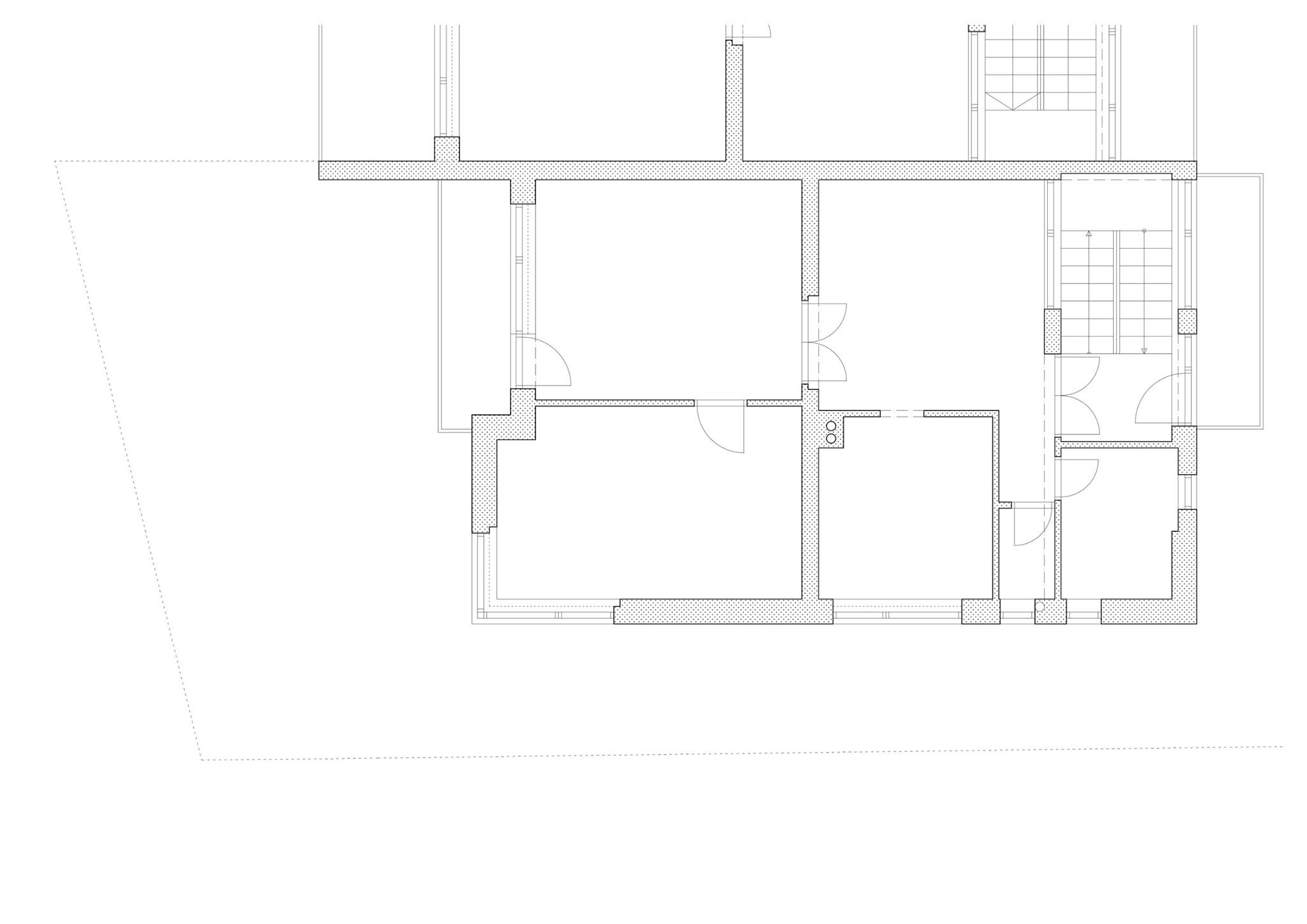
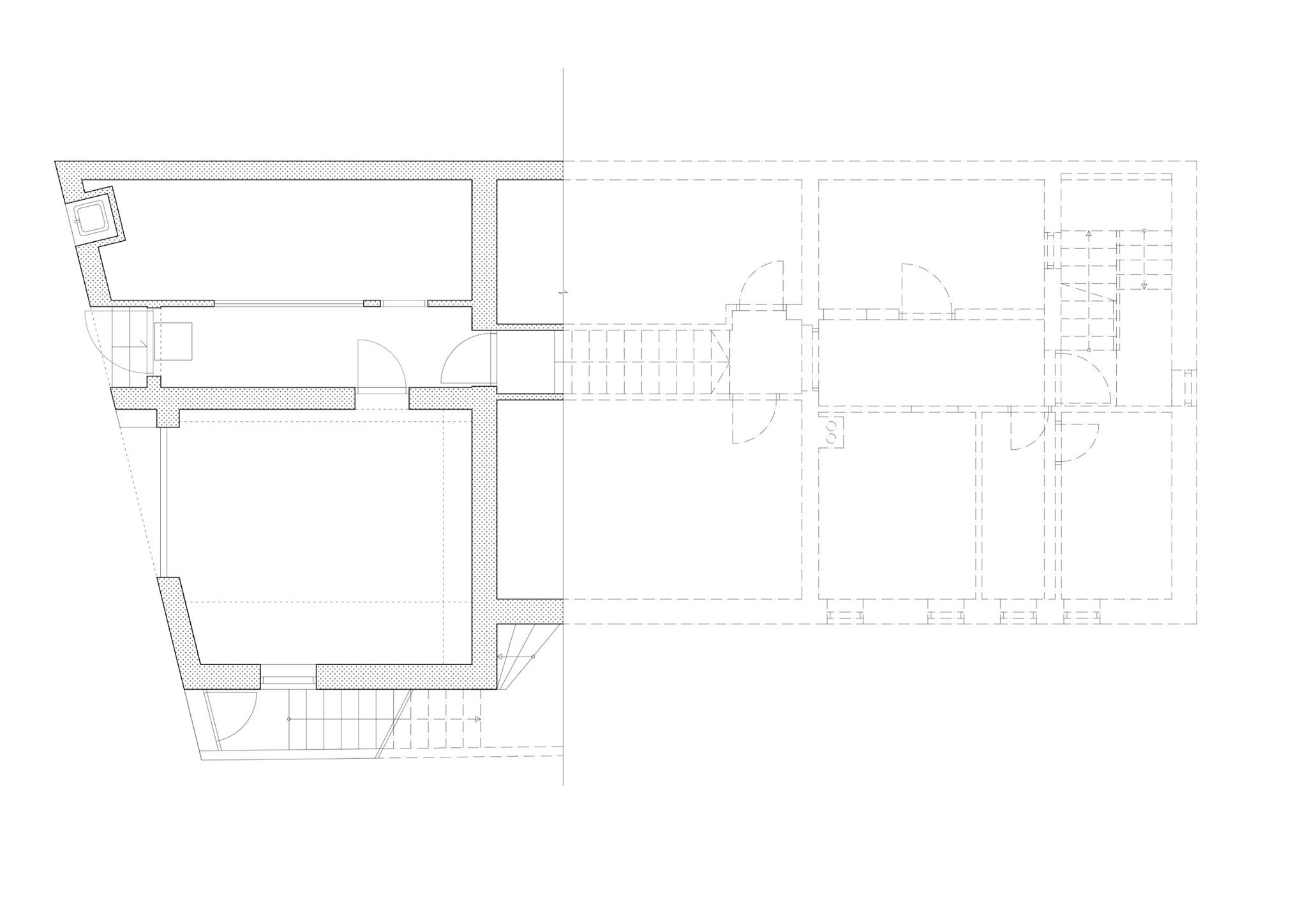
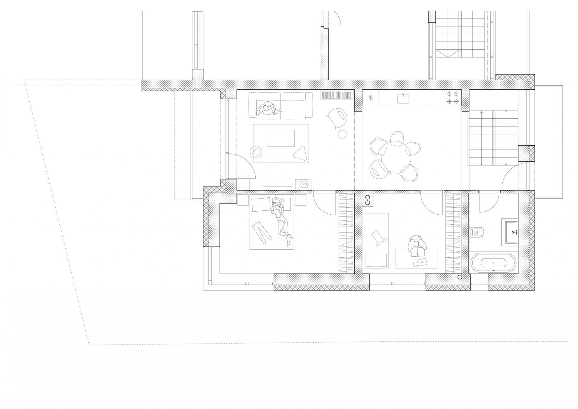
Vstup do najnižšieho bytu je po rekonštrukcii na úrovni upraveného terénu, z priestoru medzi domami. Byt na prízemí získal úpravou miesto pre novú obývačku a jedáleň, ktoré boli pôvodne stavebne oddelené. 

Pôdorys 1. NP po rekonštrukcii
Pôdorys 1. NP po rekonštrukcii
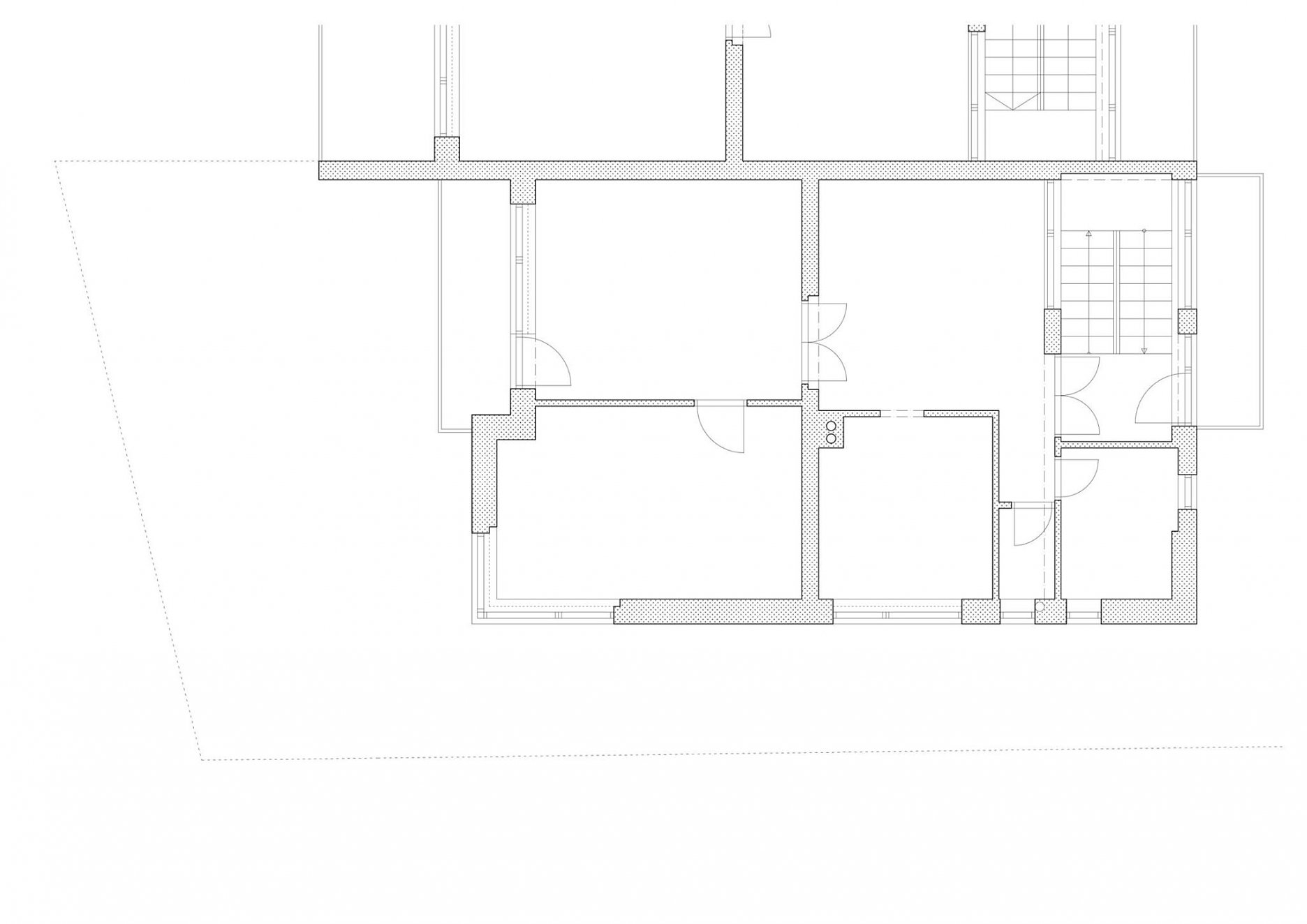
Pôdorys 1. NP pred rekonštrukciou
Pôdorys 1. NP pred rekonštrukciou Autor: GRAU

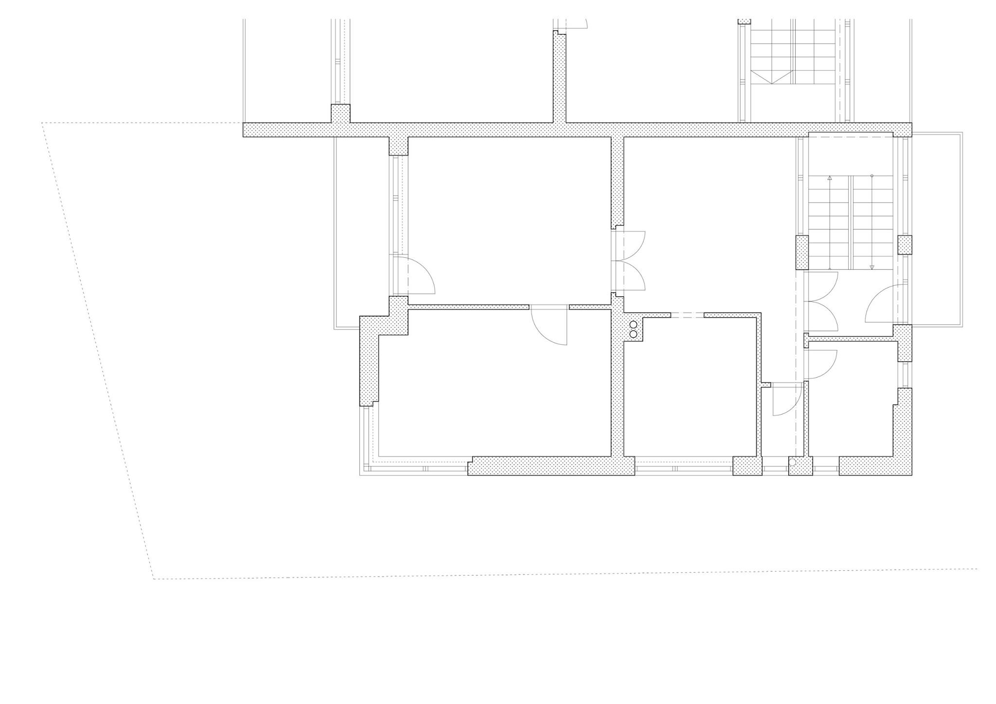
Do ďaľšieho nezávislého bytu sa vstupuje z úrovne upravenej záhradnej terasy v zadnej časti domu. Toto riešenie si vyžiadalo vytvorenie nového zádveria. Na podlaží došlo taktiež k vybúraniu priečky, čo umožnilo spojiť obývačku s jedálňou ako je tomu aj na nižšom podlaží. 

Pôdorys 2. NP po rekonštrukcii
Pôdorys 2. NP po rekonštrukciiAutor: GRAU
Pôdorys 2. NP pred rekonštrukciou
Pôdorys 2. NP pred rekonštrukciouAutor: GRAU

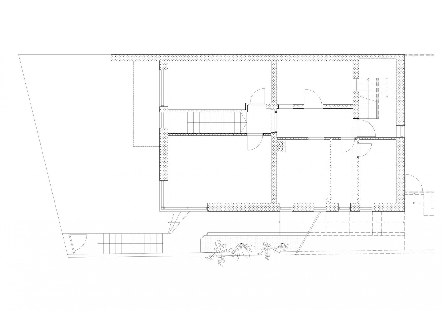
Z už spomínanej záhradnej terasy sa dostávame samostatným vstupom cez jestvujúce schodisko aj na najvyššie podlažie s takmer identickou skladbou miestností.

Pôdorys najvyššieho podlažia po rekonštrukcii
Pôdorys najvyššieho podlažia po rekonštrukcii
Pôdorys najvyššieho podlažia pred rekonštrukciou
Pôdorys najvyššieho podlažia pred rekonštrukciou
Uličný pohľad - pôvodný stav
Uličný pohľad - pôvodný stavAutor: GRAU
Uličný pohľad - nový stav
Uličný pohľad - nový stavAutor: GRAU
Bočný pohľad - pôvodný stav
Bočný pohľad - pôvodný stavAutor: GRAU
Bočný pohľad - po rekonštrukcii a úprave terénu
Bočný pohľad - po rekonštrukcii a úprave terénuAutor: GRAU
Pohľad zo záhrady - pôvodný stav
Pohľad zo záhrady - pôvodný stavAutor: GRAU
Pohľad zo záhrady - nový stav
Pohľad zo záhrady - nový stavAutor: GRAU

V interiéri zvolili architekti už takmer tradičnú kombináciu bielych stien a stropov s drevenými podlahami. Prvok, ktorý však zaujme na prvý pohľad sú neomietnuté tehlové steny. Surová materialita, zjednotená bielym náterom odhaľuje modifikácie pôvodných konštrukcií. V pohľade sú priznané aj nové oceľové prievlaky. 

Foto: Filip Marčák
Foto: Filip Marčák
Foto: Filip Marčák
Foto: Filip Marčák
Foto: Filip Marčák
Foto: Filip Marčák
Foto: Filip Marčák
Foto: Filip Marčák
Foto: Filip Marčák
Foto: Filip Marčák
Foto: Filip Marčák
Foto: Filip Marčák
Foto: Filip Marčák
Foto: Filip Marčák

Podoba dvojdomu pred rekonštrukciou:

Foto: Filip Marčák
Foto: Filip Marčák

Podklady: GRAU

Poloha diela

Ing. arch. Andrej Olah
Dipl. Ing. Peter Olah, ArtD.
Ing. arch. Filip Marčák

Súvisiace články

Vložené
1. február 2018
0
2909
Hlavný obsahHlavný obsah
Čakajte prosím