Na podujatí sa predstaví až 37 vystavovateľov - popredných dodávateľov stavebných materiálov a inovácií s prezentáciou...
Novotvar v prostredí alpskej obce.
Hansgrohe - prémiová značka kúpeľňových riešení, ponúka nadčasový dizajn, technickú precíznosť a udržateľné inovácie...
Využite špeciálnu akciu Internorm: okná za minuloročné ceny a hliníkový kryt úplne zadarmo. Ponuka je časovo obmedzená!
Sumarizácia najdôležitejších inovácií, ktoré redefinujúcich využitie tohto energetického zdroja.
AMPHIBIA 3000 GRIP 1.3 od spoločnosti ATRO predstavuje modernú hydroizolačnú technológiu, ktorá spája vysokú odolnosť,...
Ambiciózne plány EK narazili na ekonomické možnosti domácností v jednotlivých členských štátoch –...
IDEA DOOR od spoločnosti JAP prináša do interiéru čistý minimalistický vzhľad vďaka bezrámovému riešeniu a precíznej...
Kontinuita riešenia od vonkajšieho obkladu až po kovania a kľučky.
Nástenné nadomietkové armatúry Vitus sú mimoriadne vhodné pre rýchlu a efektívnu...
Okenné profily z kompozitného materiálu RAU-FIPRO X od spoločnosti Rehau sú v porovnaní s tradičnými plastovými profilmi mnohonásobne...
Najnovší sortiment stolov pre zariadenie interiérov...
Spojenie moderného dizajnu, funkčnosti a svetla do harmonického architektonického prvku.
Kancelárska budova Baumit v slovinskom Trzine prešla premenou na moderné a udržateľné pracovisko. Architekti kládli dôraz...
Mottom šiesteho ročníku on-line konferencie odborníkov Xella Dialóg je Efektívny návrh budov 2025+: zmeny a riešenia

Príbeh Leopoldova, ktorý už možno smelo nazvať mestom architektonických súťaží, obišiel snáď málokoho z architektonickej obce. Kľúčovú úlohu pri tom zohrala ucelená vízia rozvoja mesta a systematická práca na projektoch, ktoré presahujú jedno volebné obdobie.
Viac o tom, prečo sa samospráva rozhodla ísť cestou organizovania architektonických súťaží, si môžete prečítať v rozhovore so súčasnou primátorkou Leopoldova Teréziou Kavuliakovou, ktorý sme publikovali tu. Pár štatistík pre pripomenutie: Tri architektonické súťaže: Mestský park, Mestský úrad a Kultúrne centrum. Dve dokončené realizácie, 1 x CE ZA AR v kategórii exteriér, ocenenie Patrón architektúryv rámci CE ZA AR 2016. Na štvortisícové mesto viac než pôsobivé.
Spoločným menovateľom projektov je otvorená architektonická súťaž, vždy kvalitne pripravená a obsadená.
Súťaž na Mestský úrad, vypísaná v roku 2014 je však aj v tomto kontexte špecifická. Predstavenstvo SKA ocenilo v roku 2016 primátorku Leopoldova Mgr. Teréziu Kavuliaková a jej predchodcu JUDr. Milana Gavorníka "za vypísanie najväčšej architektonickej súťaže na verejnú budovu od éry vzniku samostatnej Slovenskej republiky." O jej kvalite svedčí 51 prihlásených návrhov.
V silnej konkurencii zvíťazil návrh ateliéru zerozero, ktorý zaujal porotu "premýšľavou zdržanlivosťou". Architekti z prešovského ateliéru sa rozhodli nezbúrať historickú budovu úradu - umiestnili do nej knižnicu a zároveň navrhli novú radnicu, ktorá s pôvodnou spoluvytvára kultivovaný verejný priestor. Mesto začalo s realizáciou v januári 2021, nový mestský úrad slávnostne otvoril brány v polovici júla.
Zámerom samosprávy nebola iba snaha získať reprezentatívnejšie priestory. Doterajšia budova už nevyhovovala kapacitne ani technicky. Novostavba vytvorila veľkorysejšie a prehľadnejšie priestory a lepšie technické vybavenie nielen pre zamestnancov úradu, ale hlavne pre Leopoldovčanov. Pôvodná stavba zastrešila aktivity leopoldovských organizácií, klubov a knižnice, ktorá doteraz sídlili v priestoroch bývalej policajnej stanice.
Mestský úrad sme aj počas realizácie viackrát navštívili. Už pred dokončením bolo zrejmé, že zvolený koncept, ktorý zachováva známu siluetu pôvodného objektu s valbovou strechou, aby následne mohol rozvíjať v pozadí nový objem, funguje. Postupom času bolo možné vnímať detaily z kameňa, prefabrikovaných a monolitických betónových prvkov, ktoré začali formovať drobnokresbu adekvátnu významu stavieb v rámci mesta.
Dnes je dielo hotové a konečne je ho možné v celosti prezentovať. Nové správne a kultúrne centrum vnáša do zástavby centrálnej zóny mesta jasný poriadok. Nanovo definuje dôležité verejné priestranstvo. Na prvý pohľad úsporný architektonický jazyk začne pri bližšom pohľade odhaľovať zaujímavé momenty a prvky. Medzi ne určite patrí dominantná trojica zaklenutých priestorov, ktoré by v interiéri elementárnej novostavby mestského úradu čakal málokto. Kvalita realizácie vo výsledku nasadzuje latku verejným stavbám na našom území naozaj vysoko. Nejde iba proces, ktorý predchádzal realizácii, ale aj o výsledné vysoké kvality architektonického riešenia.
Nový mestský úrad v Leopoldove je referenčným príkladom, ktorý ukazuje "ako sa to má robiť"...
Jediným drobným otáznikom z našej strany je možno podiel "tvrdých" vodonepriepustných spevnených plôch v exteriéri, aj keď súčasne chápeme praktické aspekty riešenia.
(Doplnenie autorov: všetka dažďová voda voda zo striech a spevnených plôch je odvedená do vsakovacích galérií, kde prirodzene vsakuje. Na výrobu tepla a chladu je použité tepelné čerpadlo voda/voda. Nový objekt má navrhnutý stropný systém OBKT - monolitické stropy v lete chladia a v zime kúria).
Realizáciu bližšie predstavia architekti z ateliéru zerozero:
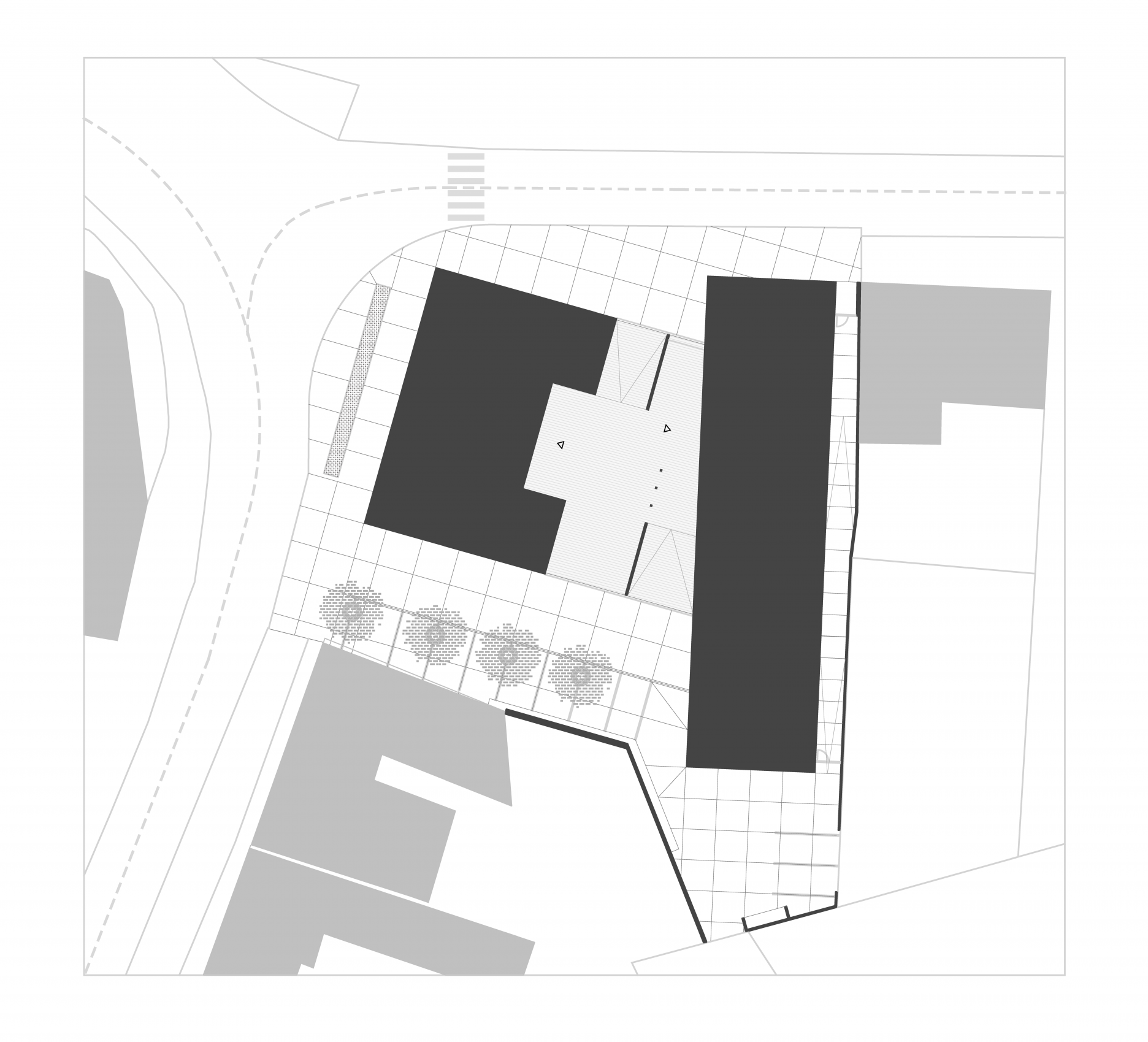
Urbanistické riešenie rozvíja ideový koncept súťažného návrhu. Mestský úrad v Leopoldove chápeme ako komplex, pozostávajúci z pôvodnej budovy premenenej na mestskú knižnicu, novostavby integrujúcej v sebe všetky požadované funkcie a verejného priestoru medzi týmito dvoma budovami i okolo nich. Mestský úrad teda nie je len jedna budova, ale je to "miesto" v rámci mesta.
Námestie Sv. Ignáca predstavuje rozvoľnené námestie - park. Má svoje nespochybniteľné kvality, avšak nemá jednoznačne mestský charakter. Pôvodná budova úradu je zachovaná a doplnená lineárnou dvojpodlažnou hmotou, uloženou paralelne s východnou hranicou riešeného územia.
Medzi oboma budovami vzniká nový mestský priestor menšej mierky, z ktorého sú vedené vstupy do oboch objektov. Hustota a koncentrovanosť zástavby dáva tomuto priestoru urbánnu, mestskú kvalitu. Zdvihnuté nádvorie sa stáva miestom pre spoločenské a kultúrne udalosti.
Peší pohyb z námestia sa prirodzene prelieva zo severnej strany, pričom prvotne človek vníma nárožie novej budovy s hodinami a postupne sa mu otvára nádvorie a vstupy do oboch domov. Otvorenie celého bloku umožňuje priechod z Hlohoveckej cesty, Gucmanovej a Rázusovej ulice. Takto sa prakticky celé územie otvára pešiemu pohybu, introvertné a uzavreté je nahradené otvoreným a verejným.
Dvojmetrové odsadenie hmoty od východnej hranice parcely vytvára priechod k sekundárnemu vstupu do budovy, slúžiacemu pre zamestnancov mimo otváracích hodín úradu.
Architektonické riešenie
Zachovanie pôvodného objektu zo začiatku minulého storočia umožnilo formovať novú architektonickú vrstvu elementárnejším, niekedy až abstraktným spôsobom. Novú budovu mestského úradu chápeme ako dvojpodlažný kubus, s výraznou a čitateľnou redukciou hmoty, ktorá formuje hlavný vstup. Budova verejnej správy by mala podľa nášho názoru prezentovať jasný architektonický názor, správať sa dôstojne a civilne. Rekonštrukcia pôvodného objektu zachováva jeho tvár a rešpektuje pôvodné architektonické kvality. Výraz, detaily i požité materiály budú však jasne artikulujú našu súčasnosť.
Priestranstvo medzi objektami je súdobým mestským priestorom, schopným flexibilne reagovať na špecifiká rôznych aktivít a udalostí.
Nová budova mestského úradu
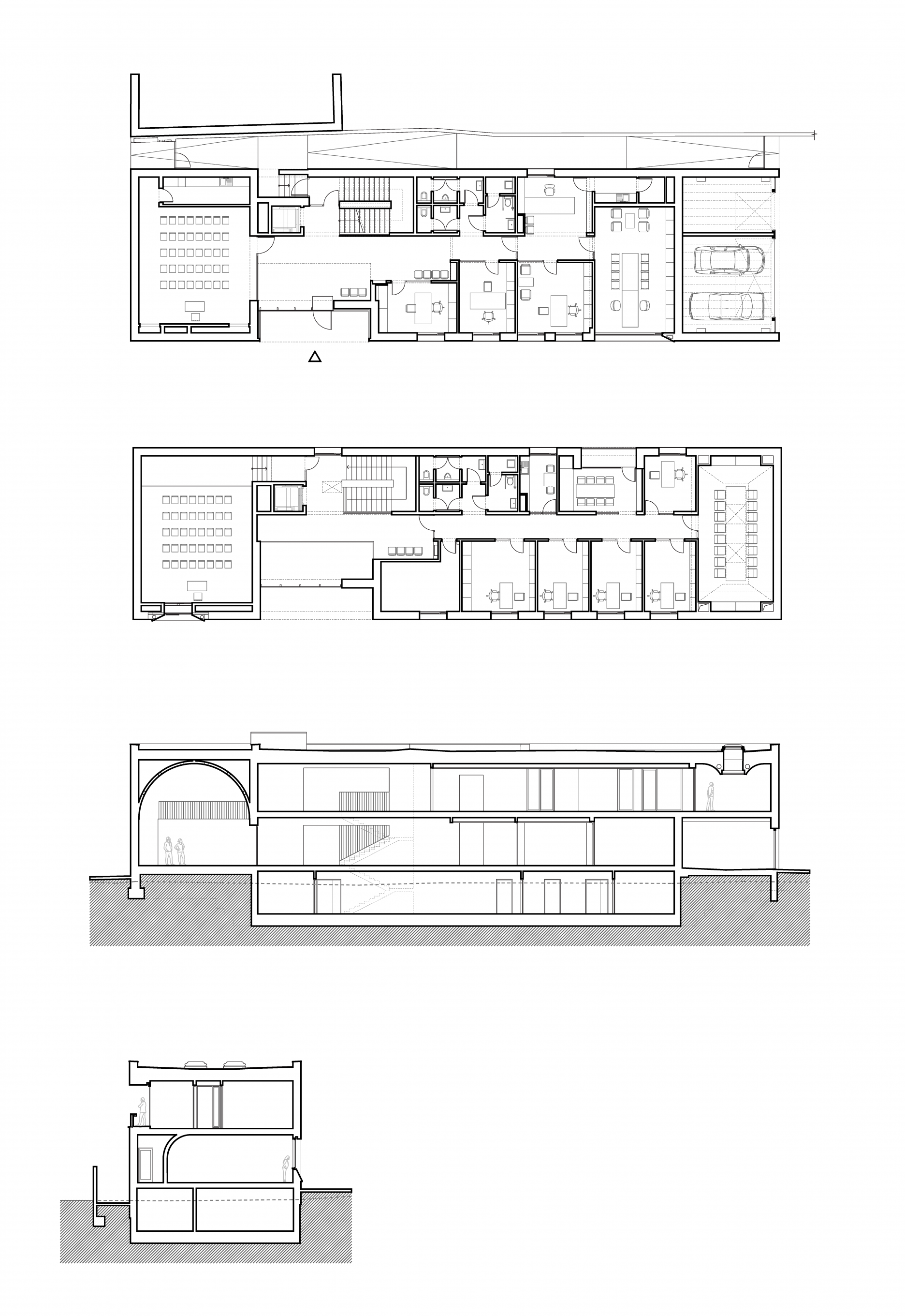
Nový objekt v sebe integruje všetky funkcie mestského úradu a priestorov technického zázemia údržby mesta. Hlavný vstup je vedený zo západnej strany cez rozsiahlu redukciu hmoty, vytvárajúc prekrytý záliv verejného priestoru. Tento záliv zabezbečuje jasne definovaný vstup, rovnako ako vizuálny kontakt so sobášnou miestnosťou. Prelomenie fasády poskytuje adekvátnu plochu pre umiestnenie štátneho znaku, erbu mesta, prípadne iných potrebných insígnií mestského úradu.
Novostavbu charakterizuje elementárna kubická hmota s prehľadnou vnútornou štruktúrou, ktorá sa premieta navonok systémom pravidelných perforácii. V rámci vnútornej štruktúry objektu sú jasne priestorovo artikulované tri hierarchicky najvýznamnejšie priestory.
Sobášna sála - miesto spoločenských aktivít a interakcie - predstavuje "kolektívnu skúsenosť". Veľká zasadacia a rokovacia miestnosť predstavuje "demokraciu". Kancelária primátora predstavuje "reprezentáciu moci".
Sobášna sála je prestropená valenou železobetónovou klenbou, ktorá vytvára neobvyklú priestorovú kvalitu a proporcie. Klenba je bude perforovaná pravidelným rastrom kruhových otvorov s umelým osvetlením. Optimalizácia proporcií súvisí s prevýšením priestoru. Vložená galéria zväčšuje kapacitu v prípade väčších spoločenských akcií.
Veľká zasadacia a rokovacia miestnosť je situovaná na druhom nadzemnom podlaží v južnej, koncovej polohe. Priestor prestropuje špecifický systém štvrť-oblúkových polklenieb, vytvárajúci znížený svetlík nad hlavným rokovacím stolom. Poslanci mestského zastupiteľstva tak nie sú vystavení rozptyľujúcim vplyvom, distribúcia prirodzeného a umelého svetla je vedená výhradne zhora, cez spomínaný svetlík.
Kancelária primátora / primátorky, ktorá je situovaná na prvom nadzemnom podlaží vo väzbe na podateľňu a kanceláriu prednostu, má „najväčšie“ okno, smerujúce do nástupného priestoru. Strop tejto kancelárie je v svojej koncovej, východnej polohe ukončený štvrť-oblúkovou polklenbou, ktorá vytvára časť s nižším pohodlným sedením. Každý z týchto priestorov má svoju unikátnu charakteristiku a veríme, že okrem identifikačnej funkcie sa týmito priestorovými manipuláciami dostáva do vcelku elementárnej vnútornej štruktúry stavby aj istý poetický rozmer.
V celkovej architektonickej koncepcii objektu hrajú významnú úlohu vstupné a komunikačné priestory objektu. Na veľkorysý prekrytý vstup naväzuje vstupná hala, s jasne čitateľným schodiskom a výťahom. Tento cez dve podlažia otvorený priestor sa postupne južným smerom plynule mení na lineárny útvar komunikačnej chodby. Celú komunikačná kostru objektu spája jednotný materiálový a výtvarný výraz. Na podlahách sa uplatňujú brúsené betóny, na stropoch charakteristický pohľadový betón. Prakticky všetky kancelárie otvárajú do priestoru vnútorné presklené steny, čo zabezpečuje dostatočnú distribúciu svetla.
Architektonické stvárnenie objektu navonok reprezentuje jeho vnútornú štruktúru. Elementárna hmota je plastizovaná objemovými redukciami hlavného vstupu na západnej strane, servisného vstupu a malou loggiou pre zamestnancov na východnej strane. Nasledujúcu hladina plastizácie fasád tvoria okná s prelomenými parapetmi. Umiestnenie okien opäť odzrkadľuje vnútornú štruktúru a dispozíciu. Pozdĺžny nosný systém stavby umožňuje situovanie deliacich stien v priečnom smere sa v závislosti na dispozičnom riešení. Vzájomné posunutie kancelárií nad sebou určuje vzájomné posuny okien na oboch nadzemných podlažiach.
Omietku na fasádach objektu dopĺňajú prefabrikáty a obklad zo samozhutniteľného pohľadového betónu, vystuženého sklenými vláknami. Okná kancelárii majú exteriérové tieniace textilné markízy integrované do fasády. Západné priečelie nesie v sebe vizuálny znak budovy mestského úradu - hodiny. Tradičný prvok je riešený ako perforácia fasády, ktorá súčasne vnáša svetlo do interiéru sobášnej miestnosti.
Dispozícia a prevádzka mestského úradu
Nová budova je dvojpodlažná čiastočne podpivničená. Prvé a druhé nadzemné podlažie zastrešuje administratívne a spoločenské priestory, ktoré dopĺňajú v južnej časti objektu garáže. Podzemné podlažie zahŕňa technické zázemie objektu, sklady, archív a hygienické zázemie pracovníkov údržby mesta.
Na prekrytý vstup naväzuje vstupná hala s verikálnym komunikačným jadrom, spájajúcim všetky podlažia objektu. Okrem hlavného vstupu do haly je možné použiť aj zamestnanecký vstup vedený z východnej strany objektu. Tento vstup slúži najmä pre pracovníkov údržby mesta, alebo v čase keď je hlavný vstup uzavretý.
V severnej časti objektu naväzuje na vstupnú halu sobášna a spoločenská sála s kapacitou 40 občanov. Na tento priestor nadväzuje kuchynka-zázemie pre prípad spoločenských podujatí, ktorá sa nachádza pod už spomínanov galériou. Priamo vo vstupnej hale sú situované kancelárie prvého kontaktu: matrika a učtáreň. Hygienické zázemie je sprístupnené cez diskrétnu predsienku. Zo vstupnej haly je prístupná podateľňa, na ktorú nadväzuje kancelária prednostu a primátora. Garáž pre vozidlá úradu, rovnako ako garáž údržby mesta sú sprístupnené zo spevnenej plochy vo väzbe na Rázusovu ulicu.
Druhé nadzemné podlažie obsahuje okrem kancelárii (investičný referent, referent ŽP, kultúrny referent, mzdová učtáreň, rezervná kancelária), kuchynky a hygienického zázemia aj obe zasadacie miestnosti - malú zasadaciu miestnosť, lokalizovanú vo väzbe na loggiu, a veľkú zasadaciu miestnosť so svetlíkom, situovanú v južnej koncovej polohe. Funkčnú skladbu dopĺňa technická miestnosť so serverom, telefónnou ústredňou a rozhlasom.
Mestská knižnica
V pôvodnom objekte mestského úradu dnes sídli mestská knižnica s kaviarňou, ktorá tvorí nezávislú prevádzku. Architektonické riešenie je založené na rešpektovaní daností pôvodnej stavby a rozvinutí jej potenciálu tak, aby mohla slúžiť novej funkcii. Zásahy sú minimalizované. Išlo predovšetkým o odstránenie prístavieb v pôvodnej dvorovej časti. Úpravy dispozície sú realizované so snahou o otvorenie priestoru. Do knižnice sa vstupuje z nádvoria. Na vchod, prekrytý novou markízou, nadväzuje vstupná hala. Z nej sú prístupné obe prevádzky. Knižnica v západnom krídle, a klubovňa situovaná v severnom krídle. Južné krídlo zabezpečuje hygienické zázemie pre návštevníkov i zamestnancov, rovnako ako sklad mobiliáru a technické zázemie objektu-kotolňu.
Knižnica je navrhnutá ako otvorený priestor s flexibilnými knižnými regálmi. Pracovisko zamestnanca knižnice sa nachádza v centrálnej polohe, miesta pre štúdium naopak v okrajových zónach. Priestoru dominuje knižný regál, uložený pozdĺž severnej nosnej steny objektu. Na usporiadanie besied pre deti slúži flexibilná vstupná hala. Klubovňa s kapacitou 20 miest, vrátane príručného skladu a minimálneho zázemia, zaberá severný trakt.
Podklady: zerozero
Foto: Matej Hakár