Advertorial

Minimalistické dvere IDEA – technická precíznosť a čistota prevedenia

IDEA DOOR od spoločnosti JAP prináša do interiéru čistý minimalistický vzhľad vďaka bezrámovému riešeniu a precíznej...

Schell Vitus – osvedčené riešenie pre sprchy a umývadlá vo verejnom sektore s viac ako desaťročnou tradíciou

Nástenné nadomietkové armatúry Vitus sú mimoriadne vhodné pre rýchlu a efektívnu...

Kompozitné okná predstavujú súčasnosť a budúcnosť

Okenné profily z kompozitného materiálu RAU-FIPRO X od spoločnosti Rehau sú v porovnaní s tradičnými plastovými profilmi mnohonásobne...

Myotis - stoly 2025

Najnovší sortiment stolov pre zariadenie interiérov...

Priemyselné sklenené priečky Dorsis Digero: svetelné rozhranie pre moderné interiéry

Spojenie moderného dizajnu, funkčnosti a svetla do harmonického architektonického prvku.

Význam prirodzeného svetla pre moderné a flexibilné pracovné prostredie

Kancelárska budova Baumit v slovinskom Trzine prešla premenou na moderné a udržateľné pracovisko. Architekti kládli dôraz...

Konferencia Xella Dialóg predstaví novinky a trendy v stavebníctve

Mottom šiesteho ročníku on-line konferencie odborníkov Xella Dialóg je Efektívny návrh budov 2025+: zmeny a riešenia

Murovací robot WLTR stavia svoj prvý dom na Slovensku

Robot WLTR predstavuje moderný prístup k murovaným konštrukciám. Vďaka automatizácii dokáže rýchlo, presne a bezpečne realizovať...

Nová éra bezpečnosti s I-tec Secure od Internorm

Okrem bezpečnosti majú okná aj elegantný vzhľad, pretože nie sú viditeľné žiadne uzamykacie časti kovania.

Skryté zárubne JAP – intenzívny zážitok z bývania

Dvere MASTER v skrytej zárubni AKTIVE je možné vyrobiť až do výšky 3 700 mm

Tienenie namiesto klimatizácie

Internorm stavia na energetickú efektívnosť a inteligentné tieniace riešenia.

BigMat International Architecture Award 2025 - vybrané diela

Slovensko vo výbere zastupuje šesť realizácií.

Milník udržateľnej výroby okien: Internorm zavádza Low-Carbon-Glas iplus

Spoločnosť Internorm odteraz stavia na novej variante tepelnoizolačného skla od AGC, ktorá v produkcii ročne ušetrí 10...

Výsledky 20. ročníka medzinárodnej študentskej súťaže Saint-Gobain Architecture Student Contest 2025

Jubilejný 20. ročník prestížnej medzinárodnej súťaže pre študentov architektúry priniesol...

Dvere MASTER - pre interiéry navrhnuté s rozumom aj vášňou!

Otočné a posuvné dvere MASTER od podlahy až po strop, ponúkajú mimoriadnu variabilitu výšky, materiálu a zladenia so skrytými...

Administratívna budova vo výrobnom areáli firmy Technov, Rumanová

Jednoduchá geometria, striedmosť, hrdzavý plech a artefakt vítajúci návštevníkov...
Diela
Red 414.01.2019
33090+16
Administratívna budova vo výrobnom areáli firmy Technov, Rumanová
Ateliér: VISIAAutori: Ing. arch. Andrej Zábrodský, Ing. Ladislav Chatrnúch, Ing. Peter Turček, Ing. Roman Hanák, Ing. arch. Patrik MorvayInvestor: TECHNOVZastavaná plocha: 8.085 m²Podlažná plocha: 8.556 m2Investičný náklad: 22 mil. €Návrh: 2015 - 2016Realizácia: 2016 - 2017Adresa: Hlavná 144, Rumanová, SlovenskoPublikované: 14. január 2019

Cieľom autorov bolo vytvoriť fungujúcu administratívnu budovu, plniacu precízne požiadavky programovej náplne, ktorá by však zároveň bola aj tvorivým počinom a dôstojnou reprezentáciou firmy. Objekt bezprostredne nadväzujúci na výrobu vyžaduje účelné riešenie prevádzky, dispozície, väzieb jednotlivých priestorov a funkcií. Dôležitým aspektom je tiež "nadstavba" v podobe príjemného a kultúrneho pracovného prostredia, ktoré je dôležité pre budovanie úspešnej spoločnosti.

"Pri tomto projekte sme sa stretli s investorom, ktorý mal jasnú predstavu o budúcom rozvoji firmy a tiež mal nastavenú latku kvality výrazne vyššie ako to býva pri obdobných projektoch. Investor dokonca počas procesu zamenil materiál na čelnej fasáde za hodnotnejší," vysvetľuje autor architektonického konceptu Andrej Zábrodský.

Nový areál firmy

Len štyri kilometre od zjazdu na obec Báb z rýchlostnej cesty R1 pri Nitre nedávno vyrástol výrobný komplex spoločnosti Technov. Pôvodný závod firmy vyrábajúcej komponenty pre vzduchotechniku a klimatizáciu v centre obce Rumanová nedokázal vyhovieť požiadavkám na zvyšujúcu sa kapacitu výroby, Technov sa preto rozhodol postaviť novú fabriku na “zelenej lúke”. Svahovitý pozemok sa nachádza na juhovýchodnom okraji obce, mimo zastavaného územia.

Foto: Bohumil Šálek

Investor mal od začiatku konkrétny názor na funkčnú náplň a usporiadanie nového areálu. Ako prvá bola postavená výrobná časť (produkčná hala, lakovňa a sklad). Následne bola zrealizovaná administratívna budova v blízkosti vjazdu do areálu. Významnou súčasťou činnosti firmy je vlastný vývoj produktov, ktorý je významnou hybnou silou výroby. Aj preto by v budúcnosti malo v susedstve administratívnej budovy vyrásť vlastné vývojové centrum.

Foto: Bohumil Šálek

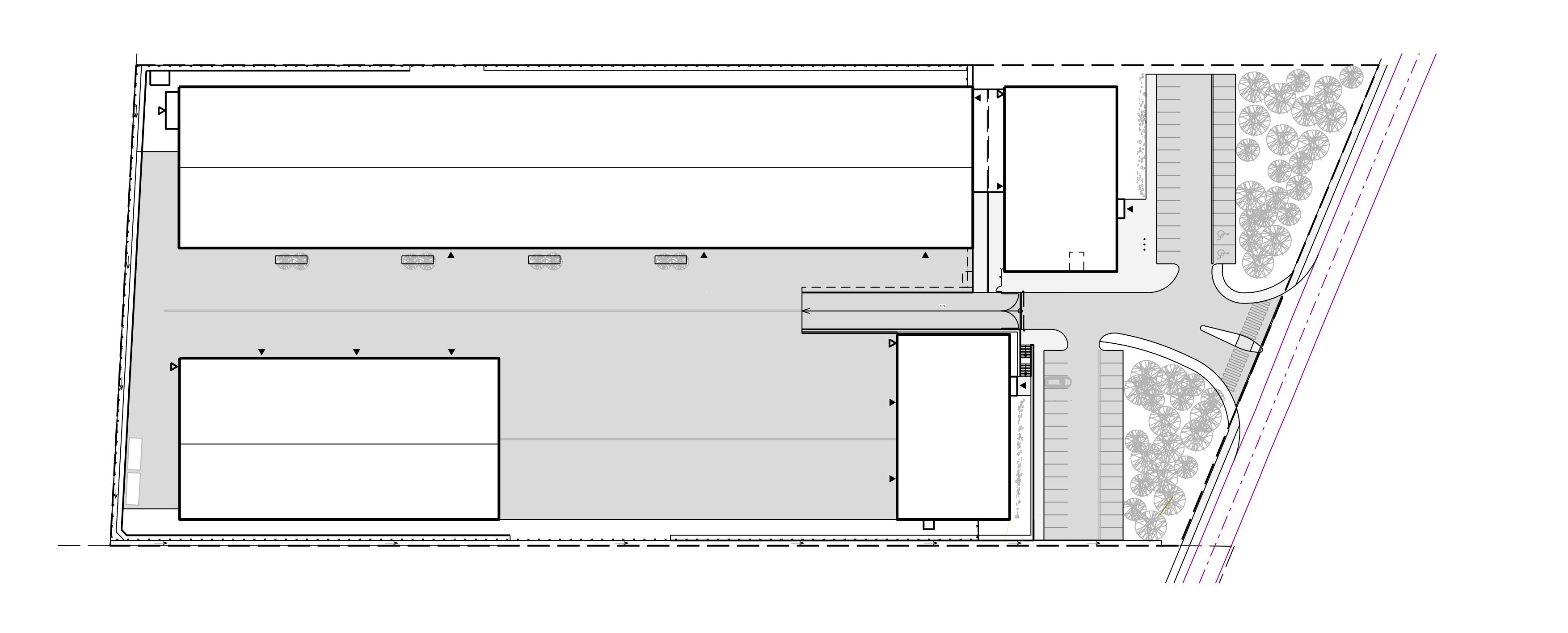
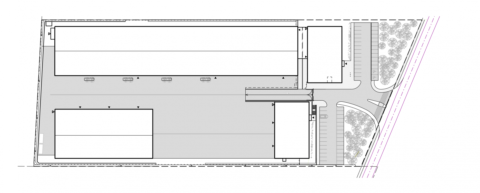
Situácia

Areál firmy je zasadený do peknej prírodnej scenérie vidieckej krajiny. Stavby sú situované v záreze svahu s výškou 7 metrov, čo autorov postavilo pred úlohu minimalizovať rozdiel medzi násypmi a výkopmi a množstvom odvážanej či privážanej zeminy. Osadenie objektov optimalizovali prostredníctvom 3D modelu. Protihodnotou zvýšených nákladov na vytvorenie zárezu je znížené prehrievanie výrobných častí objektu. “Sú menej exponované priamemu slnku a je evidentne cítiť vplyv chladenia okolitej zeminy,” zdôrazňuje Ladislav Chatrnúch, “priaznivý efekt očakávame aj od menšieho zaťaženia haly vetrom v jesennom a zimnom období.”  

Situácia - na rozsiahlu výrobnú halu orientovanú pozdĺž severnej hrany pozemku nadväzuje zo západu administratívna budova. V juhozápadnom cípe parcely je situovaná lakovňa. Nové vývojové centrum by malo pribudnúť v juhozápadnom sektore, vľavo od príjazdovej komunikácie.
Situácia - na rozsiahlu výrobnú halu orientovanú pozdĺž severnej hrany pozemku nadväzuje zo západu administratívna budova. V juhozápadnom cípe parcely je situovaná lakovňa. Nové vývojové centrum by malo pribudnúť v juhozápadnom sektore, vľavo od príjazdovej komunikácie.Autor: VISIA

Administratíva s hrdzavou fasádou

Dvojpodlažná administratívna budova je osadená vo východnom svahu, pri vstupe do technologického areálu. Stavba pokrýva administratívne potreby firmy a slúži aj ako zázemie pre zamestnancov výrobnej časti. Celopresklená čelná fasáda s akcentovaným hlavným vstupom je lemovaná obkladom z ocele odolnej voči poveternostným vplyvom, ktorý prebieha aj na časť bočných stien. V tomto prípade ide o Cor-Ten. Zvyšná časť fasád je omietnutá. 

Foto: Bohumil Šálek
Foto: Bohumil Šálek
Foto: Bohumil Šálek

Funkčne je budova rozdelená na dve časti. Reprezantatívna východná časť je vyčlenená pre obchod a administratívu, západný trakt zahŕňa zázemie pre zamestnancov výroby a jedáleň.

Vo východnej časti budovy je recepcia, veľkopriestorové kancelárie, kancelárie vedenia firmy, zasadacie miestnosti, showroom a príslušné hygienické vybavenie s kuchynkou na každom poschodí.

V západnej časti je situovaná jedáleň, hygienické zariadenie pre zamestnancov výroby, ženské šatne na prvom a mužské šatne na druhom podlaží. V zadnej časti areálu sú výrobné a skladové priestory firmy vybavené najnovšou technológiu pre výrobu v oblasti vzduchotechniky.

Nútené vetranie v administratívnej budove zabezpečujú podstropné rekuperačné jednotky značky Carrier. Tie distribuujú vzduch cez anemostatové výustky, ako aj prívodov do plénum boxov kanálových jednotiek chladenia. Chladenie výrobnej haly zatiaľ nie je riešené vzhľadom na dobrú orientáciu a izoláciu stavby.

Výkresová dokumentácia
Výkresová dokumentáciaAutor: VISIA
Foto: Bohumil Šálek
Foto: Bohumil Šálek
Foto: Bohumil Šálek
Foto: Bohumil Šálek
Foto: Bohumil Šálek

Interiér administratívnej budovy zodpovedá technicistickému prostrediu výrobného komplexu. Materiálové a farebné riešenie bolo zvolené najme s ohľadom na životnosť a jednoduchosť údržby. 

Foto: Bohumil Šálek
Foto: Bohumil Šálek
Foto: Bohumil Šálek
Foto: Bohumil Šálek
Foto: Bohumil Šálek

Majiteľ sa netradične rozhodol investovať do umeleckého diela. Autorom plastiky situovanej pri vstupe je nitriansky výtvarník Karol Félix, ktorý bol doteraz na slovenskej výtvarnej scéne známy najmä ako maliar, grafik a tvorca známok. Socha s výškou 8 metrov bola realizovaná priamo vo fabrike, kde autor našiel ochotných a zručných spolupracovníkov - zváračov. Kompozícia vychádza z umelcových malieb a grafík. Materiál - hrubý corténový plech - spája dielo s neďalekým objektom administratívnej budovy. Socha má neoficiálny názov „Dotyk“. On a ona.

Foto: Bohumil Šálek
Vizualizácia areálu firmy Technov po plánovanom rozšírení o vývojové centrum
Vizualizácia areálu firmy Technov po plánovanom rozšírení o vývojové centrumAutor: VISIA

Podklady: VISIA

Ateliér

Poloha diela

Ing. arch. Andrej Zábrodský
Ing. Ladislav Chatrnúch
Ing. Peter Turček
Ing. Roman Hanák
Ing. arch. Patrik Morvay

Súvisiace články

Vložené
20. december 2018
0
3309
Hlavný obsahHlavný obsah
Čakajte prosím